诸暨世纪江湾123㎡大平层,暖调原木极简风
诸暨珊瑚装饰有限公司
2023-04-29
现代原木风,与美学相遇,与自然相融,营造有生命力的空间氛围;最大程度的把自然引入室内,将室内向外延伸,以独特的方式展现出空间的美感与平衡。

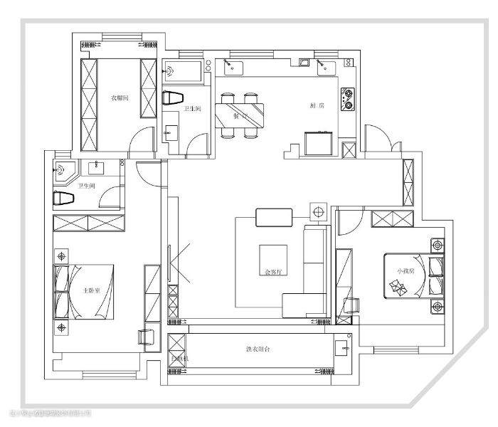
平面布置图


户型解析
本案是一套123㎡的套房,采用现代原木风设计,立足现代审美,在空间设计与室内配饰上,追求简约、轻巧,客厅与阳台一体打通,整个空间通透明亮,在原木色家具的衬饰下,营造出清新自然、温馨舒适的“家”。
—————
客厅

客厅落地大玻璃窗通透明亮
简单利落的吊柜、双眼皮吊顶的叠层效果
让空间在视觉上更有层次感
悬浮电视背景,辅以灯带
增添浪漫气息的氛围感

角落一盏落地灯
茶几的摆件与绿植墙上的装饰画相呼应
从一片区域,一个角落,望见简约生活的样子
—————
厨餐厅

实木餐桌上摆上绿植装饰
将自然、简约、随意融入到一杯一盏之中
搭配简约的风扇
呈现出独特舒适的生活氛围

当原木邂逅厨房
既温馨又舒适
兼具颜值与质感
让美食与幸福一起在厨房发酵
开放式的设计,动线合理
原木橱柜搭配白色大理石简约舒适
—————
主卧
卧室是一个让人最能感受到幸福的空间
采用舒适的色彩搭配,柔软的质感也显得尤为重要
无把手设计的衣柜更具简约时尚
暖色系墙面艺术涂料,给人以现代舒适的轻松氛围感

圆弧形墙面的飘窗设计
柔化了棱角分明的尖锐感
营造出休息空间的静谧感,提升空间的整体质感

橙白色的装饰画,为空间增添温馨感
搭配质感轻盈的家具
让简约与时尚在空间内达到平衡

原木色的衣帽间
宁静而富有格调
通顶茶色玻璃柜与原木衣柜相结合
让空间充满舒适又时尚的设计感