970㎡新中式别墅大宅,根植于东方的意境美
华浔品味装饰龙海店
2023-05-04
本案业主是60多岁的长辈,经历过很多沧桑,如今事业很成功,在九江有多套房产,他对家人之间的那种亲情理解也比较深,买这栋别墅也是为了与家人一起团聚。
在全面启动设计之前,业主表示:“别看我年纪大,还喜欢中式文化,但我也可以接受一些新型的产物”,所以本案采用新中式的设计手法,来呈现当下生活方式与传统文化的交融。
这套房子的面积较大,共设五层(含负一楼),有13个房间、3个书房、能容纳20人一起就餐的餐厅,还设有儿童娱乐区等空间。设计师梳理需求关系,通过简约造型的打造和用心的细节,来诠释家的品位格调,不但体现中式风格的底蕴,还糅合了现代的生活方式和居者的习惯,营造兼具舒适与韵味的雅致大宅。

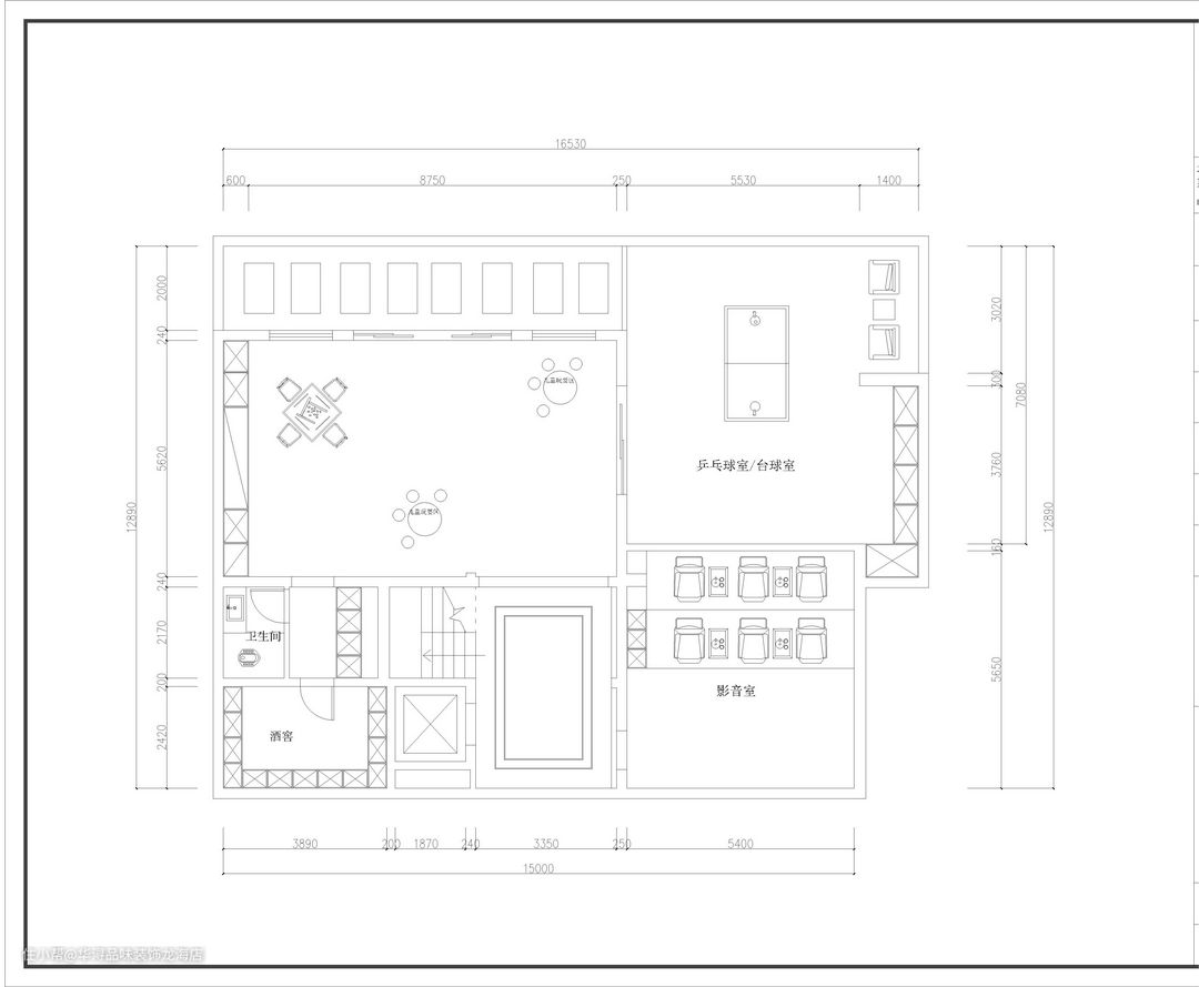
▲ 负一楼平面方案图
房屋信息
房屋地址:江西 - 九江 - 映日荷花
房屋面积:970㎡
房屋户型:别墅
装修风格:新中式

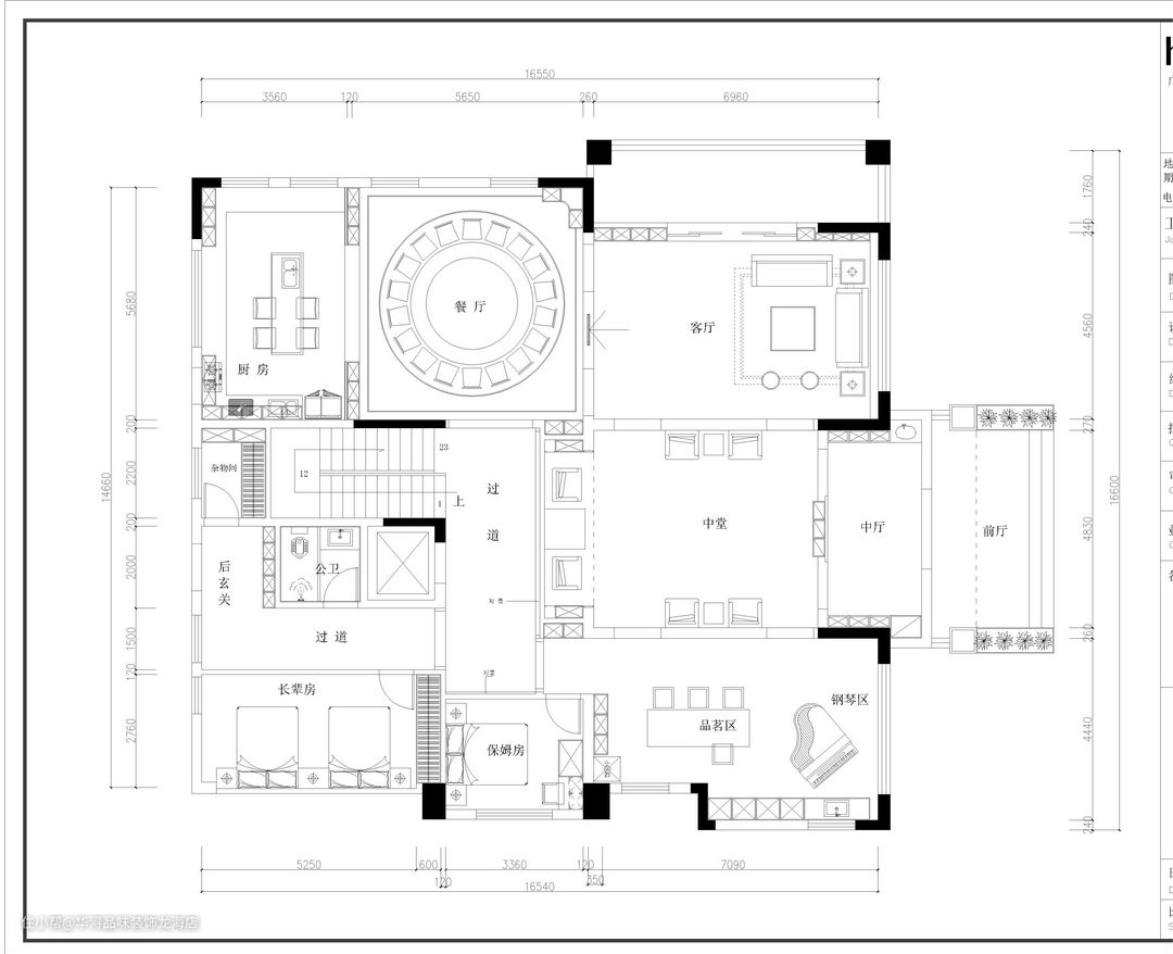
▲ 一楼平面方案图
客厅
设计遵循东方谦逊的美学语言,将谦和高雅的精神风貌纳入空间当中,手法上去繁化简,营造兼具美学愉悦和人性化关怀的共空间。中式木制、现代金属与清浅的白麻色搭配相得益彰,而屏风、中式元素装饰作为分区的隔断,给空间增添更多的韵味。

设计师对于细节的坚持,体现在每一处材质的选型。仅一方茶几,即经历过数百款木材及石材样本的精心对比,只为寻找出色彩纹理的最妙搭配。再经过碳化、着漆、抛光、导角等工序处理,在光的照射下,泼墨般的自然纹理,显露参差的本色,值得品味无穷。
中堂

世,自然与雕琢,雍容与悠然,是本案糅合的主题,营造出色彩典雅素朴的空间品质感。依托于基础户型布局,设计师将墙面大面积通铺大片岩板,从视觉上加深了开阔感,也极大地发挥了大空间的优势。

延续了中国中经典的中式对称,配以清雅简约的布局色调,空间便不拘于规整,多了些柔和。木石、棉麻、陶土、绿植,取材于天地间。空间配色高雅,不经意处点缀几抹翠绿,精致典雅的圆环形吊灯发出星星点点晶莹之光,世间纷纷扰扰,在此尽消弭尔。
餐厅

餐厅,即是功能型为主多了些许时空的感知,通过石材与木质的组合搭配,深浅颜色的相互交织,突显了装修材料的质感。不限于形,不局于室,去风格化的文化传承,也同样需基于对当下需求的思考,简化也成为空间应用最多的设计语言。
茶室

茶室的的整体空间设计以淡雅为基中式韵味在茶具上更加彰显得浓墨重彩。简约的空间叙事语言成为这个空间最基础的表达,走进茶室,便可窥见一二。
休闲室

休闲室承载着家庭互动和社交活功能,设屋主及家人的生活形态规划动线,体现多元诉求和轻松自由的生活。


台球区、影音区、儿童游乐区等休闲空间,昭示着屋主兴趣爱品质,自由多元的功能要求得以满足。
二楼

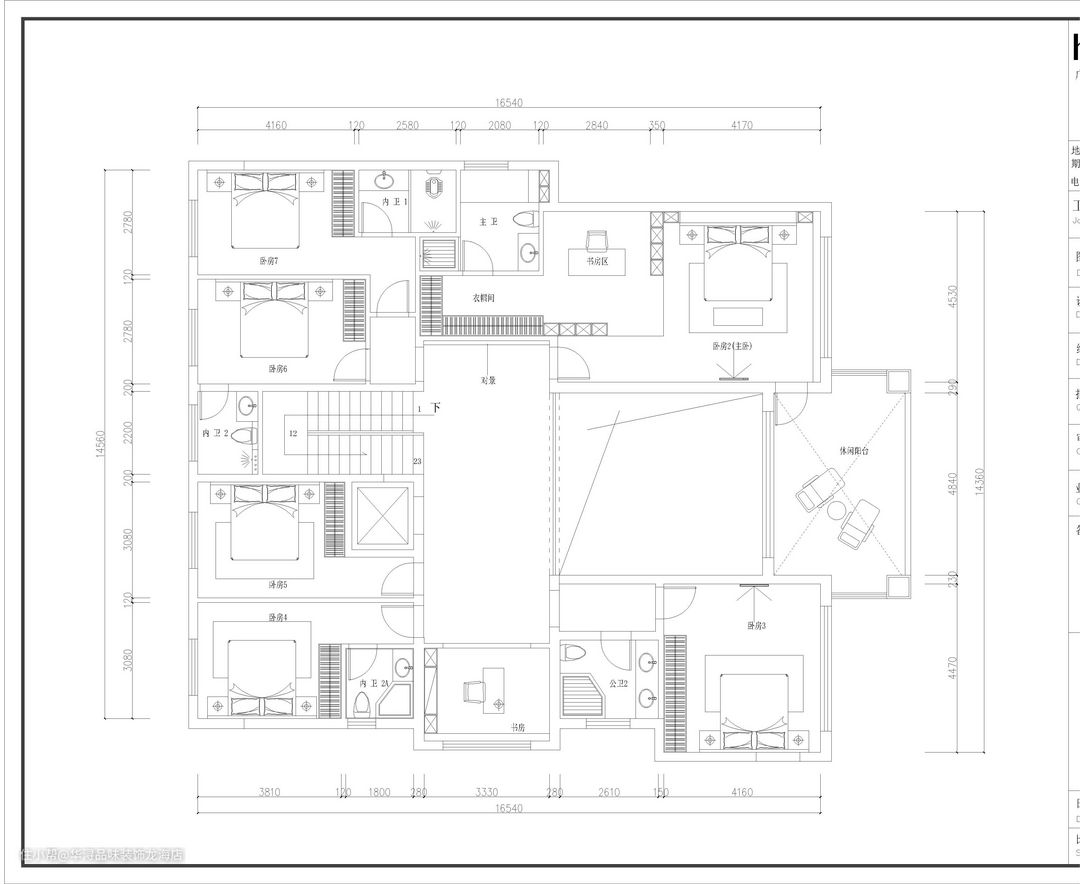
▲ 二楼平面方案图
二楼 - 主卧

主卧在收敛的引入中国风的元素,于文化氤氲处,涵容古朴风雅之致。在卧室设有博古架担当空间的软隔断,巧妙地将卧室与阅读区一分为二,一同营造舒适惬意的空间情绪。
三楼

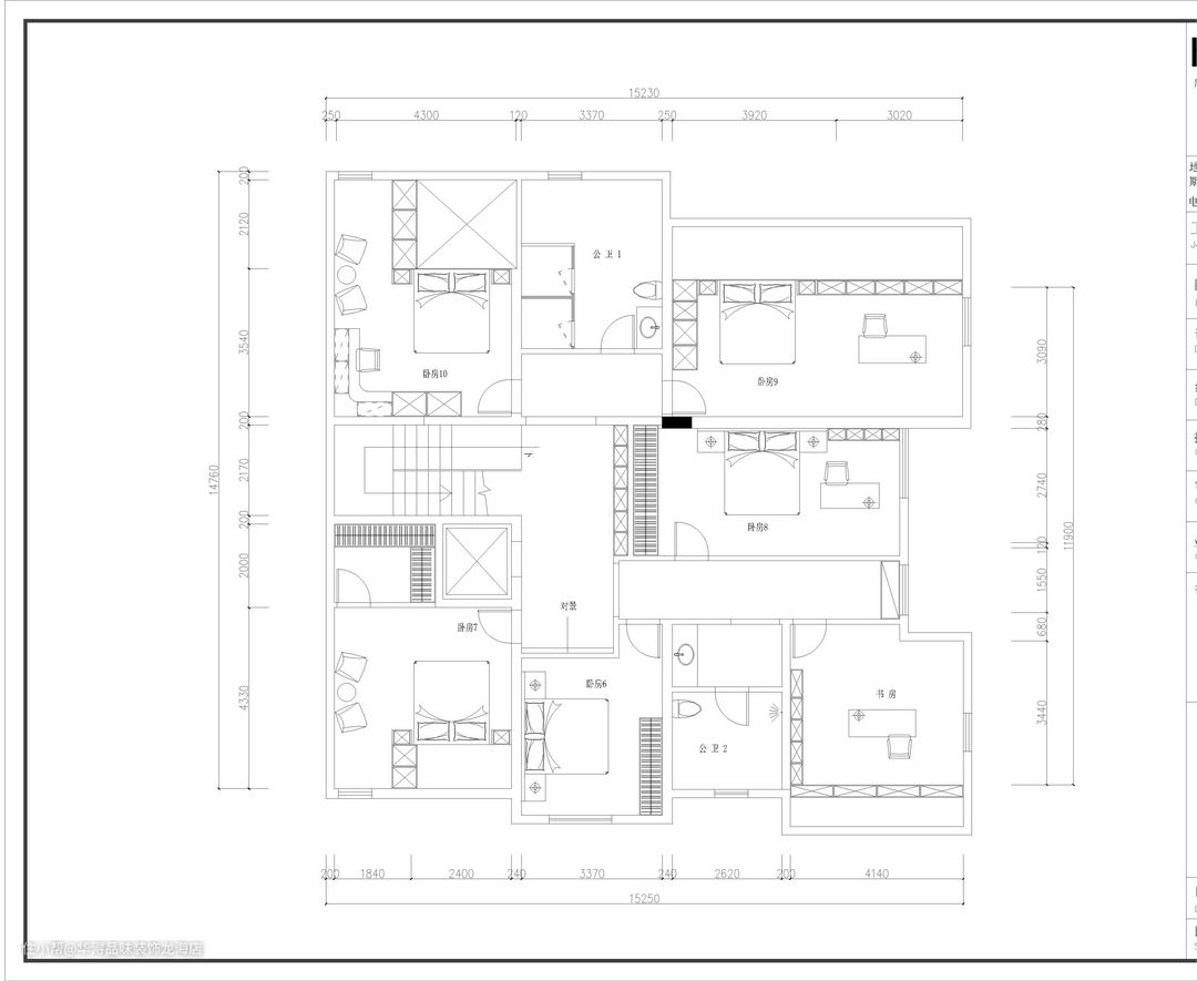
▲ 三楼平面方案图
三楼 - 卧室

空间将东方意美与人文内涵兼收糅合简净的居住格调舒缓疲惫于都市节奏的身心,生活在这里,安逸又闲窗的一隅打造成独立的阅读区,窗外的景色尽收眼底,给人温馨放松的片刻时光。

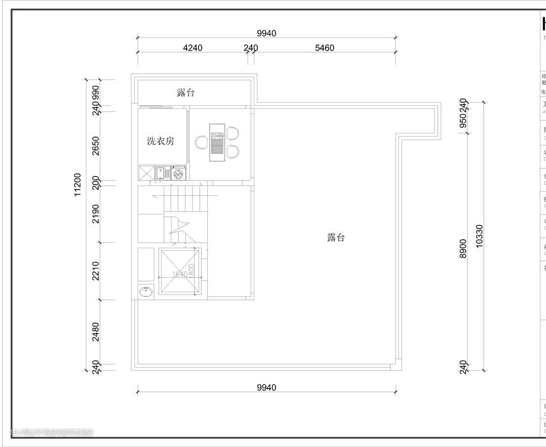
▲ 四楼平面方案图

▲ 西面外观

▲ 西南外观