80㎡户型改造 | 通透空间,增加采光
彩兔家居软装全案设计
2023-06-05
项目:东林城市花园
面积:80平
户型:两室一厅一卫
风格:原木风
业主为父母购置下这套二手房,两家人住进点方便彼此照顾。小区东林城市花园是2008年的老小区了,房子到手后业主希望通过重新装修,为家人打造一个舒适、敞亮的生活氛围。
设计理念:
考虑到是老人常住的居所,我们用全屋木地板来增强安全性。搭配更多天然材质,让空间充满天然的气息,给家人营造清新舒适的生活环境。

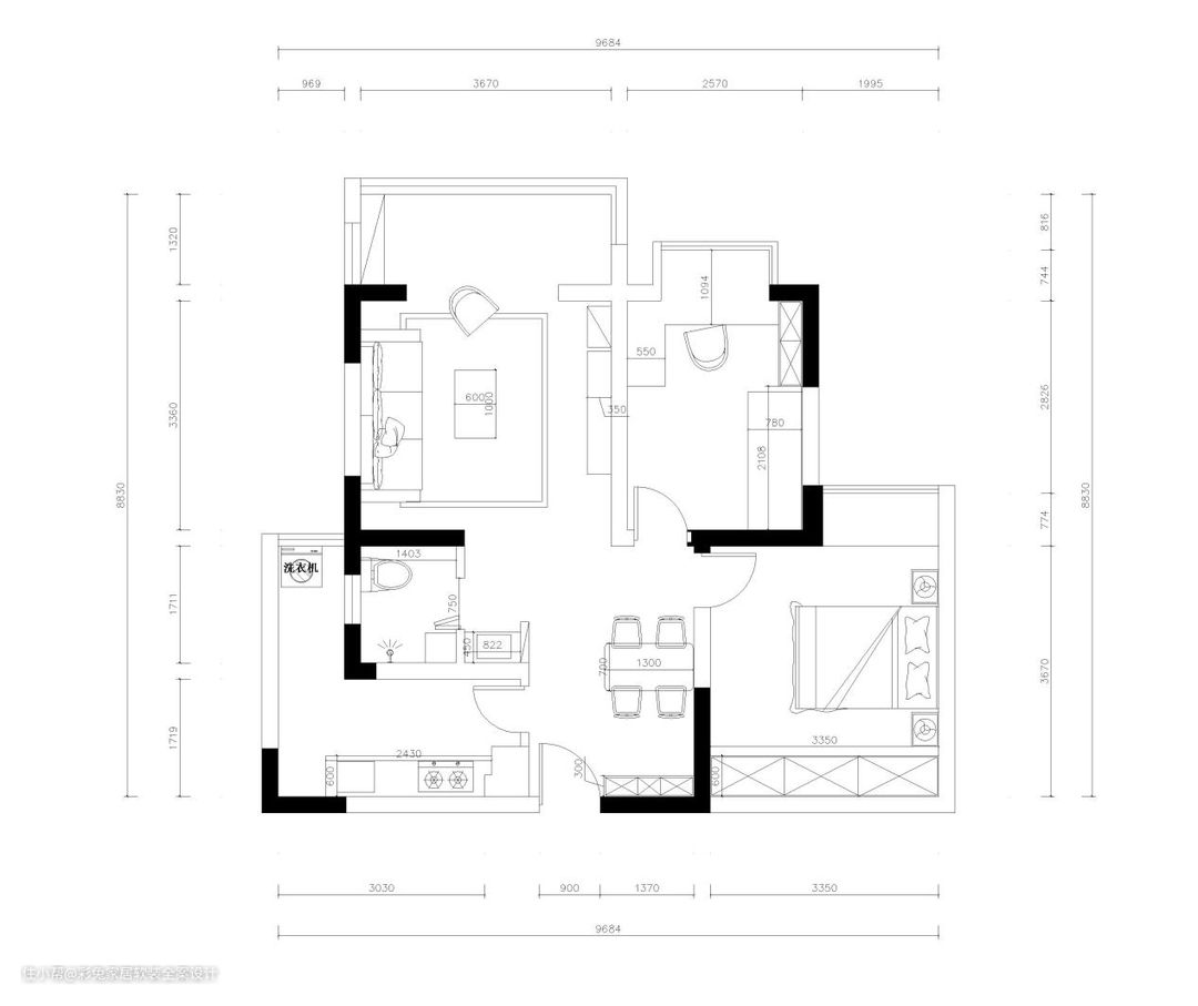
户型改造:
原户型单面采光,户型方正紧凑,不足之处主要是卫生间和厨房都比较小,我们通过移出洗手台、做干湿分离来让卫生间空间更显宽敞;厨房和生活阳台也打通,让家务路径更方便。

经过重新布局,增添了收纳空间,优化了各个功能区域:
1. 入户门厅和餐厅融为一体,将过道空间利用了起来;
2. 卫生间外做半隔断,方便洗手,空间也更宽敞通透;
3. 次卧飘窗打造成书桌,增加阅读办公的空间功能。


