119㎡三房改四房,让客厅变茶厅,生活大变样。
轩怡家装丨爱家整装
2023-06-13
家的简介:
本案的业主是潮汕人,对于潮汕文化中的饮茶文化表示非常喜爱,并且不想再保留传统的客厅老三样,想让家符合自己的热爱,整体空间线条简洁流畅,背后也体现屋主注重生活品味.注重健康时尚.注重合理.科学消费。
业主需求:
① 够住情况下想要一间茶室。
② 需要大量隐形储物空间
③ 儿童房要有天真童趣的风格
改造思路:

1. 保证居住情况及功能间的场景里,满足客户在家待客饮茶的需求,首先想到了“去客厅化”把客厅改造成茶室。
2 . 在不影响美观的情况下,在每个房间都会配备两个通顶储物空间。
3 . 预算不够的时候选择弱化其他两个房间的主题设计,尽量把主题装修带到儿童房。
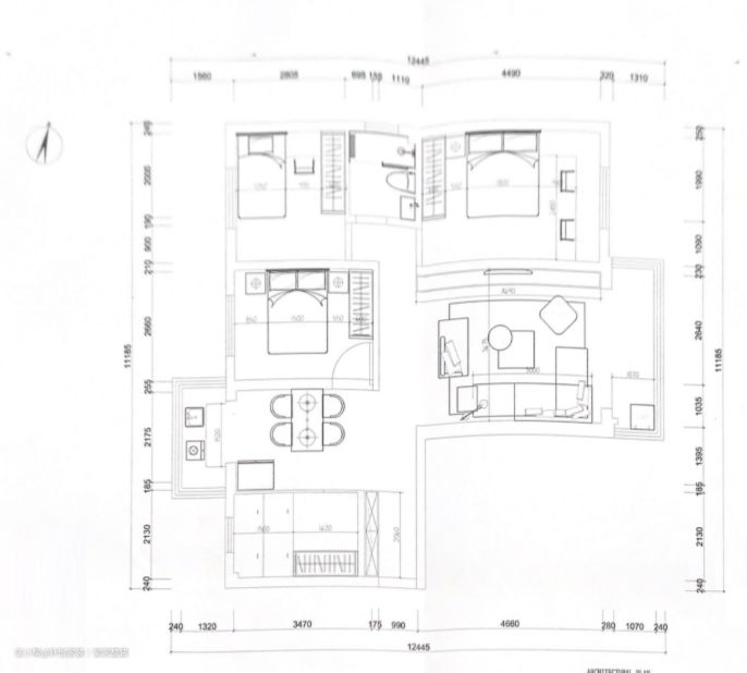
4. 原本的三房已经不够住了,只能在空间上找地方去做另一个房间。
玄关

玄关采用通顶打造玄关柜,收纳能力大大升级,置物区,衣帽区,换鞋凳,鞋柜,全身镜一应俱全,出门拿包,换鞋,穿衣,随手储物一气呵成,把储物间和衣帽间的压力分散部分到玄关,大大减少室内的收纳压力。换鞋凳和玄关柜融为一体,不用挪移的换鞋凳也变得更加轻松便利。
客厅






客厅作为主人的会客区,我们做了一个大胆的提议,“去客厅化”,把客厅打造成茶室,沟通后,屋主欣然接受我们的提议,所以设计师并没有预留电视背景墙,而是利用背景墙去打造规整利落线条去分割视觉上的延伸感,客厅吊顶采取双眼皮主灯设计,同时也加入轨道灯的设计,让双眼皮吊顶更富有空间层次感,墙面的线条流向也增加灯带去拓宽视觉感,让整体空间大气简约。
茶桌选取大理石桌板搭配金色边框,用黑色桌脚去压制奢华感,选用大理石桌板也是考虑到南方城市潮湿,大理石特点不怕水,不易出现划痕,易清洗,有质感。不仅适用于喝茶,也可以当成餐桌,使整体空间协调,采用风扇吊灯也是考虑到家里有长辈,不适合经常吹空调。
厨房

厨房虽然没有采用传统的用门隔档,但是却没有开放式厨房那么大的油烟蔓延,做U型橱柜,更加符合人体工程学,橱柜和地板采用同一个色调的瓷砖,形成呼应,保留原始墙体,在视觉上也更加开阔,空间更大,提升了整体采光。
主卧

衣柜侧边做开放式置物架,在上面可以摆放一些装饰摆件或者生活用品,补足没有床头柜置物的空间,衣柜分区不仅有挂放大衣的地方,也在柜子下做多个抽屉,存放一些贴身衣物,这样坐在床上也能轻松拿到衣物。



主卧采用和客厅一样的浅蓝色系,房间顶部采用无吊顶主灯设计,空间更加简洁,整体软装设施采用米色和白色打造轻盈感,取消单独的床头柜设计,让床头柜成为电脑桌的一部分,实用又不会突兀。
次卧1


次卧2




调整空间结构布局是跟屋主讨论过,所以就牺牲掉餐厅的空间给这个小房间让路,需要留出一定空间给家里长辈摆放物品,所以右侧窗台留出部分置物的余地,由于户型原始结构在顶部凸出部分下方留出空间用来存放闲置物品,主灯采用环形灯,让空间整体氛围更加温馨和简约。
卫生间


卫生间面积小也不影响做成干湿分离的结构,墙壁上安装的扶手考虑到家里有老人如厕不方便的情况,最妙的地方在于分割窗户的环形玻璃门,将窗台一分为二,一边放置洗护用品,一边放置卫生用品,同时玻璃门也隔绝浴室的水汽润湿卫生纸的情况,镜子和收纳成一体,这样不仅内嵌的洗手台面能置物,镜子旁边的收纳柜和镜子面前的架子也能减少台面放置的洗漱用品数量,使台面更加干净整洁。