阳光城檀苑142㎡,纠结地板颜色,不如试试全屋地砖通铺
苏州安然居装饰企业
2023-06-20
这家小细节特别多,倒不是说那种网红的小细节,而是基于业主自身习惯所打造出的专注于自己体验感的细节,比如全屋地砖通铺、定制不锈钢衣架代替定制柜、内卫做干湿分离等等,聊着天,就能感受到她是绝对忠于自己感觉的女性,对使用物品要求也较高,关键是审美超好。那就跟着我们来感受一下独属于朱女士的人间“烟火气”吧。

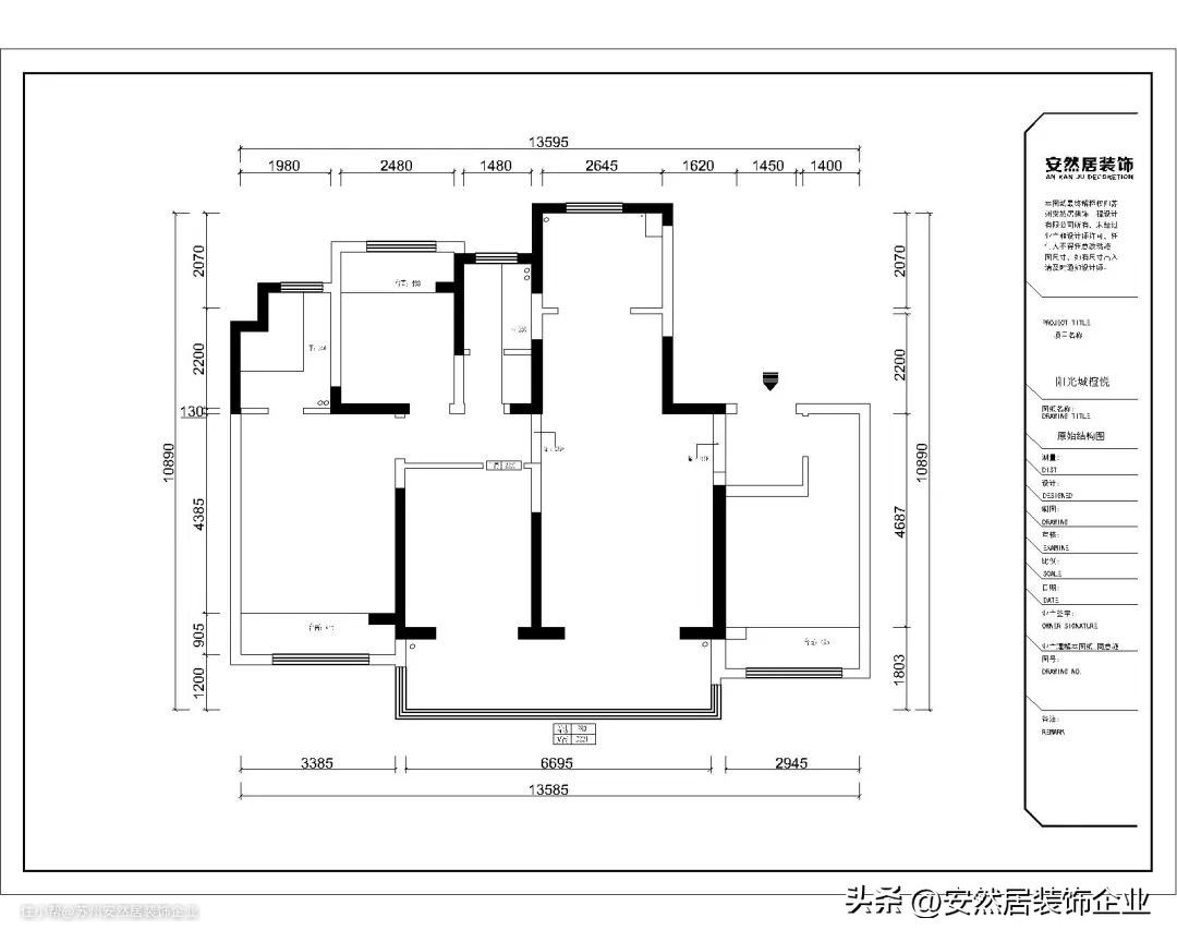
- 原始框架图
♥我们先来看一下原始户型交付痛点:
1️⃣.朱女士希望家里明亮,好打扫卫生,提出是否可以不用地板就能打造出温馨感;
2️⃣.入户区域小,做了鞋柜后,两口子一同转个身都好难;
3️⃣.入户门正对面的房间的巨大飘窗如何得到有效利用;
4️⃣.北次卧想要衣帽间兼书房间的功能;
5️⃣.主卧内卫因为是下沉式卫生间,管道可以局部调整的情况下,是否有更理想的方案?

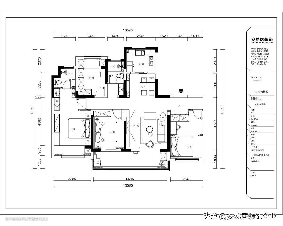
- 平面布局图
♥平面方案布局改善:
1️⃣.全屋通铺地砖,比较小众,但是通过对地砖的选色及后期软装的搭配,一样也可以很温馨,只是一定要有几点注意事项,在下文中会一一分析;
2️⃣.入户玄关把原本次卧的房门开向做了调整,多出来的将近2个平米就纳入到了玄关,鞋柜的位置也靠在了东墙体,这样即便是一家人同时回家,空间也都游刃有余;
3️⃣.南次卧的飘窗几乎等同于房间东西向的尺寸,就从窗户一侧做了榻榻米的定制设计,直接做到2米,过年时候下盘棋都能再加两个观战的战友,贼拉舒服;
4️⃣.北次卧空间不大,飘窗做了定制柜,与之拉平尺寸的则是与飘窗同侧的很好看的布帘设计,里面则是朱女士网购的不锈钢衣架,膨胀螺丝直接打在墙上,几百块钱搞定不输全屋定制的效果!
5️⃣.一番沟通,小姐姐可以接受内卫做干湿分离,卫生间的墙体往里挪,房门往中间偏一点,外面的台盆柜对面就可以再做一个储物柜出来,这样边边角角都得到了很好的利用!至于有人会担心的台盆柜地面会溅水的问题,别忘记,我们可是全屋地砖通铺哦!
/ 客厅 LIVINGROOM /

入户门看进去,白色墙面、奶白色木门、米灰色瓷砖,整个基调明亮又不失温馨。


白色岩板背景➕黑色大理石台面,中间镶嵌黑色层板做了层析上的划分,内嵌电视几乎严丝合缝,这里有个tips:在做设计前一定要定好电视机的尺寸及型号哦!


地砖通铺进阳台后,原来装移门的地方留了一段墙体,就着这段墙体放了一个成品的吧台柜,同样是黑白材质,与背景颜色温和,不显乱。

沙发背景相比对面的电视背景,颜色浅了很多,这种温润的质感与深灰色对比强烈,这样不容易头重脚轻。

从这里看向入户玄关,是不是就感觉开阔很多,前面说一家人同时进门换鞋,空间也游刃有余,没说错的吧?



就这个阳台是多少女性的心头爱,粉粉的休闲椅,出圈的氛围灯,甚至小台盆后面都加了一组曼妙的纱帘,就算细节不清楚,也能触手可及到纱帘的柔软。
/ 餐厅 DINING ROOM /

餐边柜采用分段式设计,玻璃门板配合灯光,隐藏拉手,简洁明亮,吸引我们的是里面琳琅满目的各色好看的酒具。



厨房采用两联动移门,墙面米色格栅搭配同色系餐椅,果然验证穿搭上的那句话:颜色不过三,简单也高级!
/ 主卧 MASTER BEDROOM /

床头半墙设计,与客餐厅一致的护墙板颜色,反射的灯光映衬墙面温润的质感,真的柔和很多。赭石色的皮床,搭配同色窗帘,现在我说小姐姐审美超级在线,你们应该都信了吧?


这里要插入一个避坑点:床头顶面不做射灯,因为躺在床上以后会刺眼的,像这种造型轻盈的垂钓灯放在这就很不错,两侧就算不是一样的,也很好看!



可移动式投影,周末来场大片,再搭配左侧床头柜可移动式小零食柜,完全不输电影院好伐?
/ 南次卧 SOUTHERN BEDROOM /

几十块钱的石膏板也可以打造出几千块的效果,不信你看墙面!随手勾勒出的云朵造型,内嵌线性灯,注意在放置灯线的时候稍微转向墙面,不然躺下会刺眼哦!
悬浮床和灯光必须是绝配啊!
/ 南次卧 SOUTHERN BEDROOM /

利用了原本的飘窗位置做出来的榻榻米设计,却又区别于传统,两侧做了耳朵造型,自成一体却又紧密相连外侧的空间,台阶处是收纳的抽屉,搭配灯光出来一个非常妙的悬浮设计!

定制衣柜与书桌做了时下最流行的穿插设计,视线得以无限延伸,又避免不好开门的尴尬。
/ 书房 STUDY /

这个强烈安利:小姐姐不需要叠放的区域,依据尺寸在网上定制了不锈钢挂衣架,布帘在里侧,纱帘在外侧,留一点灯珠,一个简单但是实用的衣柜就完成了,最主要的是颜值颇高。