这对夫妻把客厅阳台改成了卧室,客餐厨一体,高级范儿十足
家居出品
2023-06-21
本案屋主是一对90后夫妻,男主人钟情于灰色,其次是木色的家具,对暗色调没有抵抗力,而女主人很喜欢粉色,就像他们的性格一样“背道而驰”,但往往这样的两个人走到一起就能刚好互补。一起来看看他们的家是怎样的吧!
房屋信息
面积:80㎡
户型:三居
风格:现代轻奢
造价:18W
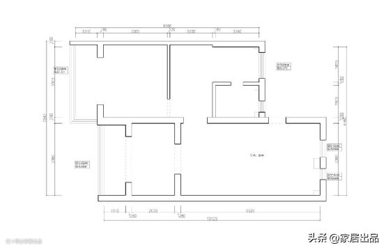
户型结构

原户型最突出的问题有三:①公共区域的功能布局和划分不明确;②阳台与客厅之间有两道隔断墙,割裂空间,利用率从低;③卫生间开门方向在卧室?(这是最最最不理解的地方)
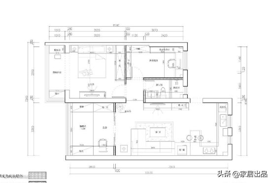
平面布局

改造1:厨房设置在进门处,侧面窗户提供了良好的采光和通风环境,开放式厨房与餐厅合并,节省空间又不影响室内光线。
改造2:拆除客厅与阳台之间的两道隔墙,将其合二为一,打造成一个相对宽敞的休息空间。
改造3:缩短卫生间宽度,将门洞改至过道方向,优化布局,使动线更流畅。
改造4:原来的不规则次卧改为书房,满足男主人的办公需求。
客厅


客厅整体以灰色为主,沙发背景墙选用几何多色拼接,在这个深色居多的空间里,脏粉色才是主角,淡化了深灰带来的沉闷灰色,却又不过过于跳脱,属于相互成就的关系。

黑色皮质沙发和大理石深色纹理茶几,衬得空间时尚又高级。


电视柜与入户的玄关鞋柜连成一体,开放格与柜子组合,让收纳方式更加灵活方便,整体性非常强,起到延伸视觉的效果,
餐厨

为了保证客厅有充足的采光,厨房采用开放式设计,定制橱柜,进门处嵌入洗衣机,上方做了个浅色的吊柜,方便收纳洗衣液之类的物品,最大化利用空间。
靠窗设置水槽区,光线好清洗切配方便,转角过来的烹饪区采用大吸力深吸油烟机,平时开窗通风,确保室内拥有新鲜的空气。


延伸出来的吧台,配两把高脚凳,既是夫妻俩用餐的地方,也是厨房台面的一个补充,同时也在厨房与客厅之间形成了一个软隔断,隔而不断,客餐厨一体却又分工明确。

操作台的高度根据夫妻俩的使用习惯进来做,高低台设计,洗菜不弯腰,炒菜不菲胳膊,非常人性化。
主卧


主卧延续公共区域的风格,深灰色电视墙搭配脏粉色床头背景,简约却不失格调,时尚大气。


双开门衣柜容量超大,床头除了台灯以外,还在平台上装了灯带,营造温馨浪们的空间氛围。

次卧

客厅通往阳台一侧是改造而来的次卧,百叶玻璃门既保证了卧室的私密性,又不影响光线,颜值与功能并存。


榻榻米床兼有收纳和睡觉的功能,连体柜做了一个书桌,最大化地利用空间,方便以后孩子学习做功课。

深色柜体,中间留空作为写字台和开放格,上方嵌入灯带,配合台灯,明亮却不会刺眼,为孩子提供良好的学习环境。
书房

多功能小书房,三开门收纳柜加双层收纳台,空间宽敞明亮。
卫生间

卫生间干湿分离,洗手池做了台上盆设计,胡桃木浴室柜和深色瓷砖遥相呼应,镜柜既能储物,又能在视觉上起到放大空间的效果。
由于全屋以深色为主,为了不让空间显得昏暗压抑,便广泛地使用了灯带,提升亮度的同时渲染氛围,在面积有限的情况下也不会显得局促。
本期分享就到这里,如果喜欢今天的内容,那就点赞分享加个关注支持一下吧!我们下期再见~#头条家时光#