杭州90后姑娘晒28㎡独居小家走红,家居氛围温馨治愈,真让人羡慕
家居设计师宅哥
2023-06-26
大家都说买公寓不好,但是对于很多刚需买房的年轻人来说,公寓也是不错的选择。
尤其是对于很多单身的小姐姐来说,婚前拥有一套属于自己的房子,真的是一件很幸福而且很有安全感的事情。
她们并没有太多钱去买大的住宅楼,但又想有一个完全属于自己的小窝,不想再过租房子的生活,这个时候公寓就成最好的选择,而且loft公寓的使用面积比较大,房子的层高足够做两层,能够增大很多的使用面积,对于一两个人居住来说,真的很不错。

本期家装案例给大家分享的就是来自杭州的一个90后女孩的家。
小姐姐已经在杭州生活和打拼七八年了,七八年的时间,常常会随着各种各样的原因去寻找新的住处,无数次的搬家,无数次拿着大包小包的行李辗转在这座城市之间。
小姐姐终于受够了这种漂泊不定的生活,所以选择用自己的积蓄,再加上妈妈支持了一部分,首付了一套loft公寓,公寓的面积并不大,但是对于她来说,这就是属于她自己的家。
小姐姐说,现在的她很幸福,也很满足。


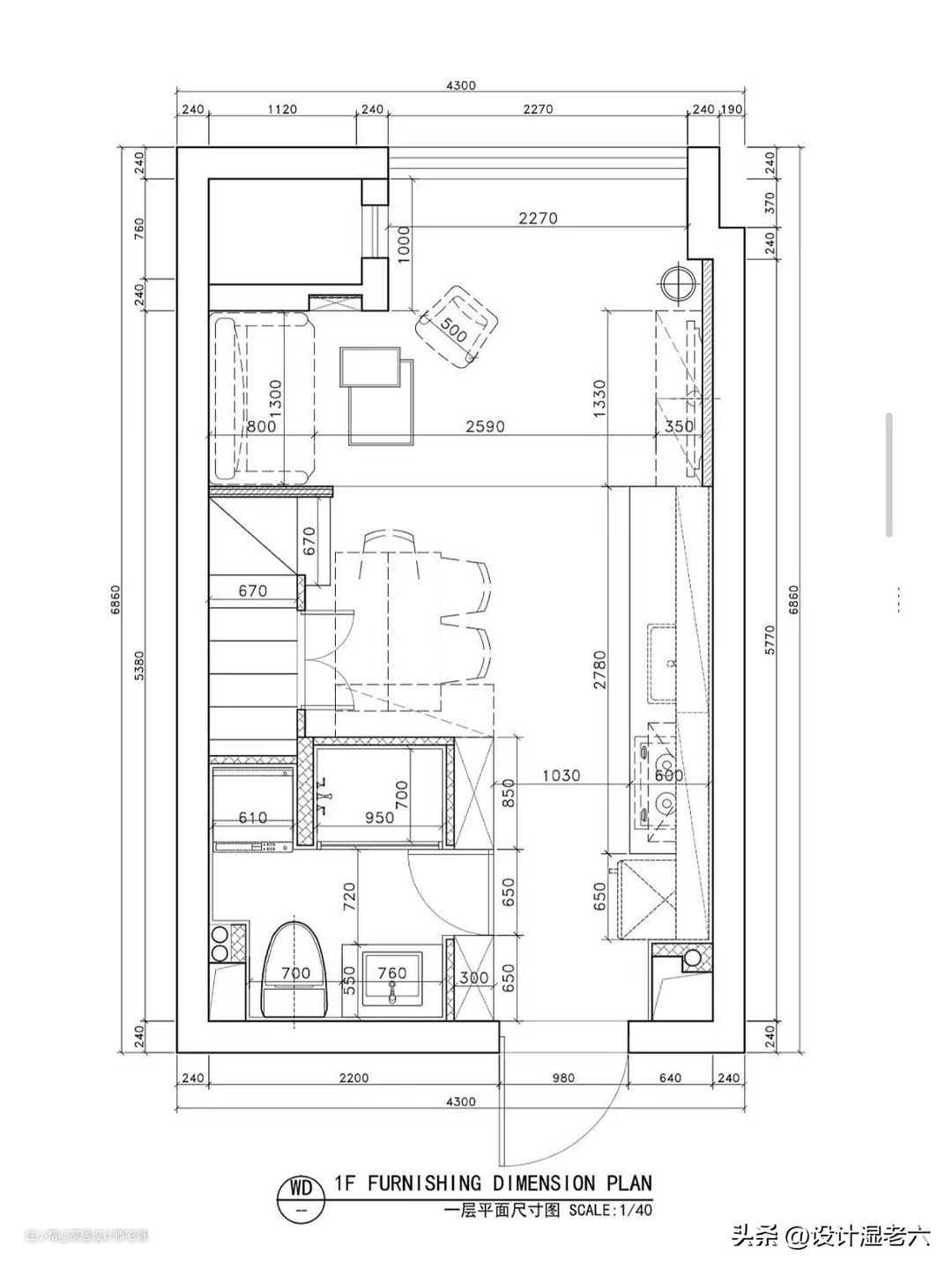
房屋坐标杭州,建筑面积38.88㎡,套内面积28㎡(一楼),因为是房子是loft公寓,层高4米,又搭建了一个15㎡的二楼,家里的实际使用面积达到了43㎡。
一楼进门左侧是玄关柜和卫生间,右侧是一字型的开放式厨房,楼梯下方和卫生间外墙转角处是小餐厅,靠窗一侧是4米挑空的客厅。

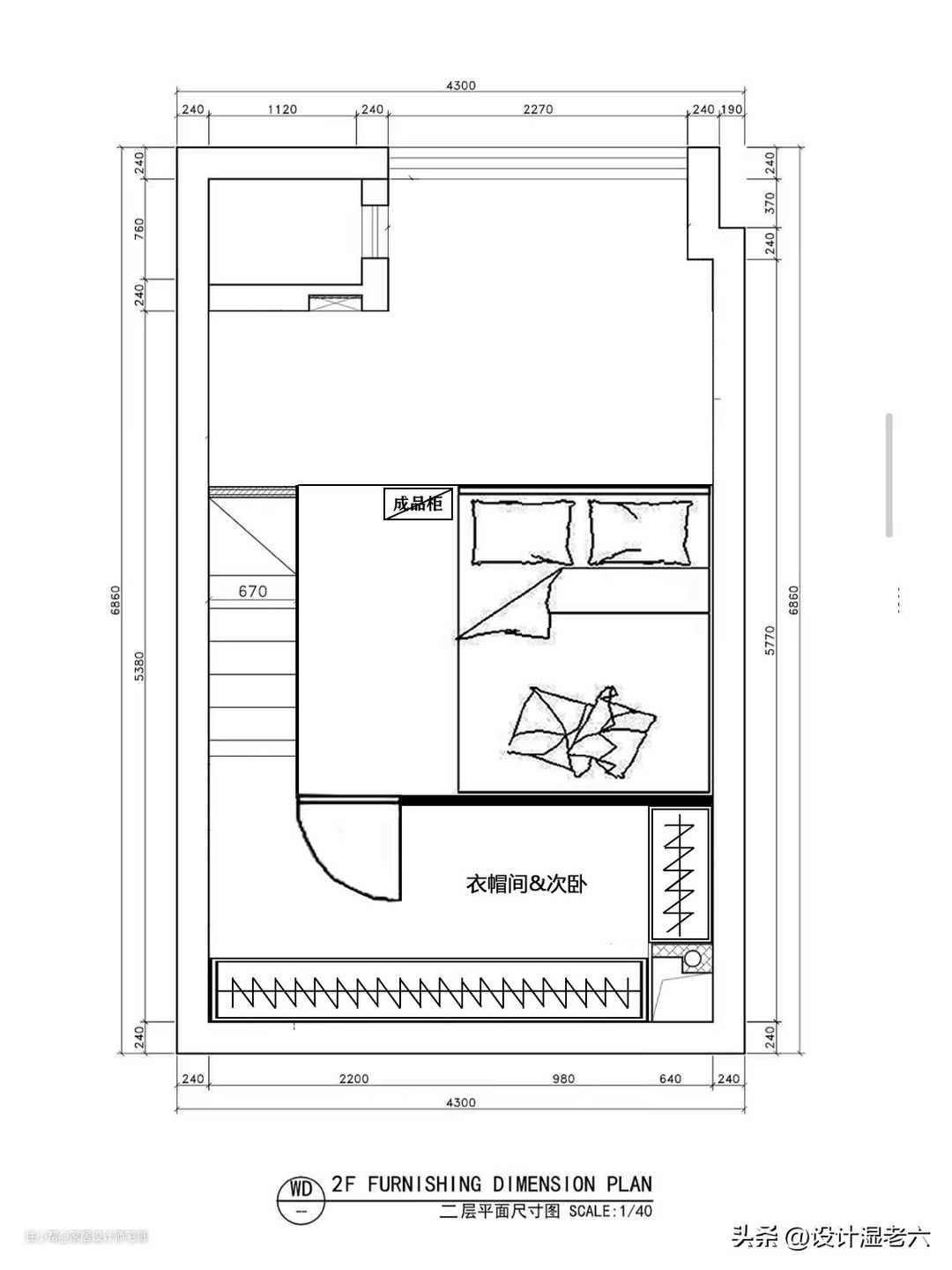
二楼是隔出来的,层高1.9米,规划了一间卧室和一个衣帽间,衣帽间里设计了折叠床,有需要的时候可以作为客卧。
房屋整体的结构设计得非常合理,功能区划分得也很明确,居住体验还是非常不错的。
对于一个独居女孩来说,这种loft公寓型的住宅相比小户型的平层住宅,实际使用面积更大,空间感更强。
家里的装修风格是奶油原木风,白色、原木色、奶咖啡营造出温馨治愈的家居氛围感,这也是很多人都的喜欢设计风格。
在软装细节上面,各种各样精心的布置,使整个家居住起来更加方便,同时看起来更加的美观和温馨。


入户兼着厨房和玄关的功能,整体面积不大,但是配色简单大气,功能性十足。
灰色的入户门有一些简单的纹理造型,看起来简单又利落,门后面用一些小装饰品做点缀,就一点也不会显得单调,而且还显得非常温馨。

进门左边是玄关柜,整个柜子的空间很大,可以收纳很多东西。

上层空间用来收纳包包、围巾之类的物品,容量还是非常可观的。

中间的镂空处放置一些好看的装饰品,这种摆放显得更加俏皮,也更加生动。

下层是放置家居杂物和书籍的地方,两层的空间,收纳能力也是非常强大的。

靠近餐桌这边的玄关柜主要用来收纳鞋子和外套,鞋子再多也不用担心装不下。

玄关柜对面的墙面上还安装了洞洞板,用来挂放包包、口罩、帽子、钥匙等物品,超级方便又实用。


卫生间的门做的是隐形门的设计,和玄关柜完美的融合在一起,看起来一点也不会突兀。

卫生间门也没有做把手,采用的是按压打开的方式,打开门后才会发现后面其实别有洞天。

卫生间空间做了干湿分离的设计,并充分利用楼梯下方的空间摆放了洗衣机,整个空间都被完全利用了起来。
墙砖和地砖都是灰色的,整体是一种冷色,但视觉效果显得很高级。

角落处放置着洗衣机,洗衣机带烘干功能,洗烘一体可以解决小户型没有阳台晾晒的烦恼。
洗衣机旁边还放置着一个脏衣篮,下层可以收纳脏衣服,上层还可以收纳一些清洁用品。

马桶上面放置着一个小玩偶,这样就不会给人一种冰冷的感觉。
马桶旁边的空间也是充分利用了起来,见缝插针的摆放了垃圾桶和置物架,可以收纳日用品。

淋浴间是单独隔出来的,里面安装了一套奶白色的恒温花洒,不仅颜值高,洗澡的体验感也是直接拉满的。
墙面上还有一些置物架,可以放这些洗澡用的东西,很方便。


厨房位于入户右侧,是一字型的开放式厨房,对这种小空间面积来说,这种手法的设计是最合理的。
厨房的橱柜和吊柜都是白色的,给人一种很干净的感觉,并且柜子也很多,收纳空间充足,一个人用是完全足够了~

厨房台面上摆放着各种各样的厨房用品,全部都是小姐姐精挑细选的,颜色和厨房很搭。
冰箱上挂着的可爱围裙,冰箱侧壁上的调料置物架,冰箱上的收纳盒和小摆件,满是生活的烟火气息。
每个角落,每一处细节,都是相当实用,而且非常的漂亮啊~

厨房台面上还摆放着的小饮水机和咖啡机,都是很可爱的。
吊柜下方还安装了一个架子,用来放这些好看的杯具,不占用太多空间就能在家里拥有一个咖啡角,也是非常惬意的。


餐厅挨着厨房,在卫生间外墙和楼梯的转角处,既充分利用了空间,又方便使用。
餐桌空间很大,不管是一个人就餐还是招待亲戚朋友都完全没有问题,而且平时处理一些工作也非常方便。

餐桌和餐边柜是一体的,并且可以折叠收纳,平时不用的时候收起来,一点也不占空间。
楼梯下方的空间也没有浪费,充分利用空间设计了收纳柜,增加家里的收纳空间。

餐桌展开后,有两种形态,一个人在家用餐或者办公时,可以撑开单层使用,活动空间更大。

餐桌的桌面和支架都是两层可折叠的。


客厅面积虽然不是很大,但是4米的挑空让人觉得空间非常开阔,并且旁边还有超大的落地窗,通透又明亮。
落地窗营造出了很好的光影效果,白天阳光洒进来,也是一番很惊艳的景象。
电视背景墙上安装了一台壁挂电视,上方有两个置物架,下方有一个白色的小电视柜,美观又实用。

客厅地面铺着柔软的地毯,加上一张可变形的懒人沙发,窝在这里真的是非常舒适惬意的。

看书累了,躺在上面小憩一会,真的非常舒服啊!

客厅另一侧见缝插针的摆放着一张小沙发,非常的可爱,再加上一些卡通动漫的元素,给人一种浪漫温馨的感觉。


通往二楼的楼梯旁边的墙面,是小姐姐最喜欢的区域,满满的三个手办柜子,真的是让喜欢动漫的人狠狠地羡慕了吧!

楼梯上方还安装了铁栅门,可以防止家里的小狗狗上蹿下跳的破坏家里的物品。


从楼梯上来,是一个开放式的衣帽间,衣帽间的柜子沿墙L型布设,柜门全部用帘子代替,给人感觉这边还有一扇窗户。
衣帽间内有一张折叠床,有需要的时候展开,这里就可以充当客卧使用,满足家人或者朋友的留宿需求。


从楼梯旁边的门进来,就是主卧空间了,卧室内整体也是非常简单的,但是却非常温馨。

靠墙的玻璃植物架上摆放各种的小玩具,可爱又温馨。

小姐姐真的是很喜欢玩偶,玩偶元素在家里面随处可见,猫咪元素的玩偶放在床上也是蛮可爱的!

床靠墙角处放置,卧室外侧隔墙采用长虹玻璃作为隔断,半封窗的设计让光线和通风都能得到保障。
并且内侧安装了窗帘,睡觉的时候拉上,私密性和安全感都有,完全不影响睡眠质量。

床旁边摆放着一个小床头柜,造型可爱又创意,实用性也是非常不错的。

这就是属于这个90后小姐姐在杭州的小家。
很多人都说这种公寓楼买得不值当,但是对于小姐姐来说非常值。
这样一个不大的小家,也没有花多少钱,但是可以打造出这样温馨的效果,而且这个家完完全全属于小姐姐的,这一点就足够了~
本案图源来自@zzzzzzz,文字部分属于原创,图片版权归原作者所有,侵权请私信联系删除