福建夫妻拒绝“过度装修”,把131㎡家装得堪称教科书,太高级了
二十四城装饰成都总部
2023-07-02
福建夫妻拒绝“过度装修”,把131㎡家装得堪称教科书,太高级了
装修预算不高,没有请设计师和装修公司,全按自己喜好找人装修。虽然房子装的并不奢华,但第一次装修能装成这样,已经很满足了。其实普通人家的快乐就是这么简单,不攀比,有个简单大方的家就好了。
今日精选案例是来自@啪嗒的蜗牛的新家,整体硬装蛮简单的,️整个色调以黑白灰暖咖为主,装修风格比较简约风,硬装+软装共花了30w+。瓷砖通铺,打通了客厅阳台,更显大。门洞加高,都做了一门通顶,显层高。没有隔断,硬装没复杂造型,更通透。柜子收纳,合理的储物空间,更整洁。化繁为简,空间里添一点点绿植点缀,增添一点活泼的色彩,家里更有活力。
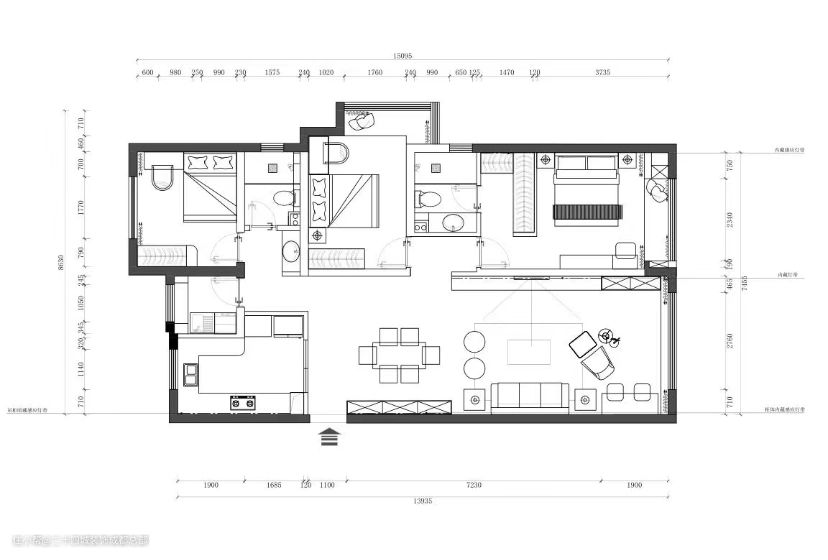
户型介绍

建面131平,套内105平,三房两厅两卫一厨双阳台。️客餐厅一体,总长10米,层高2.73米,客厅开间3.8米,电视墙长6.3米,沙发背景墙6.3米。
餐厅

餐桌是岩板的,配了个暖棕色的桌垫,避免了桌面和碗碟出现碰撞声,看上去更简洁耐看还好打理,平常饭后湿抹布一擦就行了,暖色调也很温馨,适合简约风。

靠墙做了3米长的餐边柜,暖咖颜色跟沙发背景墙一样,整体色调统一美观又实用,满墙的储物收纳空间大够日常的使用了。客餐厅总长有10米,无隔断显大又通透。

建议家里空间够的话 餐边柜要做满墙的,餐边储物一体柜的设计更实用好看,入住后才知道轻硬装,重软装,简单大方的家才会越住越舒适。
客厅

砸了客厅阳台多了6平方出来,将阳台包进客厅,使整体空间显大、敞亮。大平顶无主灯设计,显层高不压抑,屋顶更简洁,射灯按需照明显层次感,整体下吊12cm,四周双眼皮吊顶间距2cm。

暖咖的电视边柜和地柜,造型简约,收纳也很够,电视背面预留插座,隐藏杂乱的电线,看起来会更美观。

电视背景墙:岩板柔光面,拼接填缝处理,连纹更大气,长6.13m含电视边柜,深度15cm,高:2.44m。

电视地柜+边柜:地柜带有6个抽屉,按弹设计,简约又实用,边柜做了一门到顶,储物美观两不误。

沙发背景墙:欧松板打底,贴暖咖色木饰面,留自然缝,1cm公分黑钛分割。全部的造型都是竖向的分割,可以更显层高一些。

2.8m直排深灰色高脚沙发,搭配小号黑色落地钓鱼,氛围感好,摆放一个小巧的茶几空间更显大,铺了个暖色的地毯,最后几幅画装饰下就可以了。
厨房

把厨房墙砸了,单门改双推拉门,南北连接客厅,看起来会更通透。门洞全部砸掉做了加高处理,一门到顶,2.4米高看起来更大气,与吊顶齐平显层高。

灰色的地砖,是和客餐厅同样的款式,直接通铺到厨房,既能让地面显大,又能节省材料。墙面用的还是白色的墙砖,300*600的尺寸,横着贴,简单又好看。

橱柜所有的把手都设计成隐形式,地柜是黑色的凹槽把手看,吊柜是柜门设计得稍微长一点点,可以避免一些没必要的磕碰,也让橱柜更加整洁大气。
卫生间

卫生间不大,只有5平,深色系看起来比较高级,面积虽小但还是做了干湿三分离,家人洗漱互不干扰很实用。

墙面瓷砖是深灰色瓷砖上墙,搭配高级灰美缝,公卫是瓦工砌墙提前预埋好水箱,悬挂马桶,看起来更加简洁大方,卫生好打扫。
主卧

整个卧室风格以温柔的杏子灰为主,背景褐珊瑚的点缀,顶面白色的乳胶漆,主卧吊顶下吊7公分,做了无主灯设计。

床头两边设计了两个壁灯,可以随意转动方向,增加氛围感。越来越多人开始追求简洁美,东西不用多,够用就行,颜色不用多,自己喜欢就好。

家里卧室空间小收纳的需求高,在床尾安排上了化妆桌斗柜一体,化妆桌长度1米,斗柜长度1.2米。化妆桌和斗柜重叠部分预留了30cm,长度可自由伸缩很方便,进深只有40cm,床尾距离墙只要有1米就能放得下了。
儿童房

卧室没有做复杂背景墙,墙面刷了淡蓝色,灰色床搭配蓝色凉席,感受夏日清凉,卡通条纹让整个儿童房童真又乐趣。

儿童房布置的床相对来说小一些,剩下的空间就能多布置一张书桌,让孩子能安静的做作业和学习是很有必要的。
(图片源于网络,如有侵权联系删除)