现代简约居所,此心安处是吾家
华浔品味装饰全屋翻新
2023-07-03
现代简约装修风格,就是舍弃繁复的装饰和设计,通过简练的设计语言,打造出一个优雅大气,更具高级感的居住空间。
本案原本是局部改造的方案,沟通后业主有了更多的想法,最终全屋重新划分了空间布局。打通客厅与阳台,将部分阳台纳入书房改造成大卧室,增设衣帽间等。
了解到业主不喜欢太复杂的设计,更强调简约实用,因此设计师选择了现代简约的设计风格,以浅色系为主色调,让整体空间更通透明亮,暖调营造出温馨的居家氛围,打造简约又舒适的居住环境。
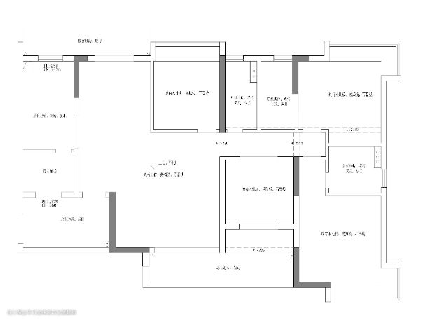
户型图

原始结构图

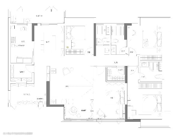
平面布置图
改造对比
1、 入户玄关拆除门洞,让原本独立的门厅与餐厅连成一个整体,让过道更宽阔。
2、 改变储物间门洞位置,原本需要从厨房进入改为可以直接从过道进入,简化动线。
3、 扩大厨房门洞,增加进出空间,提升厨房采光度。
4、 公卫做干湿三分离设计,洗手台外移,提高生活效率。
5、 打通客厅与阳台,阳台封窗增设一个休闲区,扩宽客厅面积,让空间更通透开阔,功能性更强。
6、 一部分阳台并入原本的书房,改造为一个大的卧室;卧室侧面增加一个步入式衣帽间,提高衣物收纳能力。
玄关

玄关左侧设计了一排不落地的玄关柜,可以将换下来的鞋子放入柜子底部,保持空间干净整洁。在玄关柜中部镂空位置内嵌灯带,拿取物品更方便,也增加空间的层次感。
玄关正面增设同色的矮柜,视觉上统一和谐,又能满足业主不同的收纳需求,柜顶还能摆放绿植和艺术品,与右侧的盆景设计相互映衬,一进门就让人眼前一亮。
客厅

阳台做封窗设计并纳入客厅,客厅空间更开阔大气,原来阳台的位置改造成休闲区,和家人一起喝茶、聊天,惬意无比。
打通阳台和客厅后,客厅的采光更好更通透,提升舒适感。客厅选用浅色布艺沙发,搭配深灰色的茶几和地毯,简约大方中又不失高级感。

客厅电视背景墙做了弧面设计,让客厅多了一点灵动和变化。
侧墙增加了通顶的储物柜,其中三分之一设计成玻璃柜门的储物格,满足不同收纳需求,内嵌灯带显得更精致也更有格调。
电视下方的悬浮式抽屉柜,一部分嵌入储物柜之中,看起来轻盈有层次感,可以作为客厅收纳的补充。
餐厅

餐桌木质桌面搭配玻璃桌脚,通透轻盈;布艺实木餐椅带来温润质朴的质感。光线从生活阳台引入餐厅,和暖调灯光共同营造出温馨的氛围。

餐边柜一半设计为封闭柜体,一半设计成玻璃柜门,同时在中部镂空位置以岩板饰面,内嵌灯带进行区域提亮,增强空间的通透感,也让餐边柜具有更丰富的功能性。
卫生间

卫生间采用干湿三分离设计,将洗手台外移,马桶、淋浴与洗手台区域互不干扰,有利于保持空间的干爽清洁,同时早晚高峰期同时使用也不会冲突,提高生活效率。
主卧

主卧同样采用浅色系为配色,打造素雅舒适的睡眠空间。天花的弧形设计,营造出温柔和静谧的空间气质。
书桌一半嵌入木质开放式储物柜中,一半采用悬浮式设计,视觉上轻盈灵动,提高空间利用率。
次卧

次卧以白色为主色调,空间明亮通透,床头背景墙上月牙浮雕装饰,让卧室充满艺术的氛围。
衣柜做了三分之一玻璃门设计,可以用来放置常穿的衣物,一目了然。一门到顶的衣柜延伸出床头柜与床头饰面板,丰富空间层次。
结尾
现代简约,讲究简约而不简单, 舒适实用才是最重要的。低饱和的整体配色,米色、浅咖色、灰色等设计让空间简约明净,低调大气又充满了高级感。