北京一对母女,买下42㎡公寓,层高4.5米挤出三层,利用率:完美
景一说装修
2023-07-06
这个案例是小户型设计的天花板,不接受反驳,说这句话,一点也不夸张,看完这篇文章你就明白了。
房子在北京,大家都知道,京城一线,寸土寸金,房价很贵,能有个住所就不错了。
一对母女花重金买下了一套小loft公寓,房子的面积只有42㎡,层高4.5米,但对母女俩来说,总算有家了,这小房子将是俩人温馨安全的港湾。

来百度APP畅享高清图片
毛坯房,大通间,4.5米的层高要规划成两层其实是有局限性的,会很有压抑感。
但是这房子有个很大的优势,就是整个空间两面全部是落地大窗户,采光无敌好,临窗有被抬高的混凝土地梁,但是不能砸。
女儿是从事艺术工作的,对家居空间有高要求,她像所有的女生一样,喜欢这种LOFT结构,住在这种房子里,就像是尊贵的公主一样,怀着所有的期待与向往,向设计师表达了自己对家的愿意,希望可以帮她实现。

设计师经过充分的考虑与规划,对空间进行了合理的设计。
4.5米的层高,本来设计成两层都会压抑,但是这位设计师可以说是小户型设计的“魔改师”,充分发挥出他的智慧,利用本是鸡肋的窗户边的地梁,将空间划分出了两层,甚至是三层。
Loft的上层用弧形结构置入一个“桥廊”,既能贯通上下层,又放大了公共空间,抬眼一看,很有大户型的特点。
方案一出,母女俩都觉得很惊艳,具体可看下方的设计意向图↓↓↓

下面就向大家一一来剖析下:
从轴测图的俯视角度可以看到,两边的大面积窗户都没有被遮挡,将优势发挥到了极致,
圆弧形的桥廊成了整个空间的视觉焦点,上下两层的边界感因为“桥廊”而弱化了,空间显得更开阔敞亮,连上下楼梯的动线也变得非常有趣。

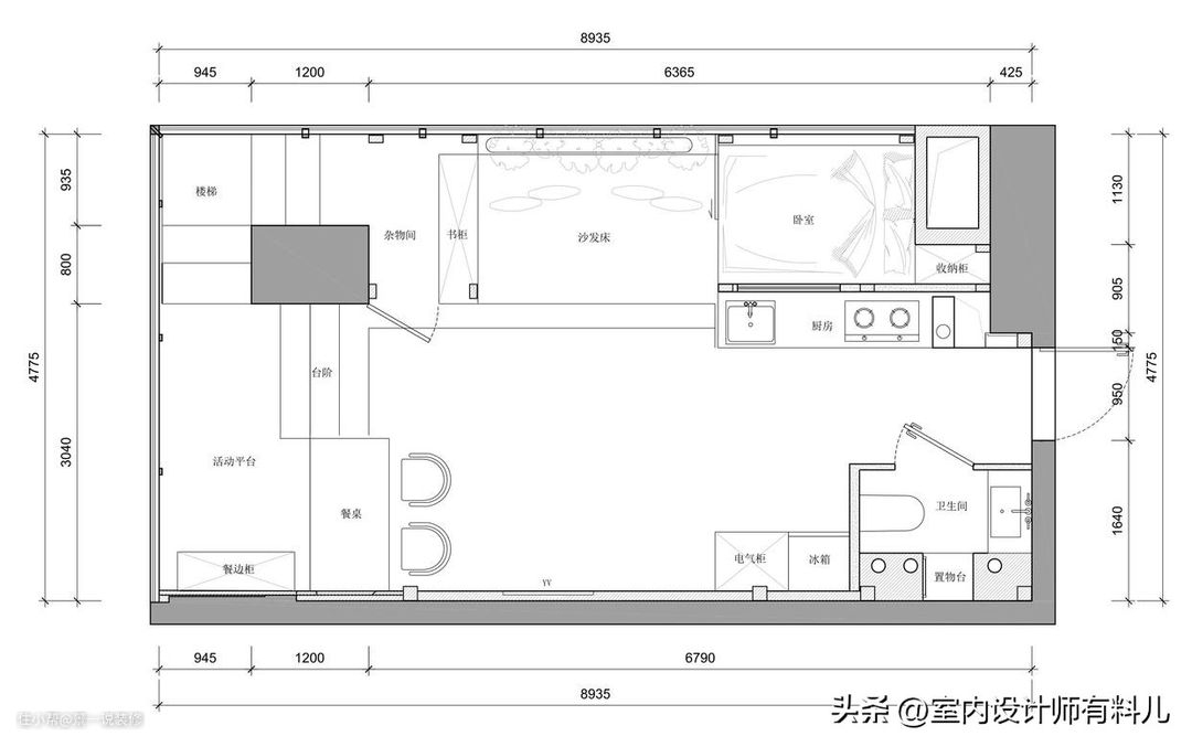
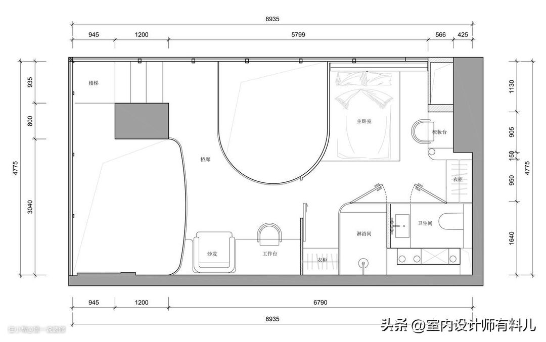
附具体的平面布局图纸↓↓↓

一层改造后平面布置图

二层改造后平面布置图

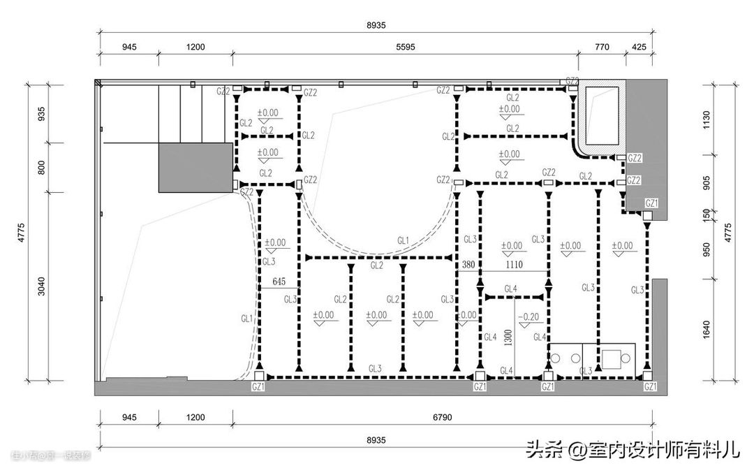
结构设计图
改造后的一层空间
装修完后的公寓一点也不显小,给人的错觉就像是大户型的复式楼,下图是从窗户这边的角度看入户门的方向,整个空间干净利落,高级感十足。
地面用的微水泥,墙面简单的白色涂料,搭配少量的原木色点缀,简单大气。

4.5米的层高在设计师的规划下,精确划分后变成了三层,两面窗户利用地梁设计了两个休息平台,楼梯放在窗户边的柱子后面,真的榨干了每一寸空间,从设计手法能看出,设计师的空间规划水平真牛。
微水泥的无缝特质赋予了空间更高级的整体性。

从入户门这边看过去,4.5米层高也不会显得太过压抑,地台位置都是定制的家具,这样会更嵌合。

靠入户门这边地台处的休息区沙发与旁边的收纳柜一体设计,沙发下面就是原始的地梁,
另外,下方延伸出两个大抽屉,旁边是二级小台阶可以上去,母女俩都喜欢在此观影、休闲、阅读,是平时在家待得最多的地方。


沙发旁边是一字型小厨房,厨房后面是母亲的小卧室,这个房间也是做在地梁上面的,隔出来的小房间,在上面放上一个定制的床垫就可以了。

厨房这里开了一个小窗户,可以借用后面卧室的光线与通风。

另外一边窗户利用地梁也设计了一个小平台,原木餐桌紧靠着平台摆放,
这里可以就餐,还可以办公,面临整个大窗户,有良好的视野,抬头就可以看很远。

下图是从楼上俯视餐桌处的效果,休息平台上摆放了绿植,还放了一个原木色的边柜,
平台与阶梯都是用的微水泥材质,母女俩可以一个在此处办公,另一个在另一边的休息区看书,互不打扰。

从阶梯上到平台,转角处就是上二层的楼梯入口,整个楼梯都是在玻璃窗户边,不占用室内有效空间,而且上下楼时可以看到室外两边的风景。

改造后的二层空间
二层经过“桥廊”到达女儿的卧室,里面还有独立的卫生间,中间有个小过厅,放了书桌,女儿有时候也会在这里办公,
桥廊两边搭配白色的钢制护栏,简练又有气质,有美术馆的风格特点,这里也将女儿知性的气质表露无遗了。

下图则是站在二层桥廊上俯视一层休息区的效果。

二层女儿卧室开了一扇太空舱一样的弧形窗户,主要是打通视觉效果与采光,窗户的弧度都是经过设计师精确设计过的。

从卧室内看向外面桥廊处,这个弧形的窗户带来了科幻现代感,
卧室里面整个白色,两面采光,光线非常好,这点缓解了由于层高带来的压抑感。


卧室内定制了储物衣柜,有独立卫生间,梳妆、洗漱、沐浴的功能都安排妥当,
卫生间采用全玻璃设计,这样既能采光,也让空间更显通透。



文末总结:
本是平平无奇的小公寓,在设计师的妙手改造下,空间变得高级、舒适、实用,4.5米层高划为三层,惊叹设计师的设计能力太强大了,所以,房子的设计比建筑躯壳更重要,只要设计得好,小空间也有无限可能!