诸暨688㎡意式轻奢风大宅装修,品味惬意生活
诸暨珊瑚装饰有限公司
2023-07-10

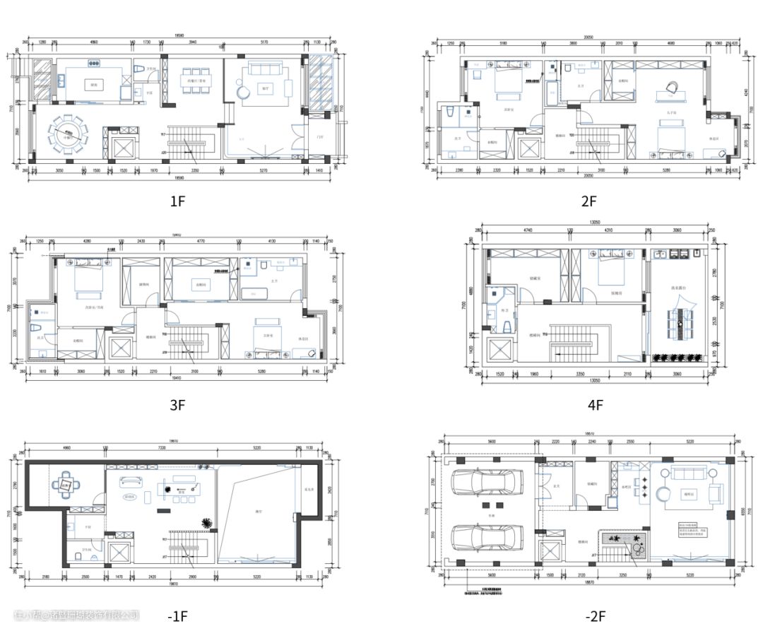
01平面布置图

户型解析
本案是一套688平意式轻奢风排屋装修,户型整体共六层:地上四层,地下两层;户型整体方正,南北通透;客厅做下沉式设计,独特高度差结构,打造层次感;一层为客餐厅区域,卧室设置在2-4层,动静分离不会吵闹。

02客厅

下沉式客厅采用灰白咖为主色调,柔和温暖又极具质感;背景墙采用格栅加硬包材质,辅以灯带简单利落线条丰富层次感;米白色布艺沙发,给空间注入温馨感。

LIVING ROOM


悬浮弧形电视背景墙,格栅+大理石做基底,嵌入灯带透出一缕缕光晕,增添整体柔和度及层次感,金属艺术摆件装饰,使整个背景墙的高级感直线上升。

墙面内嵌电视与开放柜体,辅以线型灯带,提高整体视觉舒适、与美观度;深黑色大理石地台内嵌雾化壁炉,空间氛围感十足。

雅致大气的米色窗帘搭配梦幻帘,带着隐隐约约的朦胧美,恰到好处的描绘着宁静放松的住宅氛围。
03餐厅

业主家设置两个用餐区,一个作中餐厅,一个作西餐厅,空间区域划分明确。

无主灯吊顶造型别致,凸显精致感用餐空间,后面设置厨房,三联动推拉门,方便日常进出。


右边设置通顶酒柜,朦胧的灯光从茶色玻璃内透出,氛围感满满。

日常用餐区设置在客厅边,增添空间互动感;背景墙嵌入一整块大理石,透着淡淡的光,打造一个充满质感的用餐空间,优雅舒适又不过分清冷。

04地下室玄关

一块大理石玄关背景,泼墨大理石衍生出来的底蕴,融入空间,用身心感受空间的尺度的舒适。
05地下室客厅

地下室楼梯造景是一处园林艺术品,用石子与绿植打造置物造景,营造室内天然氧吧,为空间增添生命力。

超高挑空客厅设计,简繁交杂;用古驰绿圆润质感单椅黑色定制理石茶几,搭配线条硬朗的布艺米色沙发,没有复杂的花纹,用简单颜色撞出不一样的味道。

采光井光线充沛,奢华大气感理石背景墙映入眼帘,加上壁炉的搭配,诠释一种静谧又轻奢的格调。

旁边设置水吧区,搭配线型灯带,玻璃柜门满满的精致感;宽敞的台面,精致的高脚椅,完美诠释质感轻奢空间。
谢谢赏析!