120㎡现代时尚宅,黑与白的设计,优雅而大气
设计馆
2023-07-11
这是一套120平米的现代风装修案例,整体空间现代大方的基础,加入大面积的白色硬装与黑色软装细节,营造了一个时尚优雅的居住空间,给人一种端庄沉稳的设计视觉。
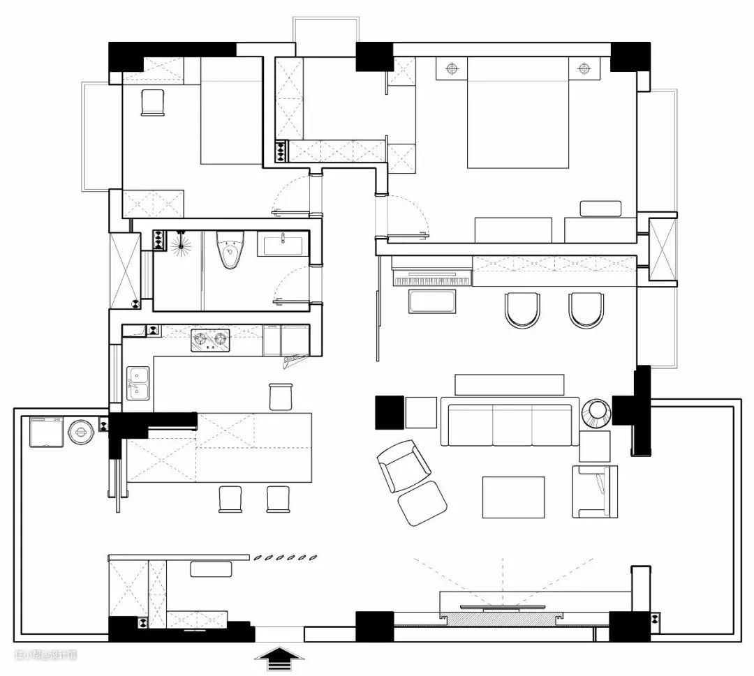
平面布置图

▲120平米的三房户型,整体布局动线合理舒适,为主人打造了一个宽敞舒适的居住空间。
玄关

▲玄关雅白的地砖+黑色鞋柜的组合,搭配蓝色与灰色的换鞋凳,鞋柜中间留空层上爱上黑白配的装饰品,让回家后的第一个空间显得实用而又端庄。
客厅


▲客厅现代风的空间,天花吊平顶+导轨同等的设计,白色电视墙搭配深色沙发家居,营造出一种简雅高级的现代空间感。

▲客厅电视墙采取石材为背景,中间加入背光灯带,让空间显得层次而又现代优雅,布置上音响与花瓶,更是显得有艺术感。

▲沙发并没靠墙布置,深棕色皮沙发,搭配白色石材台面的茶几,还有黄色的休闲沙发椅与靠脚凳,在雅白的地砖基础下,把客厅布置成一个现代时尚而端庄大方的空间。

▲沙发后方是工作区,书桌与书架布置,从客厅望去满满的文艺与端庄气质。
书房

▲书房是半开放式的空间,设在客厅沙发后,在过道与书房之间装一扇玻璃推拉门,书房里布置双人书桌与钢琴,搭配两张蓝色椅子,墙面挂两幅黑色底+线条的装饰画,在雅白的地砖空间下,显得时尚端庄而优雅。
餐厅+厨房

▲餐厅与厨房采取开放式的格局,餐桌以中岛台代替,为主人打造了一个情调优雅的用餐与烹饪环境。

▲开放式的厨房,转身就是中岛台,尽管操作台不宽敞,但有中岛台作为辅助,也能拥有足够方便的操作位置。

▲中岛台上方天花以木饰面装饰,装一排吊灯,中岛台上摆上精致果盘餐具;右边是厨房空间,雅白地砖+浅灰色桑拿板天花,装上白色橱柜+嵌入式电器,整个餐厨空间显得时尚优雅而实用方便。

▲黑白配的吧椅组合,中岛台靠里侧还做了一个展示架,方便酒杯与装饰品的摆放,提升空间的档次感。
卧室

▲问题天花同样是无主灯设计,四周凸吊顶+中间吊平顶的筒灯组合,黑色房门与衣柜,黑白配的设计让空间显得端庄现代而高级。


▲夕阳下的海边,一家人漫步其间,两幅充满家的气质挂画,让卧室显得更加温馨惬意。

▲朴素的床单与床单,床尾布置斗柜与梳妆台,整个卧室空间布置功能丰富、收纳实用。
儿童房

▲儿童房在飘窗两侧分别设置书架与书桌,中间的窗帘是海洋主题,结合彩色风扇灯,让空间显得童趣而活泼。

▲书桌与床铺无缝衔接,床头柜摆上吉他,书桌上方的书架摆上书本、笔筒与婴儿时期的照片,也让儿童房充满回忆感。

▲床两侧靠墙,墙脚区域装上护墙板,侧边墙面挂三幅飞机图案的装饰画,也让儿童房显得独特自然。

▲床尾衣柜+书架+地球仪+极简挂钟+收纳的布置,小小的空间却有着无比实用的设计。
卫生间

▲卫生间雅白的地砖与墙面砖,搭配吊装的黑色洗手盆柜,台上盆上方的镜子加入光圈设计,让卫浴空间充满时尚现代的气质。
设计:袁林贵-在川设计,点评:设计馆