200㎡现代风,现代舒适的空间,鲜艳艺术的配色,效果时尚独特
北京东易日盛旗舰店
2023-07-26
现代风,以纯粹化繁为简,以简约低调的现代原木风格去点缀烘托雅致、温馨。
将高雅纯粹的设计理念化为大面积白色与木色的和谐搭配,木质的原始美与现代的时尚感完美结合,为居者带来舒适平和的感受。

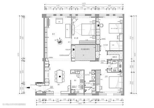
户型分析


- 入户靠墙做鞋帽柜、衣帽柜、穿衣镜和折叠换鞋凳,增加入户功能区。
- 厨房门洞整体向一侧移动,解决入户门对厨房门的问题。厨房做推拉门、U型橱柜,增加厨房收纳空间及操作区。
- 原过道处隔出独立空间做书房。书房靠客厅方向砌半墙,做留窗设计,靠窗打造书桌。
- 两个南向卧室做老人房和女儿房。老人房房门采用隐形门设计,不影响客厅空间的整体性。将女儿房一侧墙体整向内移动,压缩女儿房空间,做独立储物间,原主卫门改到过道方向。
- 次卫干湿区隔断墙体整体向湿区移动,增加干区面积,使干区有足够的空间放置洗衣机、烘干机和浴室柜。


入户即为玄关,依靠墙体定制鞋帽柜,安装穿衣镜和折叠换鞋凳,打造入户功能区,增加收纳空间,解决入户换鞋放置问题。柜体下方做悬空处理,放置常穿的鞋子。柜体中间做开放格,便于入户放置包包钥匙等随手物品,使用方便。玄关顶面做平顶搭配筒灯增加入户空间的照明。


客厅电视墙做整体装饰柜,采用幕布盒设计,节约空间避免打断空间延伸感。客厅吊顶采用回字形吊顶加石膏装饰线,搭配吊灯、筒灯、壁灯使空间拥有多层次灯光,满足不同时间不同场景的灯光需求



餐厅采用装饰石膏线搭配餐厅吊灯,简约大方,西厨功能区搭配线性灯条补充照明,来满足不同空间不同灯光的使用需求;餐厅整体以暖色系为主,搭配牛油果绿的餐边柜,在暖色系空间中起到点缀作用,丰富空间色彩层次。


厨房空间采用U型橱柜的设计,充分利用厨房空间,扩大了操作区域及收纳空间;水槽与灶台分布由外至内,操作时更便捷;厨房空间利用墙面结构做吊柜,增加厨房收纳空间,同时将洗碗机嵌入地柜中,增加空间柜体的整体感,避免空间凌乱,便于厨房的收纳及整理。


主卧作为主要休息区域,虽然是北向房间,但因为有大窗户,使得主卧空间依旧明亮,主卧室空间顶面造型简洁,线条流畅,顶面仍延续使用石膏装饰线,搭配主吊灯、床头吊灯。




主卫采用干湿分区的设计,使浴室柜、洗衣机、烘干机与湿气较重的淋浴房分开。主卫使用白色小块墙砖半墙铺贴,上半部分刷牛油果绿的乳胶漆,地面铺贴淡绿色地砖,使色彩搭配不单调,富有层次感。



书房采用极窄边框推拉门加地台设计,书房靠客厅方向砌半墙,做留窗设计,靠窗打造书桌,窗口正对客厅幕布既可作书房也可做观影房。