48万改造116㎡旧房,现代风全屋智能化豪宅,功能美观齐备!
广州金地新家
2023-07-26
房屋信息:
面积:116 旧房改造
风格:现代简约
造价:48万


装修对比图:
前:
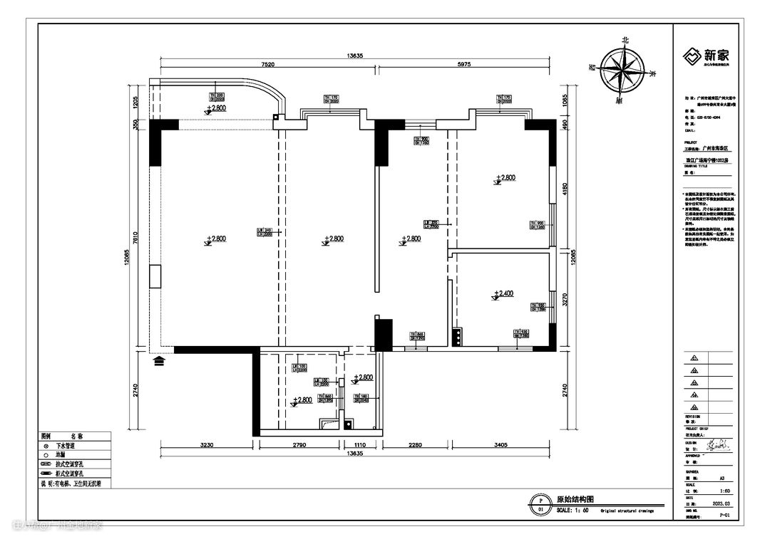
这套房子被原业主与另一套房子合并成大平层,后来又重新拆分转卖给了现在的屋主,因此缺少厨房功能区,需要重新布局。除此之外,屋主还希望屋子是现代风格,有更多的收纳空间和多个卧室空间。
后:
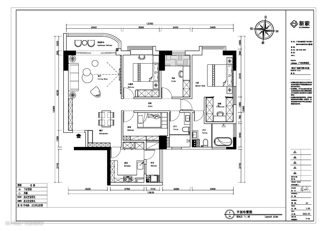
设计师将全屋重新布局,客餐厅空间被合理规划,还增加了三个房间,实用性更强。整屋采用现代简约风格,安装华为智能系统,简约不简单,功能性和美观度都大大提高。
屋主信息:
这家男主人事业有成,80后的他拥有了自己的公司,和妻子、女儿一家三口生活得十分幸福,羡煞旁人。平常夫妻俩都比较忙,于是请了一位阿姨照顾一家人的生活。
户型图改造思路:
1、由于原始户型只有一个大套间,为满足日常生活需要,设计师对全屋重新规划翻新,重新构建出儿童房、次卧、书房与过道空间;
2、由于缺少厨房,将餐厅旁的房间改为厨房,根据次卧的布局,改变生活阳台与厨房的门体位置,将厨房与餐厅相连,动线更合理;
3、将主卧中部的墙体拆除,缩小卫生间的空间,并按照屋主需求布局出衣帽间。
玄关:
全屋为现代简约风格,智能化设计贯穿屋子的每个角落。打开深色金属的智能门,便利生活就此开始。
进门后将鞋子放入玄关柜的下方悬空处,不方便换鞋时还能坐在柜上;柜体凹空区域可以挂放外套,施耐德的电箱镶嵌在柜子里,隐藏了箱体让空间更美观;其他部分是储物区,通顶的白色玄关柜简约大方,收纳空间也不小,精致的摆件与装饰画则增添了艺术感。




餐厅:
入户右侧是餐厅,四人位的餐桌椅温馨而有格调,餐桌由灰色的岩板与原木支架组合而成,搭配同样是木质的八角椅;配套的欧式餐具整齐有序地摆放在桌上,最后再由鲜花装点,营造出高级的就餐氛围。




餐边柜做半开放的设计,寻找藏与露的平衡。上方的多层开放收纳格灵活实用,轨道插座内嵌于柜壁,方便了小电器的使用;靠墙处有一个别致的设计,带有弧度的台面从柜中延展而出,形成可以置物的桌面,圆弧的设计同时避免了磕碰。
厨房:
厨房是U型布局,形成备菜-洗菜-切菜-烹饪-装盘的完整路径,且厨房空间不显拥挤,动线流畅。
色调也是简单的灰白搭配,深灰色的地柜+吊柜具有不小的收纳空间,操作台上也特意进行了收纳,可爱的卡通摆件专门用来放置小件用具。另一面墙则是大件厨电的所在地,烤箱和冰箱等电器全部镶嵌在定制柜里,与墙垛齐平,整齐划一。冰箱上还有许多可爱的冰箱贴装饰,透露出满满的生活气息。






生活阳台:
厨房之外还有一个小小的生活阳台,配置了洗衣伴侣和自动晾衣架,同时还有定制储物柜,洗晾晒的活动在这里都可以搞定啦!
客厅:
客厅空间十分的大气,双眼皮吊顶搭配精致的花朵形吸顶灯,设计感十足。
华为的全屋智能系统开关就安在客厅,操控着客餐厅的照明与通风系统。同时客厅里还有许多的智能家电,如风扇、沙发旁的蓝牙音箱与茶水柜等。
深棕色沙发很有质感,钢琴键的造型十分饱满,细腻的头层牛皮+高密度高回弹的海绵让沙发柔软亲肤、坐感充实,摆在客厅就能带来视觉上的享受。白色沙发墙与深色沙发相映衬,暖色的洗墙灯光为这个空间营造出氛围感。
电视背景墙做了弧形的悬浮造型,内嵌线性灯带,橘黄色的灯光显得格外温柔。一旁的木格栅装点着墙面,下方则是落地的电视柜,黑白灰的色彩搭配高级大方。






阳台:
从客厅就能望见辽阔的景色,推开这几扇透光性良好的玻璃推拉门就是阳台,半弧形的阳台空间做了开放式处理,角落安置了一个小小的木制吧台。
因为房子具有极优越的地理位置,阳台直面珠江江景,一眼可见海心桥,日落之后坐在吧台上,喝点小酒,可以慢慢体会繁华夜幕下烟火气。
过道:
过道的色调是简单的灰与白,大面积的白墙与灰色的门框、踢脚线组成这个纵深的空间。
灯光同样由相应的智能开关控制,一竖排的筒灯有序地列在天花板上,过道最特别的地方在于线性灯带的布置,无边框的led灯带将过道切割成一个个异形空间,极具科技感,像误入未来世界。



儿童房:
儿童房采用无主灯设计,空调出风口隐藏在吊顶中。床头做了双色拼接的装饰面,与一旁的储物柜造型相似,显得格外和谐。
一字型的嵌墙式书桌横在窗前,大扇的落地窗外是辽阔的江景,在学习之余极目远眺,放松疲累的眼睛,心情也会舒朗起来。
因为房间是给女孩准备的,房间里布置了一些可爱的元素,床头靠背做了软包的猫耳造型,门口的玄关转角柜上还放着许多萌萌的小玩偶和漂亮的摆件。





书房:
书桌与定制储物柜一体,上方是书柜,专门做了玻璃柜门保护书本,寻找书籍也更方便,屋主的一些手办也放在这里;书桌同时也是抽屉柜,安置了一整排的抽屉用来储放物品。
书房也作多功能房使用,定制柜结合榻榻米的设计让房间的功能更多样。日常时,屋主在榻榻米上放置床上桌和坐垫,可以喝茶或商事,把小桌移开又能当作小床休息。榻榻米同时也是储物柜,可以进行大物件的储存。



卫生间:
智能设计也布局到了卫生间,门口是集成开关,卫生间的照明通风通通在这里设置。
用推拉玻璃门做了干湿分离,淋浴间外的墙上是电热毛巾架,收纳的同时也能够杀菌消毒。
卫生间干区做了台盆一体的洗手台,美观易清理,与下方的柜子构成有层次的结构;选用半圆形的镜子颜值也很高哦!



主卧:
主卧的空间更大,色彩搭配也更丰富。床铺是橙红与灰蓝色,床头还有浅色的护墙板,窗帘则是浅绿,活泼的色彩跳跃于主卧之间,让房间更具活力。
衣帽间是双一字的布局,男女主人的衣物分开收纳在两侧,靠墙做了一个一体式的梳妆台,也是储物抽屉,抽屉以上的柜体设计成开放收纳格,收纳功能更强大了!





主卫:
同样是干湿分离设计,主卫增加了更多细节的布置。屋主日常有泡澡的习惯,因此特意要求设计师在淋浴间安装浴缸,还贴了防滑地砖,生活更惬意。
在马桶一侧做壁龛设计,多层收纳,可放置更多物品,洗手台则更加简约,具有线条感。


