128平米㎡极简中古风打造,重点在软装!!!
温州东易日盛
2023-09-06
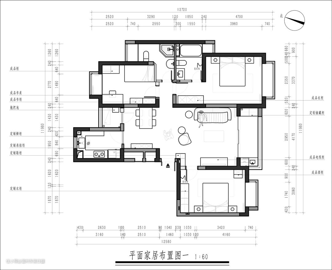
户型分析
从生活习惯的角度出发,业主对房子的了解相对较多也比较有自己的想法,过程中不断磨合、沟通、改进,更多的想法灵感慢慢涌现.......

设计思路
本案的硬装部分已当下流行的奶白极简风格为基础,而中古风的体现主要在于软装和家具的选择,尤其是家具的配色以现代的黑白和古朴的红木为主,兼具现代感的干练和传统文化的厚重质朴。
客厅
沙发后采用柔和而舒适的灯光,来营造温馨灵动的放松氛围;餐厅上方吊灯来创造层次感和视觉重量,多样别致的设计风格与整个室内设计相呼应。整个客餐区采用小弧形吊顶,搭配整条灯带,简约又不乏设计感



卧室
卧室是一个相对私密的空间,柔和与舒适是卧室设计中不可忽视的关键。是一个能够让我们放松心情、舒适自在的地方。卧室的软装选择更偏现代感,同时搭配绿植、现代感的床和灯具;柔软的地毯、抱枕,增加卧室的美感和温度。

餐厅
客厅的落地窗外,高楼林立。眺望远处,能把室外的景色尽收眼底,引人深思;进门口鞋柜的悬浮处理,避免了经常弯腰,踩椅子拿东西的不便,中间留空的悬浮餐边柜,别致少见,有别于当下流行的全屋定制柜,可以放一些随手的小东西

