120㎡极简侘寂风一人居,禅意生活,回归本我
楚邦上易宁波旗舰店
2023-09-17
Area / 面积:120㎡
Style / 风格:极简侘寂风
Type / 户型:三室两厅
Design / 设计师:李爱珍
Address / 地址:水景城领翔阁

1.设计说明DESIGN
“以素为美,以简为美;以寂为美,以真为美”本案屋主是一位95后女孩,喜爱新奇的事物,喜爱收集,对于生活美学,有着自己独到的见解,喜欢侘寂风的质朴美感,更主张less is more的极简态度。
在初次跟设计师沟通时,双方对于设计理解、生活理解,出奇一致。在相互地欣赏与信赖中,完成了这套极简素雅,精致隐逸的生活空间。

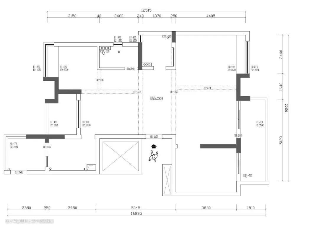
· 户型分析:户型方正,采光较好;卫生间面积小,放不下浴缸
· 户型改造:减少主卧的面积来增加主卫的空间,让主卫有足够放下浴缸的位置
02.客厅

整屋大面积使用艺术涂料,一体成型,营造自然质朴的空间感受。

红色皮质沙发营造客厅视觉中心点、打造独特的轻侘寂美学。

客厅中央的极简侘寂风圆形大理石茶几组合搭配花灰色地毯,独特素雅,极富艺术感。
02.餐厅

整个餐厅的风格依旧以禅意侘寂风格进行设计,简洁而不简单。

大理石餐桌搭木质餐椅,让现代艺术与自然纯朴的质感完美融合。

窗边为屋主打造一个安逸的小吧台,填补空间的同时也多了一处居心之地~
03厨房

厨房采用原木的橱柜搭配纯白色大理石台面,为整体空间增添了朴素淡雅的气息。

吊柜设计满足屋主日常收纳所需,也将原本外露的管道很好地藏起来,让整个厨房空间看起来整体十分干净整洁。

厨房,简简单单就好。
04.卧室

卧室的色系则带来更为慵懒的气息,木饰面、棉质床品、艺术涂料等贴近自然的材质与色彩。让人感受舒适的睡眠环境。

中古的梳妆台体现着低调的质感,彰显出屋主独有的审美趣味,以及时间带给这个家沉淀感。

次卧作为客卧使用,延续了主卧的设计风格,通过选择接近统一的材料和颜色,使整个空间呈现出统一的氛围。
05.卫生间

屋主一开始就希望主卫能有浴缸,因此减少主卧的面积来增加主卫的空间,让主卫有足够放下浴缸的位置,尽享沐浴时光,清爽又惬意。

洗手台盆精简利落,消弭卫生死角,整体上呈现出一个功能齐全、明亮清爽的主卫空间。
有装修需求的业主朋友们,可以评论区留言你们喜欢的风格哦~