现代简约风格的主要设计理念是简洁、舒适
郑州金螳螂家
2023-09-20
业主需求

在满足功能需求的前提下,将空间、人及物品进行合理精致的组合,用最洗练的笔画,描绘出最简洁素雅的空间效果
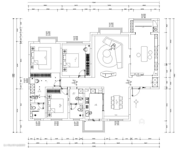
平面设计图及设计说明

现代简约风格的主要设计理念是简洁、舒适,没有多余的装饰,线条简单,室内空间大方。

客厅效果图及设计说明

通过家具、陈列品、地面材料甚至光线变化来表现不同功能空间划分,而且这种划分表现出灵活性、兼容性和流动性。


餐厅效果图及设计说明

空间背景主要由装饰材料与色彩设计两部分组成。在材料选择上不再多少于石材、木材等天然材料,而是把范围多少到涂料、玻璃、金属等材料,并且夸张材料之间多少关系,甚至将多少管道、结构构件都暴露出来,力求表现出一种完全区别都是多少格高度技术多少空间气氛。

卧室效果图及设计说明

通过强调原色之间对比协调来追求一种具有普遍意义永多少术主题。装饰画、织物选择对于整个色彩效多少起到点题的作用

