打造你的温馨小窝,100㎡简约奶油风
东易日盛北京旗舰店
2023-10-10
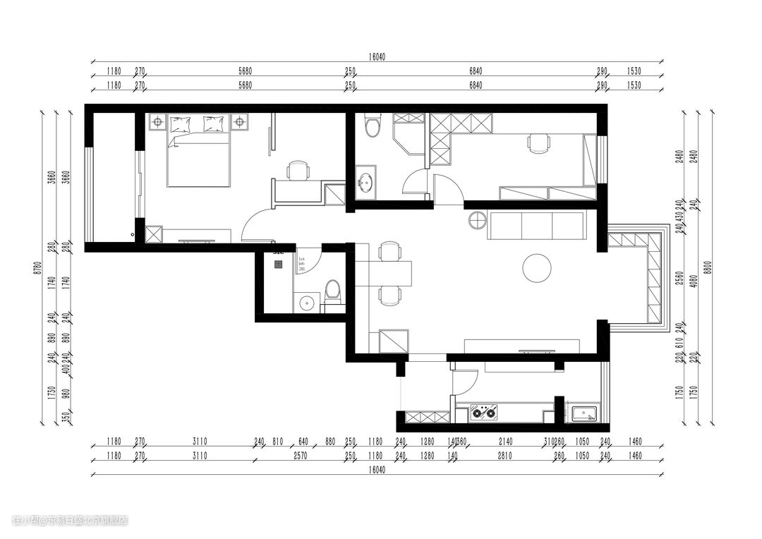
案例面积:100㎡
户型:两室两厅
风格:简约奶油风


进门有独立的玄关空间,侧面做鞋帽柜增加储物功能;厨房整体选用墨绿色橱柜更加凸显质感;客厅电视背景做圆弧形设计,增加灯带功能,餐厅设置水吧区,增加休闲功能会客更便捷,其余整体墙面选用浅绿色,垭口做拱形垭口设计。








东易日盛北京旗舰店
2023-10-10
案例面积:100㎡
户型:两室两厅
风格:简约奶油风


进门有独立的玄关空间,侧面做鞋帽柜增加储物功能;厨房整体选用墨绿色橱柜更加凸显质感;客厅电视背景做圆弧形设计,增加灯带功能,餐厅设置水吧区,增加休闲功能会客更便捷,其余整体墙面选用浅绿色,垭口做拱形垭口设计。







