留白设计,打造简约现代风格
郑州金螳螂家
2023-10-11
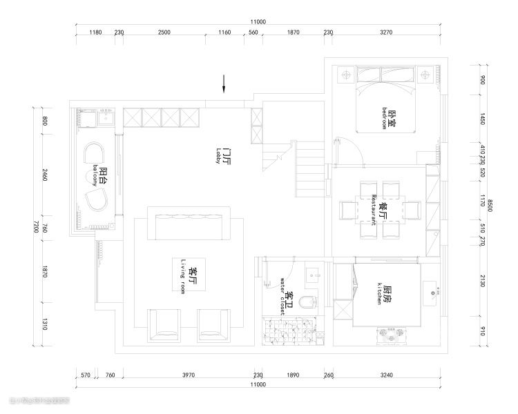
业主需求&原始结构图

此案户型公整通透,有许多留白的地方,设计师可以有更多的尺寸去构建每一个空间。

平面设计图及设计说明

在设计上强调功能性,结构和形式的完整,更追求材料、技术、空间的表现深度与精确,运用最少的设计语言,表达出最深的设计内涵。设计整体定调为黑白灰为空间的主色调,通过最简单的元素,打造舒适、静好、内敛的居住空间,塑造优雅的同时又具有现代设计感。

客厅效果图及设计说明

现代简约风虽然没有复杂的造型,也没有华丽的装饰,但是非常适合家庭居住,很讲究实用性,设计师利用白灰的清爽利落,结合低敛原木元素,搭配天然石材造型,营造艺术氛围。简约并不是缺乏设计要素,它是一种更高层次的创作境界,在自然光的淹没下,空间呈现出了一个舒适的色调。




餐厅效果图及设计说明

现代简约风格以简洁的视觉效果营造出时尚前卫的感觉,满足人们对生活品位和身体健康的需求,体现出合理节约的科学消费观,反映出当代社会摆脱繁琐、复杂、追求简单和自然的心理。

卧室效果图及设计说明

卧室汲取采光充足的优点,氛围力求开阔明亮、简单利落;透过细微的处理,在“少“的空间中仍能感受到细节的“多,呈现的是简约静谧的空间氛围。

