从设计师视角看,如何打造宜居的极简黑白灰家装
西安今朝装饰高新店
2023-12-10
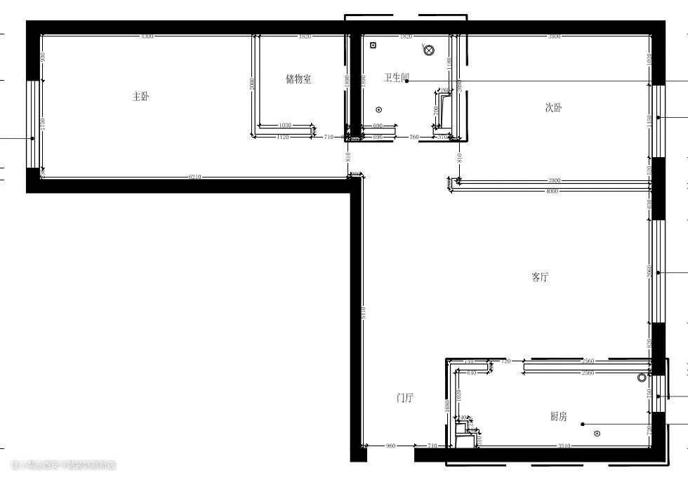
面对老旧的风格与格局,我们的设计师主要明确了以下三点改造:
由于工作关系,家装设计师每天都要面对很多繁琐的事。选择一个极简黑白灰的家装风格,回到家可以让白天发生的一切暂时“冷却”下来。
其次是储物空间要大。对于那些衣服、鞋子、包包较多的家庭,这套案例也非常有借鉴意义。
最后要扩大卫生间面积,做干湿分区。一来可以让卫生间功能分区明显,使用起来更方便;二来可以做到防滑、保持环境干燥等。

改造前户型图

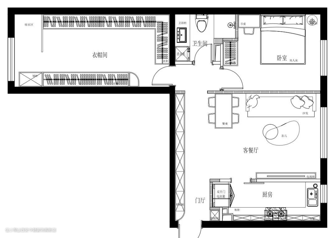
改造后户型图
大面积留白的极简风
一点都不简单
改造前,门厅区域过道较宽,面积被严重浪费。改造后,门厅左侧设计一整排顶天立地柜,右侧增加鞋帽柜,同时改建厨房墙体(向外),扩充厨房面积。

改造完成后,储物空间增加、厨房面积增大,同时还拉长了门厅区域的纵深感,营造出了一个显而易见的玄关功能区。

厨房扩充后,刚好嵌入双开门大冰箱,让原本被浪费的门厅空间得到利用。

改造前厨房


全屋色彩以黑白灰为主,低调、简洁的色彩架构让空间更显大、显亮。对小户型来说十分友好。客餐厅软装中加入了绿色等亮色作为跳色搭配,破除整体上黑白灰空间的单调。

改造前客餐厅

全屋使用浅灰调墙面漆,相较于纯白色,更有质感且更耐脏。通铺灰色哑光瓷砖,大气舒适,高级感满满。尤其搭配柔和的灯光之后,给人以温馨、静谧的感受。

沙发背景墙未做过多修饰,只是简单地加入了黑色木格栅,运用线条感来打造一个有格调的休闲空间。

大平顶做无主灯设计,简直就是腔调十足的极简主义,造型简单但线条感突出的“极简吸顶灯+磁吸轨道灯”十分夺人眼球。

改造前客餐厅

无论是电视背景墙,或是其他角落,在这个空间内都保留了大面积的留白,看似非常简单。但实质上,极简风留白对于工艺的要求非常高。首先全屋墙面冲筋打点找平是必须要做的,只有墙面平整度够好,大白表面才不会凸凹不平。

极简风一门到顶的设计,要想做出这种效果,不能有上下封板和收口条,所以要求天花、墙面、地面都要足够平整。

此外,极简风追求用线条进行空间的延展,那些看似简单的线条其实对工艺标准要求极高,比如,本案例中极窄踢脚线的安装,因为线条都很窄,不易做直,所以对施工工人的手艺要求很高。

牺牲卧室也要开发的功能
确实很实用
改造卫生间与主卧之间的墙体,增大卫生间面积,减小卧室面积。
扩大卫生间面积,做干湿分区。一来可以让卫生间功能分区明显,使用起来更方便;二来可以做到防滑、保持环境干燥等。

改造前卫生间

一体式台盆一抹就干净,没有卫生死角,不易藏污纳垢,颜值也在线。卫生间扩大后,不仅实现了干湿分离,洗衣机也可以轻松嵌入。

地砖上墙,上下一致,风格统一。这里还采用撞色设计,塑造了一种沉静低调的氛围感。
在卧室内,用一门到顶衣柜找平空间。(因扩大卫生间面积,造成卧室空间不规整)

改造前卧室

卧室背景墙,在大面积留白中嵌入线性木饰面与装饰条,也强调了极简风所追求的用线条进行空间的延展,简约又美观。

悬浮顶嵌入灯带做床头洗墙灯,顶面设计嵌入式射灯做基础照明,床头安装吊线灯做氛围照明。

这里的百叶窗,可以通过调整帘片角度来控制射入光线的多少,也是调节室内氛围感的一把好手。
安装悬浮床头柜,地面打扫起来更方便,用起来也不需要下蹲弯腰。

考虑到目前是独居,而且衣服较多,所以我们的设计师直接把原主卧改造成开放式衣帽间,简约、大方的一门到顶设计,既能够储存更多的衣物,而且拿取也非常方便。每日出门穿搭,一目了然。

衣帽间改造前

设计一个好看的小矮柜,用来收纳首饰等小物件,还可以提升家居空间的格调。

业主寄语:
装修的过程也是帮业主慢慢寻找自己生活方式的过程,细致到每一款产品的质感与色彩,所有细节都值得我们去探讨。尤其是极简风,要注意的点远比你想象的要多得多。