115方现代简约风格,水泥灰+原木的设计,彰显自然温馨的生活!
福州中博美家
2023-12-28

这是115平的现代简约风格装修案例,整体空间以大面积水泥灰和白色为基础,利用原木材质的柜体和餐桌设计,打造沉稳而内敛的空间气质。
#01 INFORMATION
房屋信息
装修面积 / 115㎡
设计风格 / 现代简约
设计师 / 曾珍
设计施工单位 / 中博装饰
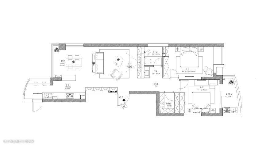
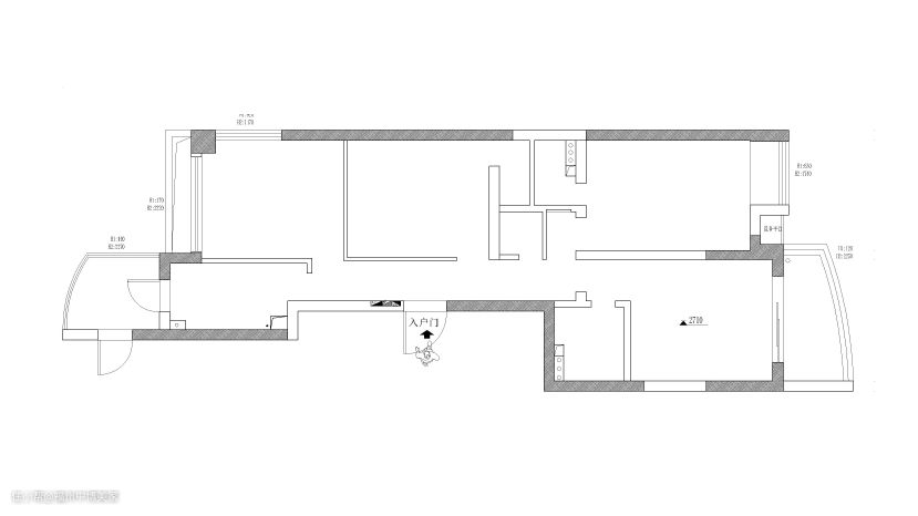
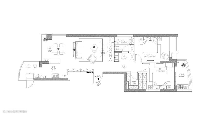
- 户型图 -

- 设计图 -

设计需求:本案的业主是一位年轻的女教师,希望整体的家居空间尽量简洁大方,还要有足够的收纳空间。
前后对比:1、整个空间设计上,实现了动静分离,干湿分离。开放式厨房的设计也增强各空间之间的互动性。2、设计师利用水泥灰与原木的碰撞,在没有太多冗余的装饰设计上,布置了简约舒适的家具,让充满惬意轻松的家居氛围展现出来。3、没有设计太多的房间,反而把空间更多的留给了起居室和储物间,让生活更加舒展。
#02 LIVING ROOM
- 客 厅 -

客厅一侧利用水泥基+木饰面拼接而成的背景墙,简约干净,质感十足。另一侧则是通顶的玄关柜设计,胡桃木+白色柜门相结合简约实用,收纳空间充足;侧面还预留位置打造挂衣区,底部预留十公分空间,方便进出门换鞋。

电视背景也是用满墙的胡桃木色柜体装饰着,并加以开放格进行点缀,简约大方的同时也能轻松存储物件。


黑色的布艺沙发与卡其色的抱枕组合,有种错落的感觉,为空间带来柔和的气息,再加上黑色的简约茶几,让整体空间更显舒适、惬意。
#03 DINING ROOM
- 餐 厅 -


餐厅采用了木质的餐桌椅,顶上设计了金属风的长形吊灯,再加上旁边是一整面的落地窗,当阳光照射进来,能够让就餐氛围充满仪式感。
餐桌一旁还摆放一张沙滩椅和小圆桌, 躺在椅子上晒晒太阳,看看电视,让生活多姿多彩。


餐厅与厨房位置利用大理石吧台隔开来,不仅可以当成是厨房的扩充空间,也可以把它当成书房、餐厅来用,一举两得。
#04 KITCHEN
- 厨 房 -

一字型的半开放式厨房,将储藏、备餐、烹饪很好的安排在一起;白色的地柜和吊柜充分利用了空间,收纳美观两不误。
#05 BEDROOM
- 主 卧 -


卧室背景墙是水泥灰+原木板的设计,前面布置一双灰色系的双人大床,使得整个空间更加沉稳大气。
飘窗虽然不大,但是物尽其用,摆上卡其色垫子和抱枕,为主人打造休闲空间,闲暇之余在此看书看风景,美哉!


卧室一侧打造窄边框门与高柜的衣柜设计,让收纳空间更为强大;白色面板+黑色线条勾勒出极简干净的气氛。

将洗手池外移,利用长虹玻璃屏风与过道隔开,里面则保留了马桶和淋浴区,实现干湿分离设计,同样也提高了卫生间的利用率。

卫生间整体以灰色白系的墙砖和地砖打造,搭配原木柜子与大理石洗手台,整体风格更强烈。