【新作首发】180㎡现代轻奢,全屋隐藏灯带设计,效果太惊艳!
齐妙E家软装家居中心
2024-01-08
装修小区 / 顺发旺角城
装修面积 / 180㎡
设计风格 / 现代轻奢
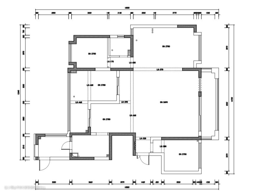
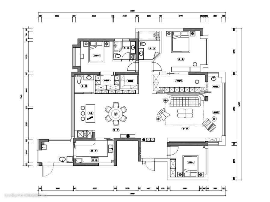
- 户型图 -

- 设计图 -

- 关于设计师 -
设计需求 /
本案业主是一对90后夫妻,有个3岁的可爱儿子。由于女主人是一名房产运营,因此在房子的装修上有着自己的想法,希望在美观的基础上尽量做到简单大方,不做过多的条条框框以及繁复的点缀。
整个空间以简约舒适为主,不管是硬装还是软装均采用治愈系的米白色系搭配,简洁大气,让生活显得更加轻松自然而有趣。
户型分析 /
①原始户型缺乏玄关;
②餐厅位置狭小,客餐厅采光不足;
③室内功能性不足,没有单独的衣帽间。
户型改造 /
①有独立玄关空间的布局;
②拆除餐厅原有墙体,扩大餐厅面积,室内自然光感提升;
③增加储物间以及衣帽间,满足日常的功能性需求。
➝
02
LIVING ROOM
客厅

# 入户玄关采用悬浮设计+镂空效果,让空间释放出来,还能增加储物空间。靠墙位置摆放矮凳沙发椅,方便进出门换鞋。


# 客厅空间宽敞而舒适,无主灯的设计,筒灯和隐藏灯带相互配合,对光源进行分区、组合,柔和的灯光点缀着整个房间。


# 沙发背景墙上用浅白色木饰面打造,结合格栅元素,让整个空间更具有层次感和温馨感。米白色的布艺沙发,呈现曲线展示,沙发角落摆上一株长枝绿植,简洁素雅的空间,显得活力满满。




# 电视墙在白色乳胶漆的基础上做了悬浮造型,并且还嵌入了灯带,使得整体效果更加有层次感。嵌入式的电视柜打造整洁美观的空间,延伸的一侧还可以放置有趣的摆件,嵌入式的格子设计还能衬托出摆件配饰的造型感。


# 将阳台纳入客厅设计,不仅让客厅空间更大,也让光线更充足。同时阳台墙壁还做成展示的壁龛设计,布置书本或相册,高级感和氛围感都有了。
➝
03
DINING ROOM
餐厅



# 黑色圆形桌子呼应着天花板上圆形的吊顶,再加上一盏金属风的球形吊顶吊灯,让视觉达到的平衡和美感,同时轻松打造出浪漫的用餐氛围。



# 餐厅一侧定制餐边柜,以封闭式柜子+开放式格子+玻璃柜形式展示,一些零食物品可以放在柜子里面,好看的餐具和美酒再左侧的玻璃柜展示展示,中间的格子布置上艺术品,达到美观与实用效果兼得。
➝
04
KITCHEN
厨房


# 厨房通铺浅白色的墙砖和地砖,打造干净简洁的烹饪空间。上白下黑的柜子带来强烈的视觉冲击感,营造现代、时尚的氛围;嵌入式的家电设计让整个空间看上去整体感更强,有效提高空间利用率
➝
05
BEDROOM
卧室


# 主卧在木质地板与大白墙的结合下,让整个房间有着明亮和清爽的感觉,营造出温暖和谐的氛围。床头背景用木饰面打造,在大白墙衬托下,拥有强烈的空间层次感。两侧的白色圆形金属吊灯结合隐藏灯带设计,简洁而美观,同时也为卧室提供了照明需求。

# 到顶衣柜+梳妆台的一体设计,不仅能有效利用空间,还能让空间更具整体性。同时也让女主人在选衣搭配和梳妆打扮之间的动线更短,让生活更便利。
➝
06
SANITARY WARE
卫浴

# 用黑框玻璃门隔出独立的淋浴区,干湿分离的效果非常好。马桶区、洗漱区使用了浅白色墙地砖,淋浴区则是黄色系的砖,带来不一样的视觉效果。