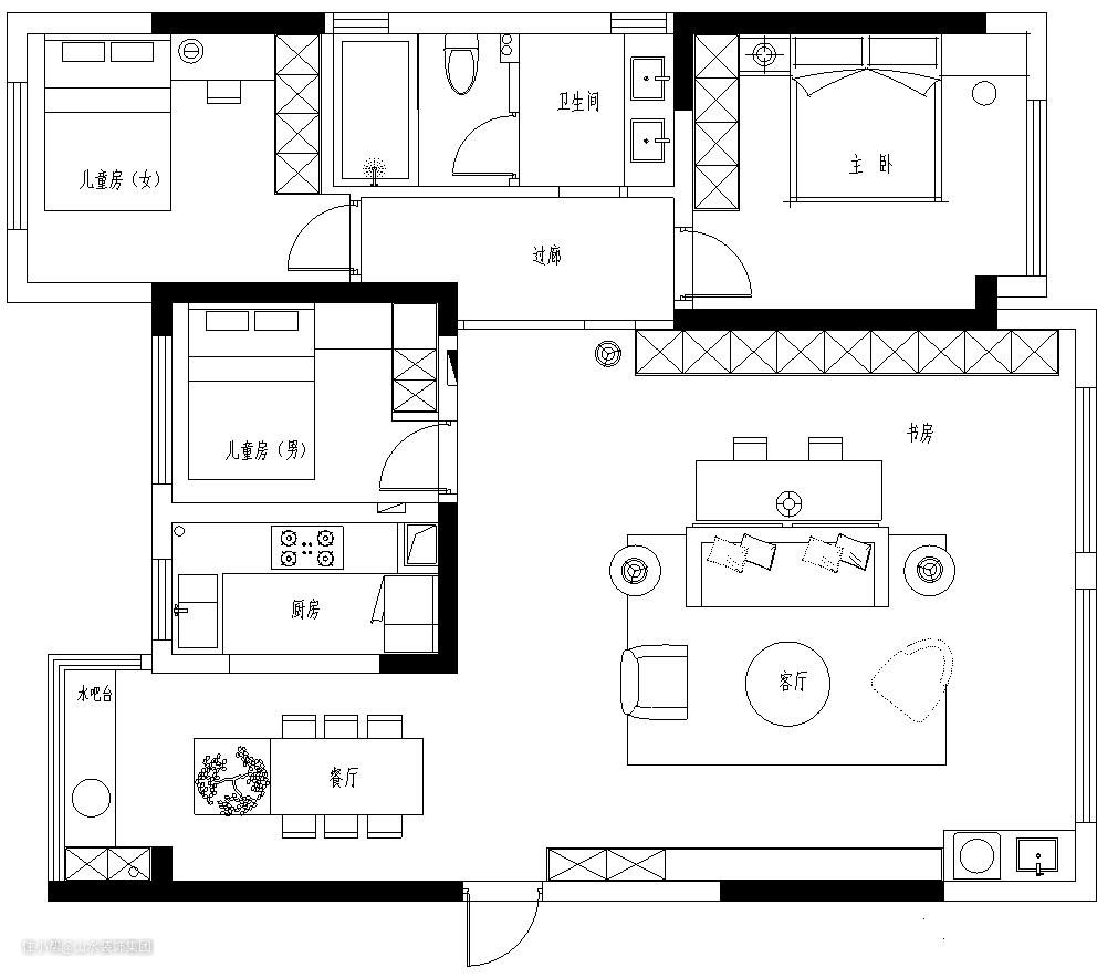
大横厅开间7m,客厅书房一体化设计
山水装饰集团
2024-01-10
项目地址:雍龙府
面积:140㎡
户型:平层
风格:现代
设计师:李芹

黑白灰的经典搭配,简约却不落俗。今天分享的是一套总面积140㎡的三室两厅户型,业主选择了现代简约风进行装修设计,经典配色与开放式布局,大横厅有格调显品质。
客厅

将阳台扩充进来,利用灰色地砖通铺,提高利用率,也增强了空间感,采光和布局上都得到了优化。客厅开间大概在7m左右,属于横厅户型。为避免浪费,我们选择将沙发后方的空间改造成开放式书房,实现一厅多用。

首先来看客厅的整体布局,以简洁为主。电视背景墙与阳台侧墙完美融合,以岩板装饰主体部分,两侧分别定制了储物柜,顶天立地式设计规避了卫生死角,收纳功能强大。下方的悬浮式置物台取代了传统的电视柜,视觉呈现上更显简洁大气,而且节省了不少空间。

以玻璃屏风作为分割介质,将客厅与书房区分开来,隔而不断,功能上互不干扰,也保证了空间的敞亮通透。弧形的沙发线条流畅,浅米色看起来更显温馨舒适。分散的点状光源彼此搭配,以无主灯设计的方式满足多样化照明需求,照明更显人性化。
餐厅

北阳台与餐厅打通,门洞处利用黑色饰面板铺装,与背景墙的局部饰面板保持一致,增强空间整体感。大理石中岛台与实木餐桌做穿插设计,彼此错落有致,层次感更为丰富。

利用扩充进来的北阳台定制了餐边柜,并加入水吧台、水槽等,满足收纳需求的同时,还能充当西厨使用,同时兼顾着休闲之用,使用功能不设限,生活更方便。
卧室

主卧室利用饰面板对背景墙进行了上下分割,增加隐形灯带丰富层次,让墙面不至于太过单调。受限于空间,舍弃了传统的床头柜,改用悬浮式设计,梳妆台与置物台分别设置在床的两侧,造型简单大气,节省了不少空间。

儿童房多了些粉色调,格栅板与乳胶漆对背景墙做了左右分割,并增加兔子头的灯带修饰,活泼可爱。儿童床靠墙,床头预留出书桌的区域,并安装了双层置物架,实现了一房多用。
经典的现代风格装修设计,开放式的布局实现了一厅多用,功能上的不设限也让生活充满无限可能,开启一家四口的幸福生活。