高级感UPUP!轻奢风装修必看!
昆明东易日盛
2024-02-15
尊敬的业主朋友们,大家好!🌟 轻奢风格家装设计,是一种精致、简约而不失高级感的装修风格。它以简洁的线条、大气的色彩搭配和精致的家居品,营造出舒适、优雅的居住环境。这种风格既适合现代都市人追求时尚与品质的需求,又能满足他们对生活美学的追求。
案例赏析
- Case Analysis-
—————————————————————————————————
#01
色彩搭配
Color matching

▲餐厅 © DYRS

▲酒吧区 © DYRS
色彩搭配是轻奢风格家装设计的关键。莫兰迪配色以其温和、低调的美感,为家居空间增添了一丝柔情。沙发选择灰白蓝色调,不仅简约大气,还能为客厅增添清新感。地毯选择黑白灰菱形格子,质感十足,为家居空间增添一份时尚感。卡其水晶吊灯、棕蓝配色质感餐椅以及粉灰配色长款餐桌,每一个细节都经过精心挑选,彰显出轻奢风格的精致与品质。
#02
细节处理
Detail handling


▲客厅 © DYRS
细节处理是轻奢风格的灵魂。极简的家居线条,流畅自然,让整个空间更加开阔、通透。中性色调下加入青春跳色,为家居空间注入活力。无论是窗帘的褶皱、墙上的装饰画还是餐桌上的餐具,每一个细节都经过精心设计,为居住者带来舒适与愉悦的体验。
#03
装饰元素
Decorative elements

▲客厅电视背景 © DYRS
在轻奢风格中,绿植是不可或缺的元素。选择一些高品质的植物可以增加空间的生机与活力。在色彩搭配上,轻奢风格以黑白灰为主旋律,营造出高贵、典雅的氛围。同时,可以适当加入金色、米白色等暖色调,让空间更加温馨、舒适。
#04
空间布局
Spatial layout

▲酒吧区 © DYRS
在轻奢风格的装修设计中,空间布局也非常重要。客餐厅同空间设计,让空间更加开阔、通透。同时,隔断出六人座高品质品酒区,既增加了实用性,又展现了品味与格调。

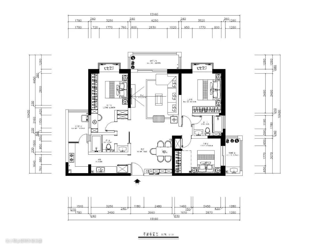
平面赏析


(平面布置图)
项目地址:春风十里 / 项目面积:145㎡
项目户型:平层 / 设计风格:轻奢风格
设计主创:杨春明