300平现代轻奢装修,石材木饰面材质
郑州金螳螂家
2024-02-24
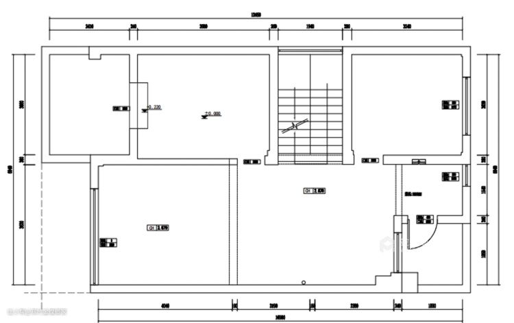
业主需求&原始结构图
业主偏好的现代轻奢装修风格 喜欢石材和木饰面材质;业主想要4个房间 两个书房和老人单独活动的空间。



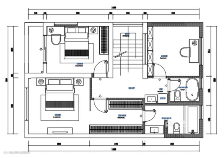
平面设计图及设计说明

本案以灰色为主色调,为整个家铺垫一层优雅的基调,又搭配金色减去灰色带来的沉重感,使得氛围更为轻快,整体设计以软装搭配为主,勾勒出精致与轻奢的质感。




客厅效果图及设计说明

客厅电视墙运用了仿鱼肚白岩板,沙发墙使用了木饰面和皮质硬包材质,用材质与配色把现场轻奢风发挥的淋漓尽致。

餐厅效果图及设计说明

餐厅部分设计师选用的吊灯+专业射灯,提供不同层次的照明需要,用餐时间都变得美妙起来。

卧室效果图及设计说明






书房




厨房



卫生间



玄关


走廊

