95后小夫妻的超个性新家,95㎡露营风,太有呼吸感了!
千达成装饰旗舰店
2024-03-12

当95后年轻人逐渐成为买房主力,随之而来的装修需求也更加开放多元~
今天这套案例,就是95后小夫妻的新房装修。他们希望可以将95㎡的三室两厅打造成露营风格调的兴趣乐园,满足他们喜欢阅读、料理、探索自然的生活习惯。

于是在布局上,设计师大胆去客厅化,让开放式书房和社交式会谈区成为中心主体;


同时将三房空间打造成主卧+儿童房+健身房,兼顾实用和爱好,让宅家时光更加充实有意义!
房屋信息
户型:三室两卫
面积:95㎡

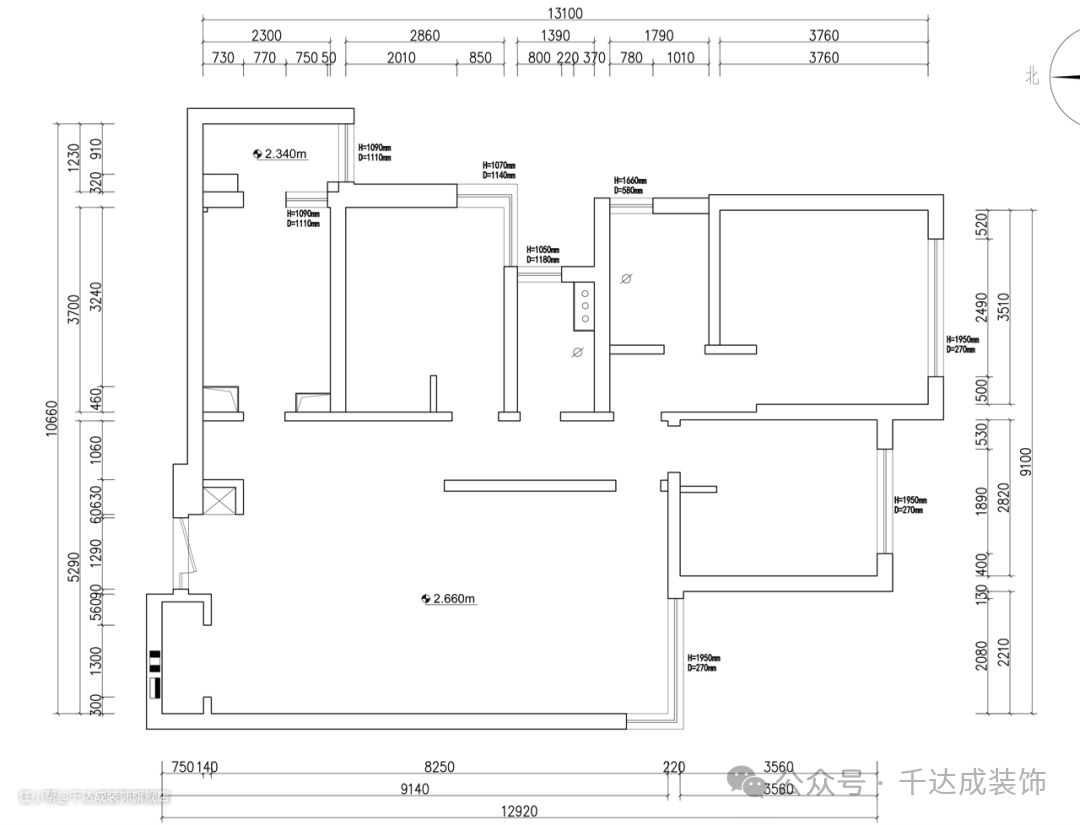
原始结构图△

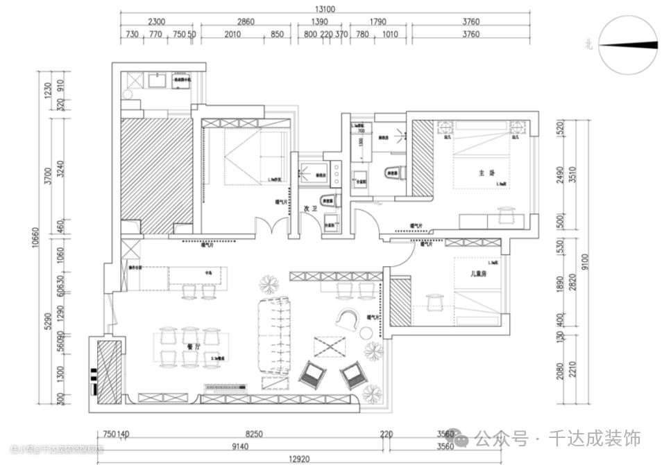
平面布局图△
设计亮点
1.电视墙搭配传统,做开放式书架+遮挡移门设计,电视嵌入中央,不使用时隐藏在移门后方;
2.厨房、健身房都做了铁艺+长虹玻璃的造型门,增加悠闲的灵动感。
Livingroom 客厅

客厅最大的特色,是将电视墙打造成开放式书架,中部嵌入电视,并用移门防尘。
没有观影需求时电视就隐藏在移门后方,呈现出清雅的“家庭图书馆”印象~

与之相对的,客厅另一端定制悬空书桌+吊柜,作为夫妻二人的休闲办公区。
这样的布局让整个公区最大化地服务于夫妻二人的兴趣和工作,不仅缩短了动线,还别具特色。

客厅中央是用露营风单椅+模块沙发围合出的随性休闲区,小夫妻都是户外达人,便用这种方式将“露营氛围”搬回家~

换上木质的露营风支架桌椅,铺上一块米色复古地毯,家具的轻盈化既让室内显得不那么拥挤,又契合了全屋自然灵动的调性。

将阳台纳入室内,保留低矮地台,买来小型花架在此开启“花匠体验”,用一个角落的绿意盎然来装点空间。
Dining room 餐厅

沙发背后就是餐厅区域,因为进门无玄关,所以此处也是集合了猫舍、料理、便餐+陈列展示的一个多功能区。

客厅的书架一路延伸过来,有开放格、钢琴嵌入位和大体量储物柜,作为餐厅背景墙,丰富着空间层次。

温润的原木餐桌椅,配合三盏飞盘吊灯,构造出舒适的用餐环境。

Cookroom 厨房

厨房门做了铁艺+长虹玻璃的造型门,增加类似咖啡屋的休闲感~

内部是双II型布局,备餐、烹饪两不耽误,冰箱和蒸烤机也能有序嵌入。

橱柜选择了质感耐脏的胡桃木饰面,遵循上浅下深原则,简雅大方。
Bedroom 卧室

主卧以简洁为主,用木饰面做床头硬包,提供舒适怡然的清爽睡眠环境。

床尾放着同色系同材质的成品斗柜和衣架,并用一幅色块油画作为点缀。
Child room 儿童房

儿童房延续同样的简约设计思路,但是床尾定制了整面的开放格+柜体收纳,用来满足孩子未来成长中所需的大量空间。
Fitness room 健身房

说是健身房,但其实房间内结合了影音、游戏、瑜伽、健身等功能,把普通的客房功能最大化,让屋主宅家时也能生活的丰富多彩。

大块全身镜+软垫+开放格的配置,运动时方便又专业。

一旁的沙发床累了可供歇息,有人留宿时也可以充当客房的功能,更加灵活多样。