"人间值得"!790m²极简排屋,让你拥有质感大宅生活
都都装饰(温州瑞安)
2024-03-27
➝
01
INFORMATION
信息
装修小区 / 江南大院
装修面积 / 790㎡
设计风格 / 现代极简
设计师 / 韩栋梁
设计施工单位 / 浙江都都装饰有限公司
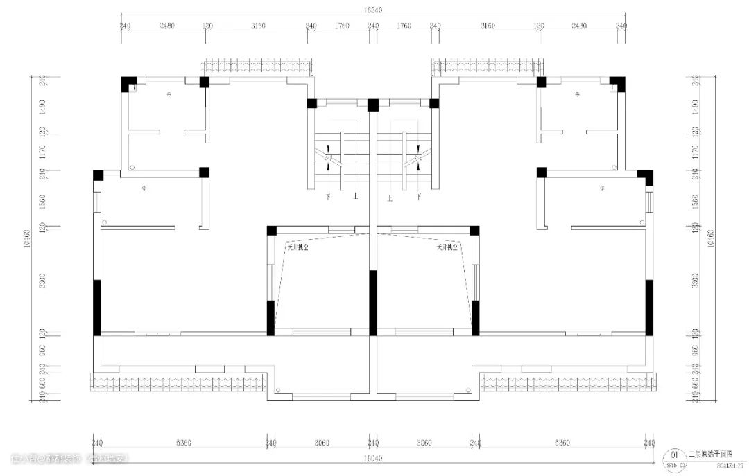
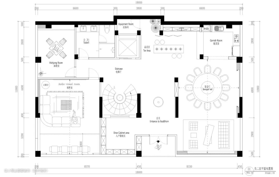
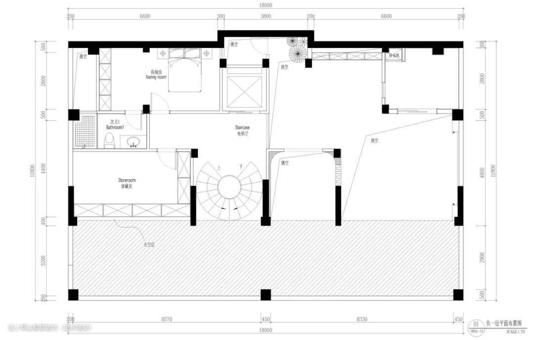
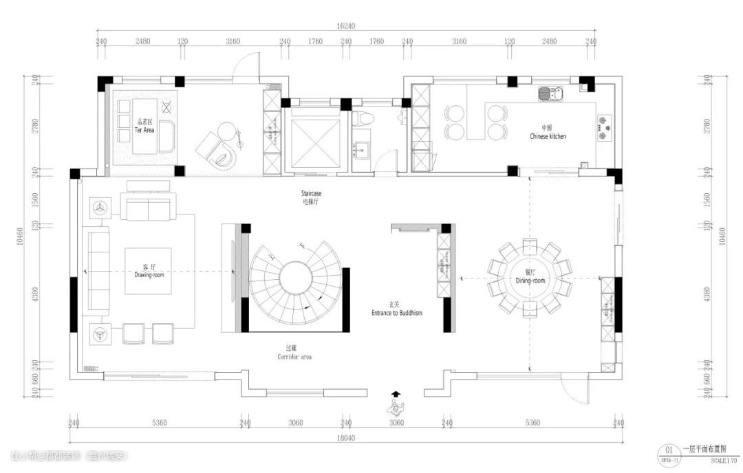
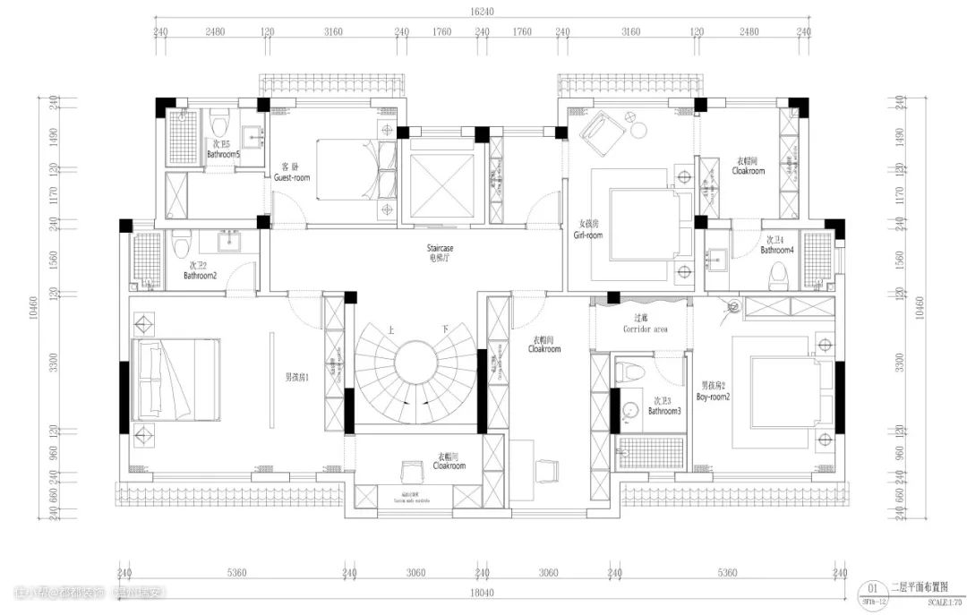
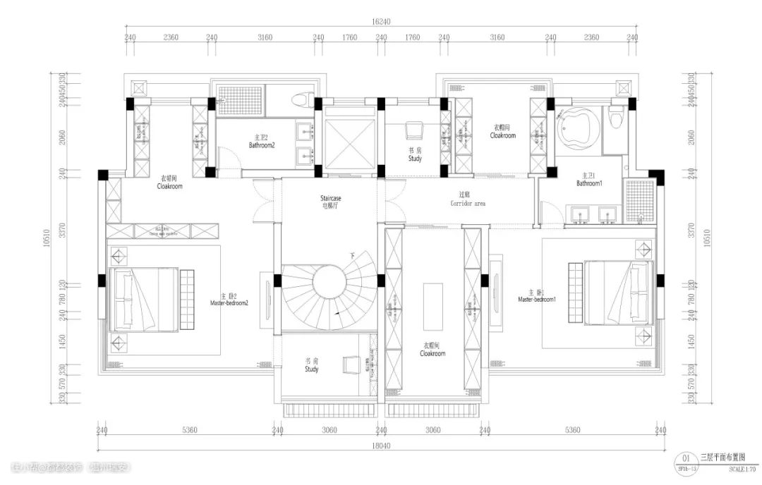
- 户型图 -

负二楼

负一楼

一楼

二楼

三楼
- 设计图 -





设计需求 /
本案为一套790㎡的带花园排屋,业主一家七口人,夫妻俩自主创业开厂,性格直爽、开朗,他们对于室内各空间的设计都有着很高的要求,希望内部空间简洁干净,需要有一个影音室,施工过程中因为房子较大,对于空间结构布局进行了多次讨论改动,最终达成了一致,保证了落地效果。
户型分析 /
①因为是两套排屋打通,怎么融合成一个户型是难点,原始空间零碎、分散;
②房子面积大,地下室层高高,可以使用很多设计手法来体现效果;
③负一楼区域面积大却不实用,造成空间浪费。
户型改造 /
①楼梯的改造是整个房子的中心,使两套房子完美的结合成一个房子;
②对整体动静区域进行了划分,空间比较整体、大气;充分利用采光好的优势,打造悠闲的空间;
③地下设置了麻将室,影音室、宴会厅,空间得到合理分配,实用性也大大提高。
➝
02
PORCH
玄关

# 甫一踏入空间,大幅的印象派锦鲤油画映入眼帘,在白色调的空间里给人带来视觉上的冲击,十分震撼。
➝
03
LIVING ROOM
客厅


# 步入客厅,明亮、清爽的氛围扑面而来,温暖明亮的暖色调,柔和软装与米白色的墙面相映成趣,在阳光的照射下,家中弥漫着黄色调的温柔光芒,让人心旷神怡。

# 电视墙不以传统的设计方式,整体以木饰面打底,白色石膏板增加立体造型,配色清新又大方。


# 客厅靠墙摆上深棕色+灰色软皮沙发,使得空间充满简约舒适的氛围感,柔和纱帘将引入室内的自然光线过滤得和煦温柔,休闲时播放舒缓的音乐,品上醇香的咖啡,惬意感满满!




# 螺旋楼梯带来一种现代简雅的视觉盛宴,流畅的曲线在白色的阶梯上流淌,玻璃扶手简约优雅,不规则曲线灯从顶楼倾泻而下,艺术感十足。
➝
04
DINING ROOM
餐厅



# 通透开敞、明亮温暖的餐厅成为一家人聚会、用餐、共同交流陪伴的温馨场所,伴随着一家人的欢声笑语,一切在精心的设计下显得随性而交融,这一刻,空间与人融为一体。
➝
05
BANQUET HALL
宴会厅




# 负一楼设置宴会厅,逢年过节一家人在这里团聚,圆形的餐桌容纳全家人的欢声笑语,整面大理石板和环形水晶灯打造轻奢氛围。侧边设置休闲区和水吧台,蓝色花瓣沙发柔软舒适,墨绿色花苞造型椅个性十足。
➝
06
KITCHEN
厨房


# 厨房空间以白色的瓷砖墙面基础,装上深灰色橱柜,呈现出一种时尚现代的烹饪环境,整体呈U型设计,“洗——切——炒”分区,操作流线更流畅。
➝
07
BEDROOM
卧室


# 卧室是简约商务的风格,橄榄绿床头呼应灰色背景墙,床头吊灯与内嵌灯带不对称布局,不逾矩的设计凸显了空间随性慵懒氛围,为卧室增添了一丝温馨自然的照明氛围,睡前看手机或看书,在这温和的灯光下,也是有着无比舒适的体验。


# 衣帽间延续整个卧室的风格,木地板人字形铺贴精巧灵动,整个空间打满浅色定制柜,收纳空间upup~衣帽间中部做化妆台和首饰收纳柜,在这里轻松搭配出一套时髦精look!


# 黑白配色的次卧散发着一种优雅和摩登气质,棕色的木地板给人一种深度和丰富感,与浅色调的房间相辅相成,带来视觉上的平衡,在透光纱窗的衬托下,让卧室时刻散发温柔的独特魅力。
➝
08
MOVIE & MUSIC ROOM
影音室

# 在家庭影音室里,你可以根据自己的喜好调整灯光、音乐,准备一些小零食,让观影过程更加享受,能在茶余饭后有这么一处休闲娱乐亲子共处的好场所,超级温馨烂漫,感受到电影的每一个细节。
➝
09
SANITARY WARE
卫浴


# 卫生间采用开阔通透的玻璃移门做干湿分离设计,呈现出一个现代时尚的卫浴空间感,浴缸这个小角落,疲惫时躺在里边让热水浸过自己,一次满足你对泡澡的所有幻想。