她家的空间改造和收纳经验,简直是二娃家庭装修典范!
在家ZAIJIA
2024-03-28
这两年,家有俩娃成了很多中国家庭的标配。二胎是喜事,却也是挑战。如何在有限面积内,让孩子们有充足的活动空间,爸妈也能多多陪伴,同时还不牺牲大人们的独立生活空间,是设计师@阿加这次要解决的问题。
使用面积:105㎡
户型:三居室
花费:60W
房屋坐标:福建 福州
认识她
设计师:褚晏(阿加)
阿加空间设计创始人,擅长挖掘业主情感所需的细腻设计。用专业的设计规划空间,用温暖的设计营造家是阿加一直坚持的设计方向。
房屋信息
这是一套拆迁安置房, 点状布局且单面采光, 105㎡内有一半是暗室, 入户一侧白天几乎全黑, 原户型的BUG非常多。

改造前户型布局图
屋主夫妇找到阿加时,她刚刚有二宝,对于如何为姐弟俩打造新家,设计师也有自己的小心得:
1. 分配要公平,不给老大造成心理落差;
2. 姐弟俩要有各自的独立空间;
3.创造互动机会,像一起刷牙,培养手足之情。
设置双台盆洗漱间,姐弟俩每晚能一起刷牙
除了改善户型本身的缺陷,考虑到二孩家庭的生活大都围绕孩子进行,夫妻俩忙完工作忙孩子,如何在柴米油盐中保留一份属于自己的生活,也是设计师阿加需要思考的。
改造后,男主人的独立小茶室和女主人心心念念的咖啡角,都得以实现。
改造重点
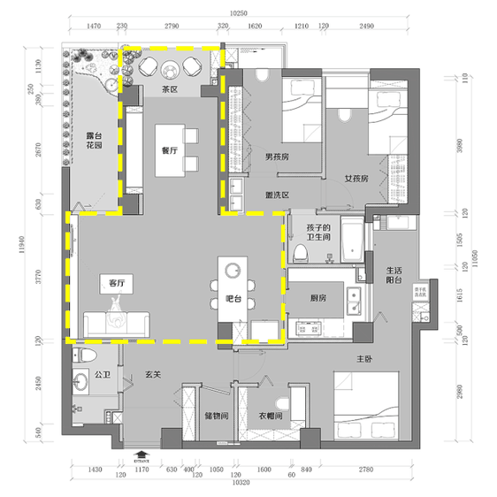
改造后户型布局图
改造时,设计师对空间做了如下调整:
○ 次卧1改餐厅,与客厅连通;
○厨房一分为二,中西分厨,新增2米长岛台;
○原主卧与次卧2对调,主卧拆分成两间儿童房,采光最不好的餐厅则被改成储物空间。

空间概念分析图
改造后,公共区形成一个客、餐、厨串联的宽敞空间,不仅采光通风得到改善,因各功能区处处连通,不论在哪儿都能看到家人的活动,独立又充满参与感。

巧用木格栅,隔断借光

将次卧1改餐厅后,公共区采光得到改善。设计师在入户区增设木格栅,视觉上隔而不断,也能将南向光线引入采光最差的入户区。
屋主想要的下沉式玄关,因为房屋原始层高不足无奈放弃。设计师改用灰瓷砖+木地板拼接的方式,通过地面材质的转换,划分出了“落尘区”。

公共空间全貌,正前方客餐厅连通,右侧串联起厨房岛台。
入户视角看客餐厨,宽敞的公关空间能有效提升入户体验,玄关左侧穿衣镜的反射效果,无形中也丰富了空间的层次感。

电视藏进柜子里,家人间要多些互动
沙发:二黑木作
茶几、玩具柜:等等几木
客厅是全家人的活动区,设计师将电视藏进了柜子,希望能为一家人创造更多亲密互动的机会。

电视是以可拉伸支架固定的,能灵活调整角度,不论坐在哪儿都能轻松观看。

客厅采用无主灯设计,顶部两排筒灯,电视柜内暗装灯带,设计师在靠近沙发一侧设置吊灯,另一侧为电视,靠推拉柜门切换客厅的使用状态。

柜门的设计也花费了一番心思,设计师特意请人临摹了老树的画放在这儿做画屏,屋主一家可以根据季节不同更换不同画面。
下方一排储物柜能有效避免生活杂物侵占空间的情况,让小朋友有更多空间玩耍。
客厅右侧就是厨房岛台,前方与餐厅连通,小朋友玩耍时,大人不管在哪个角落都能随时照看。

中西分厨,消除油烟困扰

设计师将原本的长条厨房一分为二,改成中西分厨的布局。一道玻璃门将两个区域隔开,中间的过道放冰箱,取食材更方便。
改造后,既能想享受备餐时一家人的有爱互动,又不用忍受油烟问题,女主人也在西厨内拥有了自己心心念念的咖啡角。
# 中厨

厨房延续了整屋浅木+灰绿的配色,相比之前的L型布局,改造后的U型厨房布局更实用,操作台面更是翻倍提升。

墙面以木质隔板代替吊柜储物,保证实用功能的同时也不忽略颜值。
# 西厨

吊灯:MOOORE
西厨岛台长2米、宽90cm,台面上设置了水槽,能作为备餐操作台使用,同时也串联着公共区与两间儿童房,是“家人间互动的桥梁”。

平时,一家人能在这面对面用餐,因为岛台对面就是客厅,能直接看到电视机。

女主人将咖啡角也搬进了西厨区,一杯咖啡、一块甜点,忙碌的生活中偶尔也能拥有一个回味悠长的幸福午后。
设计师将冰箱与承重柱中间的30cm缝隙改成了隐藏式抽拉柜,专门用来收咖啡器具。


墙面层架:等等几木
开放式拉篮抽:派雅家居
同时,在岛台下预留了五个巨型抽,哪怕囤再多食材,视觉上也会非常清爽。

连通阳台,盘活公共区采光

餐厅原本是间小次卧,改造时,设计师将次卧与紧邻的小阳台打通,改成餐厅,并与客厅、西厨连通成一个大空间,让南向光线自然灌进室内,有效改善了公共空间的采光和通风问题。

餐桌椅:光阴木器
如今一家人能在窗边用餐,心情自然愉悦很多。

餐厅日常。

与餐厅相连的小阳台,则被改成了男主人的休闲饮茶区,一天忙碌生活后能坐下来饮杯茶,享受属于自己的回血时刻。

一分为二改套间,姐弟俩的小天地

两间儿童房由原户型的主卧改造,设计师将空间一分为二,改成了专属姐弟俩的盥洗区+卫浴间+卧室的套间布局。

姐弟俩的双台盆盥洗区,位置紧邻西厨岛台,由一道玻璃隔断隔开。从这进入,就是两人各自的卧室和共用的卫浴间。

盥洗区宜家古德莫系列的双台盆柜,总长1米,洗脸盆也不算深,小朋友用起来刚合适。姐弟两个每天能一起刷牙洗脸,早上也不怕排队争抢。


儿童床:源氏木语
儿童衣架:等等几木
儿童房由原本采光最好的南向主卧改造而成,拥有最好的风景,在两间卧室的装饰上,设计师几乎一碗水端平。

生肖木牌:HAMUOO
唯一不同在房门上,分别挂着姐弟俩的生肖牌。两间儿童房同在一个大空间内,独立又亲密。

儿童房套间内自带一个卫生间,供姐弟俩使用,设计师特意在空间内留出浴缸的位置,1.4米小浴缸满足孩子们喜欢泡澡玩水的天性。

连接衣帽间和生活阳台,方便打理家务

改造后,原采光不佳的西北角次卧,变成了夫妇俩的主卧,而原餐厅被一分为二,变成了独立储物间和衣帽间。因为主卧临近生活阳台和衣帽间,更方便打理家务。

双人床:光阴木器
主卧内装饰简单,男主人偏好日式简约,原木与灰绿的色调搭配清爽宜居,作为睡眠空间的主色调也能辅助情绪放松。

整屋采光最差的区域被改成了储物空间,衣帽间内设计师特意为女主人打造了化妆台,虽然面积不大,但每天也能有地方坐下来美美的化个妆。

改日式花园,满足男主人的园艺梦

客厅连接一块小露台,改造时设计师将其做成一个略带日式禅意的室内小花园,满足男主人的园艺梦。

小花园正对客厅,平时屋主夫妇坐在沙发闲看庭院花,想想就舒服!
设计师阿加说:“四副碗筷、两个调皮的娃娃,家的感觉就已经满满的了。我希望通过家宅设计,让屋主人在柴米油盐中也能多一份从容。”


📱
━
商 务 合 作
微信ID:TrendsZaijia006
微信ID:TrendsZaijia010
后台回复“转载”,获取转载须知
编辑/里里 图片/设计师提供
参考来源:@阿加空间设计,已获得授权
喜欢这个家,
就请点个在看和赞吧!