打造温馨亲子房,让三代同堂更幸福
意森空间设计
2024-03-31
精装修交付,父母忙于工作,老人陪伴带娃
如何有序规划,让家庭生活更温馨,且看设计师如何做
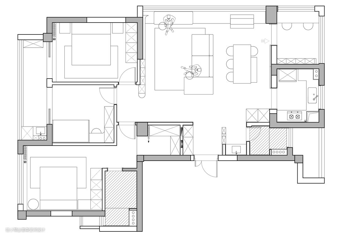
【1】三张平面图
从 原始结构-平面设计-空间改造
将设计师的改造思路梳理清晰,每一个改造的区域都做了说明
把小宝宝的儿童房放在老人房和主卧之间,空间上形成怀抱姿势,给足小朋友温馨感和安全感



【2】前后对比
原客餐厅收纳功能稀缺,整个空间透露着一股冰冷的感觉,作为三代同堂的家庭结构需要更多的收纳、互动性以及家居温馨感


改造后的客餐厅,地面大理石不动的情况下,墙面和顶面做了调整,用微水泥提高了空间质感
电视背景墙增加了收纳,小朋友的玩具、书本、小摆件都可以有收纳的地方
飘窗不好敲,刚好定制一个餐边柜直接放上去就可以了,平常还能作为茶台使用,收纳抽屉使用方便极了
顶底改好以后放置相匹配的家具,温馨的亲子空间就出现啦




原交付入户玄关、客卫以及走廊,是条条框框非常鲜明的,墙体比较硬空间利用率也不高


经过调整后,客卫改成干湿分离,小宝宝回家了就可以及时洗手吃饭,不影响需要用厕所的家人
玄关鞋柜功能分区,镂空和封闭分别放置不同物品
走廊与玄关、客卫连为一体,用同一个木饰面护墙板延伸至主卧
不管是作为功能区的玄关、客卫还是非功能区的走廊,从材质上提现出家居生活的整体性和温馨感



除了自己的卧室,主卧也是小朋友长待的一个地方,在父母下班后享受一段开心的亲子时光,主卧当然也要改造得温馨才好

于是,设计师就将主卧好好得改造了一下,顶地墙全改,地面换成鱼骨拼的地板(悄悄告诉你,地板拆除不影响地暖哦)
床头墙面用护墙板代替墙布,更适合整体改造风格,同时品质感也提升不少
其他墙面以及主卫门选用了与客厅一致的微水泥,微水泥的肌理感让空间哪怕是白墙也不单调
沿墙一组吊柜满足日常衣物收纳,布帘后的衣帽间则是衣物换季好帮手




书房和儿童房也是小朋友必出现的空间
从小给宝宝灌输有空多读书的理念,从小培养小朋友独立睡觉
书中自有黄金屋,屋内还有大黄蜂保护
好温馨的家庭氛围





看完了,你爱不爱?