新中式风格,打造永恒经典!🌟
品宅电子商务
2024-05-03
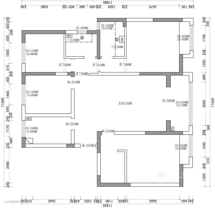
业主需求&原始结构图

房屋整体南北不够通透,采光不好

平面设计图及设计说明

通过将北面墙体拆除,做成厨房餐厅一体,使得整个家里采光、通风良好。

客厅效果图及设计说明

新中式的家具与整个地面融合在一体,同时顶面通过金属线条与灯带的设计,使得中式与现代的完美融合。

餐厅效果图及设计说明

厨房餐厅一体化的设计,体现出客户喜欢新中式的同时,又不拘泥于传统,传统与现代的碰撞,形成一个美好的家。

卧室效果图及设计说明

步入卧室,顶面的金属线条与灯带的现代感与墙面中式元素的对撞与融合,真正体现出新中式的感觉。
