访问APP

传统与现代的完美结合,新中式装修

郑州金螳螂家

2024-06-25

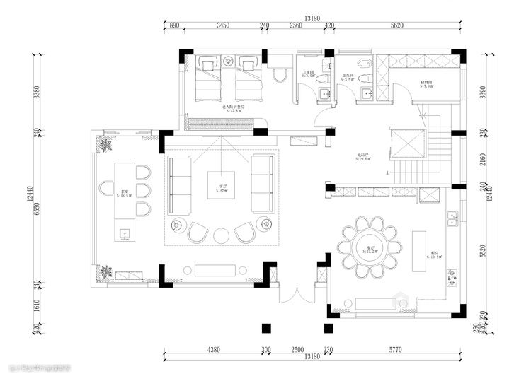
业主需求&原始结构图

本案的户型是一个三层独栋别墅,采光极好、有独立的花园。别墅在深圳龙岗区的一个别墅群里,这里很多别墅都是当时的居民自建别墅,每家每户的外观和户型结构和占地面积都不相同。本案的别墅在90年代的设计来讲也是非常前沿,主要缺点就是每个房间的窗洞非常多但每个窗洞非常小。整栋别墅外观方方正正没有造型感,外观也是本次改造的重点。 客户是一对快退休的叔叔阿姨,家里有一个女儿和两个儿子。从他们喜欢的家具风格了解到他们喜欢新中式的风格,木的框架加灰蓝色的布艺搭配无疑现在非常流行的现代新中式风格。所以本案定位风格为现代新中式,通过中式风格的特征,表达对清雅含蓄、端庄丰华的东方式精神境界的追求,新中式不是纯粹的传统元素的堆砌,而是通过对传统文化的认识,将现代元素和传统元素结合在一起,以现代人的审美需求来打造富有传统韵味的事物,让传统艺术在当今社会得到合适的体现。.

平面设计图及设计说明

1、室内结构图上扩宽窗洞全部做改造了大的落地窗户,把没有必的小窗户封起来来达到空间的整体感; 2、把厨房从原有的小角落改到了靠近花园的位置,把餐厅和厨房连接到了一起,开方式大厨房加配有大圆桌的餐厅一大家人的用餐其乐融融。 3、客厅和茶室相同,会客区域和家庭互动区域放在同一个区域增加父母与子女的互动时间。按照空间划分,既有区分,又有联系。 4、本案最大的工程就是在原有的楼梯区域要改造出楼梯结合电梯的功能,通过专业的结构改造最终实现了这一个设计亮点也方便了家里老人的上上下下。

客厅效果图及设计说明

设计思维注重材质的选择,在材质的选择上注重自然朴实、温暖舒适。家具的款式强调简洁大方,简单的直线条背后和种行云流水般的流畅感觉,不以形式为主导,自然而然的将东方味道呈现。

餐厅效果图及设计说明

设计的主要元素是山水画的石材加防布纹的集成板及黑色哑光不绣钢收边条。黑色哑光木质的垭口套,把每个区域风别开。

卧室效果图及设计说明

卧室地面采用深色木地板,整个空间显得沉稳有品质,背景采用新中式元素花鸟的真丝墙布配香槟金金属线条让沉稳的空间变得有生气。