爱情长存,打造温馨婚房!❤️
郑州金螳螂家
2024-06-27
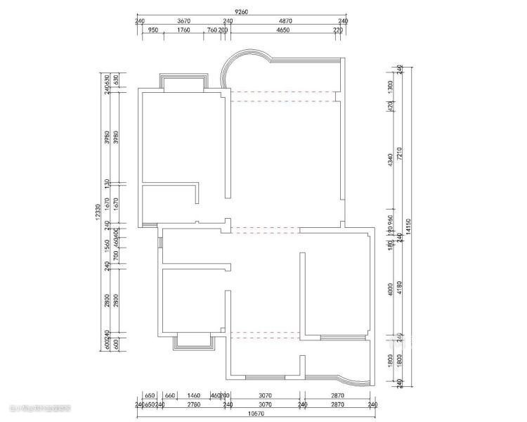
业主需求&原始结构图

本案的业主是一对公务员,平日工作繁忙,不时还需要在家里加班,屋主不追求各式各样软装堆砌的奢华,想把“家”的特质最大化体现,让这个宅子处处充满本真、爱和阳光,承载着回忆也可期未来。

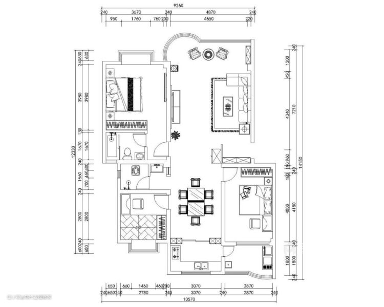
平面设计图及设计说明

原始户型采光充足,空间合理的规划,结构上没有做特别大的改动,最大的变动就是进门玄关及客卫生间,更注重空间的体验和感受以及灯光物品等,对感观和触感上的细节把控,每个功能区的开与合都是为了完成从一个功能区到另一个功能区更好的心理过度。

客厅效果图及设计说明

灰+蓝,强烈的色彩反差展示出超强的吸引力,具有沉稳质感的现代风格,彰显出理性,舒适的特性,顶面简洁的线条,透现出空间的美感与力度,隔离了灯红酒绿的玩世不恭,让人们回归于理性、秩序感的生活。



餐厅效果图及设计说明

餐厅与厨房半遮半掩,高级灰沉稳、气质优雅,更有着男性化的一面,黑白灰的经典搭配百看不厌。 客卫生间干湿分离,铁艺雕花做隔断,与整体更加协调统一。

卧室效果图及设计说明

卧室内的装饰性降到最低,没有繁琐的修饰,在照明上大多光源都是暗藏的漫反射光源,让眼睛和心理都得到休息和放松更好的入睡。


阳台

在一个充满阳光的午后,卸下都市生活的焦躁与快节奏,一缕阳光、一束绿植,感受大自然的生机盎然,一本书、一杯茶,体会日常生活的惬意,为业主打造一处温馨的居所。


