480平北欧别墅,让你拥有私人天堂
郑州金螳螂家
2024-06-29
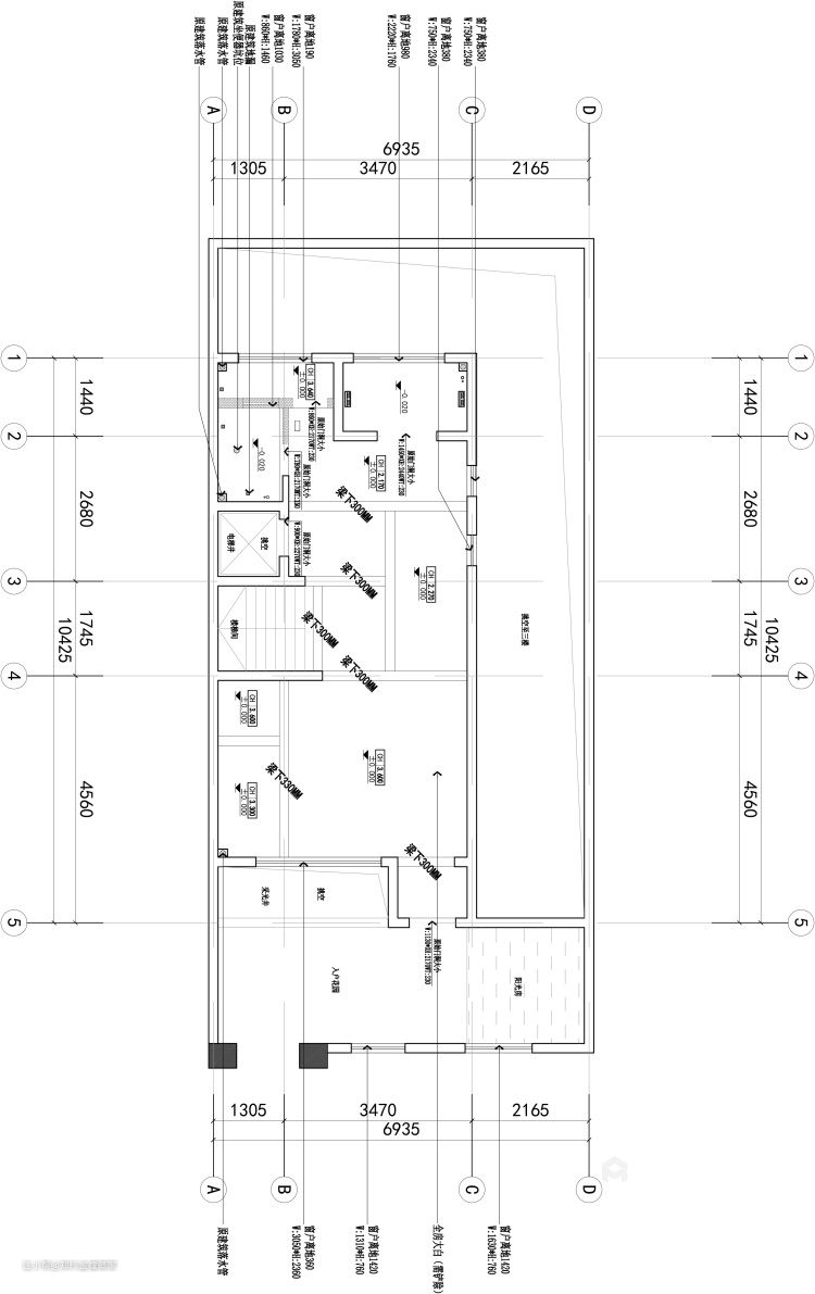
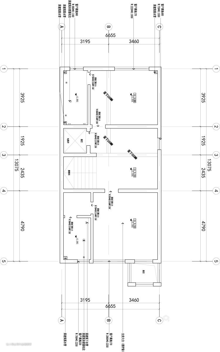
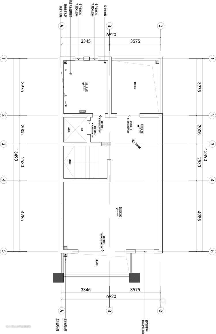
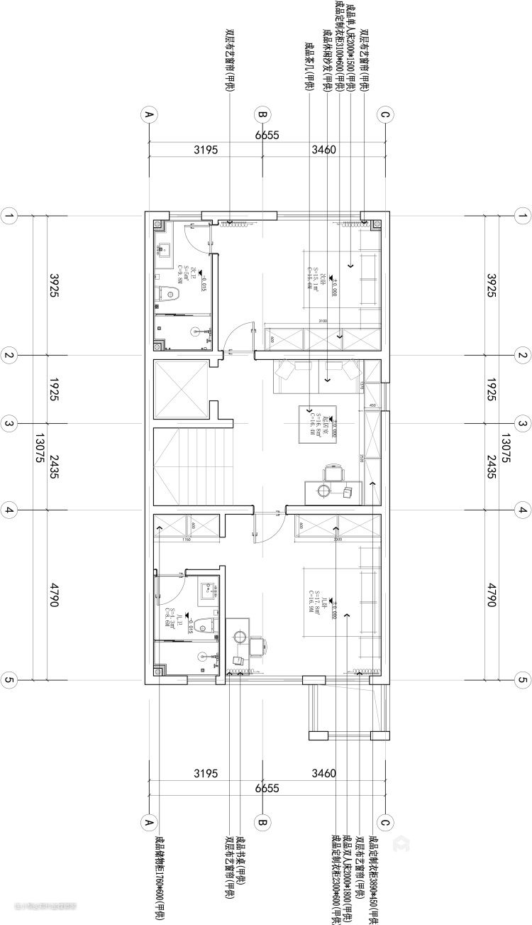
业主需求&原始结构图

业主希望打造一个自由舒适且富有艺术气息的家



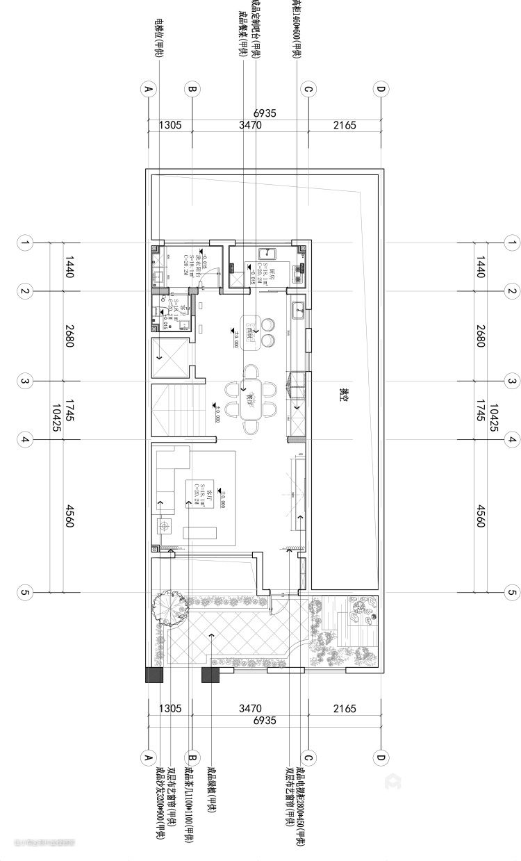
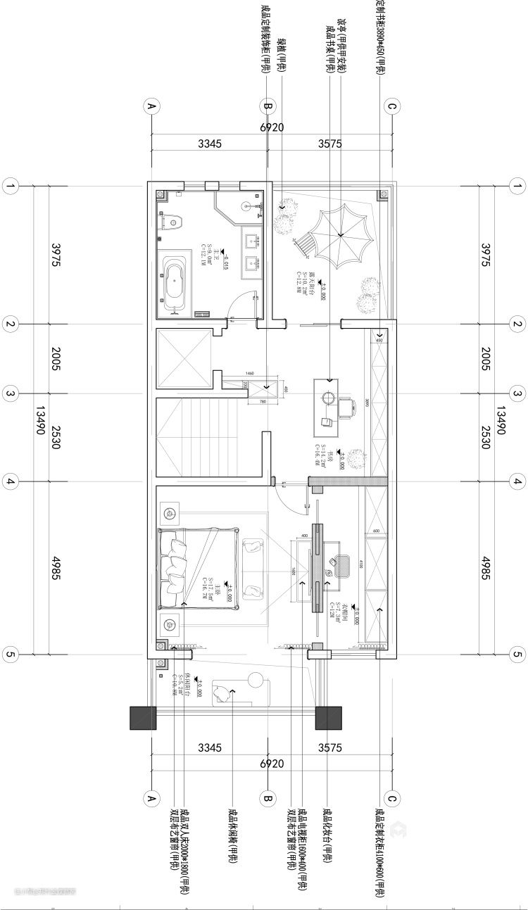
平面设计图及设计说明

设计风格是设计师根据业主的气质和喜好而定的,复古北欧风,北欧的清新活泼,复古元素的沉淀与怀旧的情怀



客厅效果图及设计说明

室内光线充足,线条简洁,由米色系墙面构成,通过复古的软装配饰,或柔美的,或硬朗的,更好的诠释设计主题。


餐厅效果图及设计说明

起居室;整体空间用灰色作为主色调,让整个空间刚柔结合体现出主人的感性与理性给室内空间披上一件柔和的外衣,使空间更具透气简洁

卧室效果图及设计说明

主卧室的主色调则是干净又静谧的灰蓝色调,非常适合休息睡觉的氛围

书房

书桌上的开放式书柜,能收纳许多书籍,井然有序。

卫生间

主卫调整了布局,利用更为合理;墙地砖和浴室柜颜色搭配,线条感更强,空间显得更加整洁
