风格上,我一直都不是一个非常前卫的人,希望自己的家可以经典耐看,充满高级感,因此最后选择了法式复古,整体的色调都是素素的,因为喜欢木头的质感,用了很多木纹开放漆质地的家具。
配色基本上就是白色灰色绿色,点缀色是金色银色。装修的整体过程都保持了克制,朝着低调地高级感努力。
装修历时半年,因为有幸选到了给力的设计师和工长,我一个平时要上班的单身女青年愣是一个人从头到尾盯下来没出什么篓子。这半年不知道查了多少资料,问了多少过来人,确实是第一次装修,很多地方多少都有一些遗憾。在这里想说装修没有不留遗憾的,还是要懂得放过自己。
既然放弃了大色块,那就只能从细节入手,加上设计师跟我都是强迫症晚期:1、全屋做了等高线,全部门套线和石膏线以及部分嵌入式柜体高度等高,可以在视觉上提升层高。2、衣柜、鞋柜、书柜、以及门、踢脚线、床及床头柜颜色统一,可以大大提高全屋的整体感。3、射灯点位严格结合立面来做,每次开灯都会被光效美到
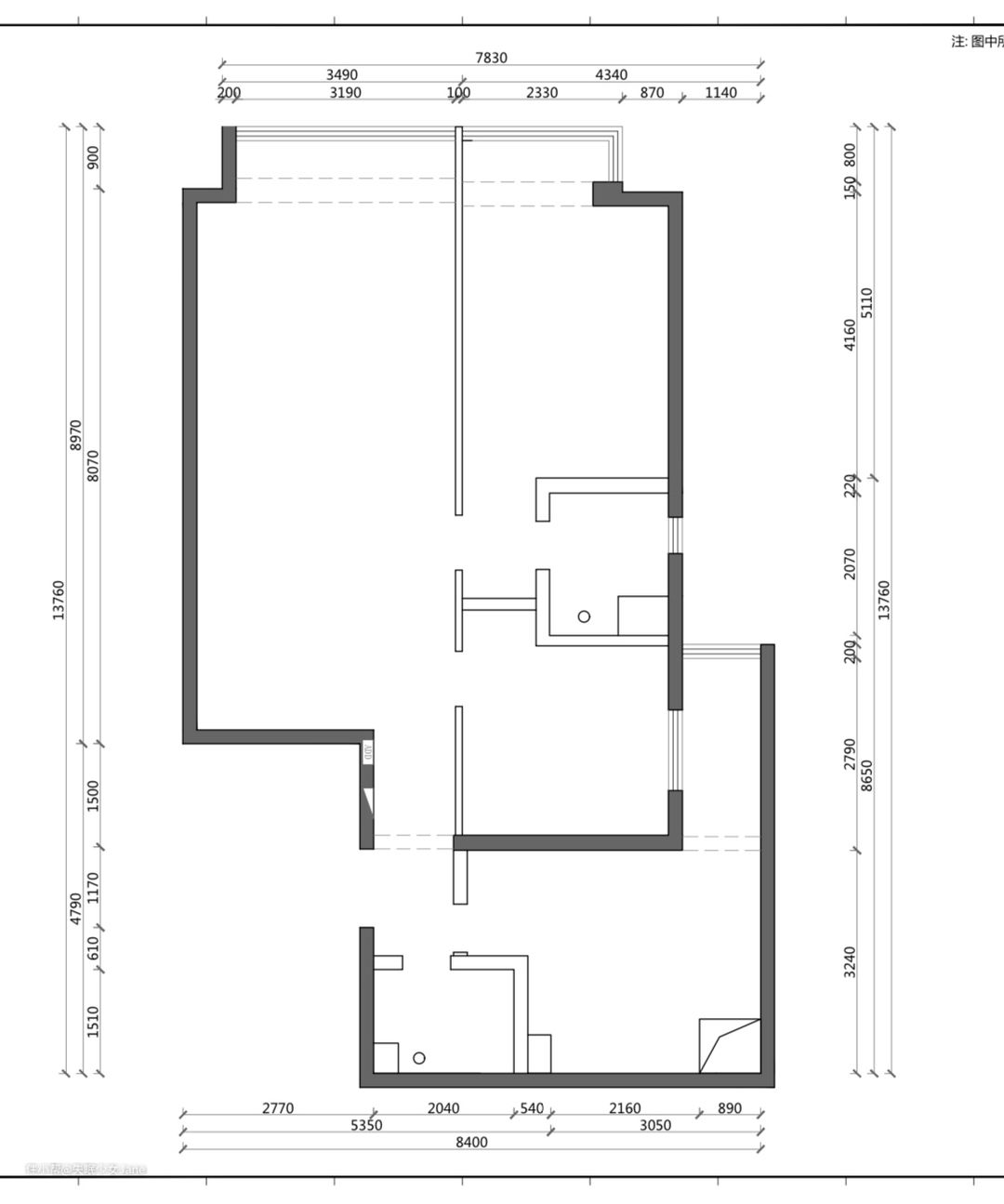
房子是很典型的塔楼房型,买的时候也主要考虑到房子的位置非常好,得房率也不错,厨卫面积大,有一整面非常美的落地窗,可以看到中国尊的夜景。但是在实际设计时,因为房龄已经将近20年,户型上有很多老房子设计不合理的硬伤:
1、玄关窄只有1.1米,无处安置玄关柜。
2、除了主次卧和客厅之间的一面墙可以拆改,其他位置墙体都不能动。
3、房子有很多设计不合理的上下水管包管形成的垛子(厨房2个,主次卫各一个)
4、卫生间虽然有两个,但是每个都不足4平米,且干湿不分离,使用局促
5、暖气串联,各个房间都有两根无法隐藏的暖气主管道,这个管道导致暖气位置无法改动。
6、次卧没有直接对外的窗户。

改造后的房型。
1、进门玄关处往次卧推了一些,做内嵌式到顶鞋柜
2、次卫放弃淋浴功能,主卫和主卧分离,洗手池挪出来,实现干湿分离
3、几个碍事的垛子进行了适当的宽度调整,避免角落处不规整产生卫生死角。
4、扩大次卧与生活阳台之间的窗户,最大限度提高次卧采光。

玄关的几个功能:换鞋、放随手的小物,挂衣服和包,放鞋子,受过道宽度所限,将这些功能全部拆散,分别由:鞋柜(放鞋子)、壁炉(放随手小物)、换鞋凳(换鞋)、挂墙穿衣镜(整装出门)、上墙挂钩(挂衣服和包)来承担。

由于进门处过道宽度只有1.1米,不适合安置玄关柜,因此拆了一面墙,定制了内嵌式的鞋柜。改造后的玄关拥有统一的线条感和颜色。

餐厅视角,可以看到鞋柜和门是同色,电表箱专门挑选了好看的样式可以不用挂画遮丑。

鞋柜内部设计合理,可以放将近100双鞋。

客餐厅一体是一个3.6*8米的规整长方形,布局上还是省力的。因为父母要看电视,所以舍弃了超爱的合抱式客厅,简单的布局成了3人位沙发加2个单人位沙发的模式。

沙发选择了绿丝绒材质的三人位沙发,考虑到生活习惯,客厅坚持用了有储物功能的电视柜、茶几和边柜,每次用完东西可以就地收起来,有利于保持屋里整齐吧。茶几是仿中古款,算是能找到的最合适的储物茶几了,配合家里的朴素法式风,地毯也挑了一个素素的款式。

我个人非常不支持过度装修,对于硬装的要求就是,需要实现功能性和简单的装饰,不认可满墙护墙板(不环保)或者大理石(造价高昂),因此电视背景墙就用了非常简单的石膏线做了几个线框,房子原始层高不好,也不适合做过于复杂的造型。

线框搭配了黄铜壁挂烛台,阳台上的茶几本来想用于喝茶的,现在已经沦为植物角,电视柜是开放漆质感。

阳台这边其实是一个50cm的内阳台,布置成了猫咪乐园,通天柱爬架很适合北京这种寸土寸金的房子。茶几本想用来喝茶看风景,现在已经成了植物角。

电视墙角度视角,边柜选择了复古的木质款式,上面做了小小的展示台。地板是鱼骨拼,颜色是发灰的原木色,鱼骨拼属于法式必备,但不太好铺贴,务必联系厂家安排好一些的地板师傅来做。

客厅用了11个明装筒灯,射灯点位一定要结合立面来做。吊顶是10cm窄边吊顶 灯槽的方案,因为原始层高很捉急,因此选择一个小小木质吊灯作为主灯,我一般就只开这几个筒灯,照明足够了。

边柜上的地图是出去旅行带回来的刮刮卡世界地图,随着步履不停可以逐渐解锁不同区域。

入秋以后新入了换黄麻地毯,这里现在是秋日暖阳下的温暖的小角落。

小边几是家里的颜值担当。

愿你生命中,始终有花有草有音乐

吊灯:https://buyertrade.taobao.com/trade/detail/tradeSnap.htm?spm=a1z09.2.0.0.1f4f2e8dBDncs2&tradeID=262457378122902343&snapShot=true
射灯:https://buyertrade.taobao.com/trade/detail/tradeSnap.htm?spm=a1z09.2.0.0.1f4f2e8dBDncs2&tradeID=262457378122902343&snapShot=true餐厅
餐厅区域,房子是客餐厅一体的设计,餐厅区域大约宽2.4米,深2.5米的一个区域。用了1.8米的四人位长餐桌加通顶多功能餐边柜来做这个餐厅的方案。

很爱实木质感,原本看上一个实木拼花的餐桌,但是考虑到可能多少会有油渍渗进去,就换了现在这款。因为做成了细腿加黄铜的模式,所以不会有传统实木家具的厚重感。

一个充当玄关柜的壁炉,这真的是家里最爱的角落,什么东西放上面都一秒变高级,壁炉也同样选择的浅白色 开放漆。

因为没有独立的书房区域,这个通顶餐边柜集合了和书柜、杂物柜、展示柜多个功能。

餐边柜细节,选用了开放漆质感的实木,可以看到淡淡地木纹。

餐厅的角度看客厅方向,可以看到塞满干花的斗柜。

摆件常换常新。

花瓶里春天是一把樱花秋天是一捧芦苇。

壁炉的一些细节,生活离不开鲜花的我。

厨房很大,但是有两个大垛子影响布局,还要留出去家务阳台的过道导致利用率不高,布置起来难度不小。
配色选择了比较冷淡的灰绿色,为了挑出这个颜色天知道我经历了什么,墙漆和橱柜颜色一致。
进门左手边为洗菜备菜区,右手边是冰箱和灶台,塞进去了一个小吧台,做饭做累了可以坐在吧台上休息,也充当备菜区和小家电区。

在装修厨房这个部分的时候,其实最深刻的感觉到,家装就是在实用的烟火气和不实用的高级感中间找一个平衡点,我的厨房,吧台吊灯、装饰画是高级感,手扫感应灯、上墙挂件是烟火气。

水槽操作台一面,储物高柜的容量很惊人,我个人不是太喜欢吊柜,感觉使用起来很鸡肋,因此就用了置物隔板,节约预算也更加美观。

小家电区,插座选择的都是带开关的款式。

挂钩的一些小细节

隔板细节,带挂钩可以挂很多厨房用品,材质是黄铜+大理石更加耐潮湿,龙头用的是三合一带净水的抽拉龙头,可以少打一个孔。

懒角落的微波炉架和调料架真的治愈我的强迫症,连调料罐子也是翻遍淘宝找了一个复古款。

12平米的卧室,能塞进去梳妆台、衣架、1.8*2米的床、两个床头柜、2米衣柜,我已经挑战了主卧的极限了,但是拍照,我是真的拍不全啊啊。

床、床头柜、门都是实木调色,保证颜色一致是提高整体感和高级感的关键。

梳妆台方向,左侧的衣架替换了以前卧室那个堆满衣服的椅子。

壹间家居的梳妆台搭配野兽派的小墩子,我的居心地

阳台视角,家具内嵌,感受上会更加整齐高级

床头两侧各有一个壁灯,可以独立控制。另外,床头还有三控开关可以控制主卧的筒灯和吊灯,硬装上增加生活便利必不可少的小心思。

梳妆台的一些小细节


香薰蜡烛小小的火苗总能带给我巨大的满足感。

丝绒首饰盒实在是太爱了

衣架和床尾造型细节

次卧只有8平米,装了地台床和3米长的衣柜,倒不是喜欢榻榻米的储物,单纯只是因为这样可以节省一个过道的宽度

进门视角,空间小从床品到墙面颜色都选择好攻击性很低的黑白灰

次卧贴了一面墙的壁纸,好看的进口壁纸很多,最后还是选择了最克制的一款

床头一侧,抱枕做床头了。

小小的空间兼具了书房、卧室和储藏间的功能。

书桌:https://item.taobao.com/item.htm?spm=a1z09.2.0.0.62912e8d3lzomo&id=42690157350&_u=gdrbo43149e
主卫干区,淘宝淘到了超级貌美的浴室柜,两个卫生间地砖都是淘宝的大理石六边形马赛克瓷砖。

干区看卫生间湿区,墙砖的选择就是最经典的小白砖,顶面是防水石膏板吊顶+射灯。

主卫湿区实在太小,使出洪荒之力也拍不全,只能拼拼凑凑着看,主卫马桶用了壁挂马桶,世界上缓解这个包管产生的深度问题,20cm的假墙可以置物也可以摆点小摆件。

次卫的改造其实可以算是整个房子里最让我发愁的部分,原马桶就在正对门的地方,用平开门门都很难推开,最后全屋整体抬高了一点地面,把马桶移位到了进门左手边的角落里,正对门的位置换成了一整排的浴室柜

原先3平米的次卫,放弃了淋浴功能以后,装了1.65米的超大洗手台和复古高水箱马桶。低瓦数的小吊灯在晚上起床上厕所的时候打开不会刺眼。

入墙式龙头细节,预埋件需在水电阶段预埋

高水箱马桶细节,上水位置与普通马桶不同

房子使用面积93平米,装修花费是45万(不含电器和后期置办的小摆件),电器买的比较贵,实际上全部加起来可能到60了🤦♀️,具体的预算表参照上面这张图(做法请看李涅同学的文章),预算分配基本是硬装(主材 人工)25%,家具(全屋木作)35%,电器(这一部分我个人比例偏高)20%,灯具(5%),洁具五金(5%),软装摆件类(5%),其余5%用作浮动开销。

