本案屋主的第一套房子就是盈盈设计的,从那时甜蜜的二人世界现在变成了幸福的三口之家,换了新房子,对于空间的需求也有了新的变化。因为太喜欢盈盈的设计,他们买房后第一时间就联系了我们。屋主对家的期待是:简单、通透、明快,同时对收纳需求也很高,还希望家人有各自足够的生活和活动空间。(屋主买的是精装房,设计师保留了原来的地暖、空调以及厨房和卫生间的空间)
所以针对这套260方的顶层复式,我们的设计师让各空间都得到了最大限度的利用。比如:
1、把餐厅,书房,工作区等几个功能融合到同一空间中,极大提升了空间效率和家人间的互动性;
2、客厅与茶室进行了有机结合,让家人各取所需,也为生活增添了雅趣;
3、二楼休闲区是集瑜伽室,儿童玩乐区,男主的游戏区的多功能区域,并且把旧物利用做到了极致。除此之外,轻薄通透的楼梯设计也是本案的一大亮点和难点,后来成为了很多客户的重要参考!请耐心往下看,每个空间都有亮点!





一层原始结构

二层原始结构

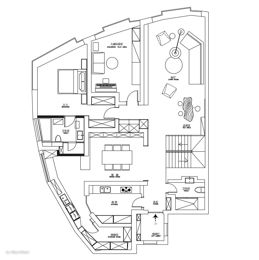
一层平面布置图
根据屋主的需要,设计师对空间进行改造:
1. 朝东次卧改门洞位,做敞开式餐厅兼书房,使客厅更开阔,餐桌和书桌兼用。
2. 原操作阳台和设备间拆除,改洗衣房和西厨,与餐厅打通,各个空间相连又相对独立。
3. 保姆间拆除,改男士衣帽间,增加储物空间。
4. 主卫拆除,墙面往外移,将梳妆台移至主卫。

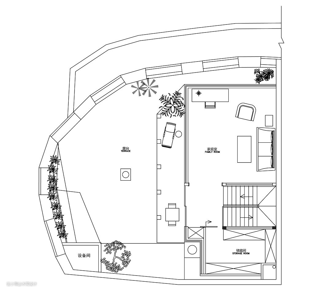
二层平面布置图
二层改变空间结构,重新规划了功能,
1. 扩大室内空间,改造为家庭活动室和女士衣帽间。
2. 在露台搭建雨棚,解决顶层隔热问题,打造出休闲娱乐区。

客厅以原木色为主色调,简洁又温润;人字拼的木地板,为家带来温暖与灵动。开阔的布局给孩子提供了足够的活动空间,或走或跑,释放天性。

木饰面打造整体墙体造型,温润的木质肌理与天然大理石搭配,呈现冷暖平衡的和谐之美。嵌入式电视使空间更加简洁开阔,打开电子壁炉,跳动的火光为空间带来生机与温暖。


整面的落地窗,采光、视野极佳,适宜的光线下,整个家呈现出温暖的简洁与通透。

尼加拉蓝的沙发椅,为淡雅的空间增加一抹重彩,丰富了空间的层次感。

男主人喜欢品茶,便将较大的客厅进行功能分区,单独打造喝茶区,将中式的风格元素巧妙的融入到温馨简约的家中,宁静轻悠表达着屋主的心境和生活态度。

为男主人营造的品茶区,古雅韵味与现代艺术的融合,在设计师的描摹之中,空间之间弥合,对话,诉说新与旧,在一笔一墨之中,见天地生息,一壶一炉,叙述生活的雅趣。在物物之间,应衬时代的质感。

楼梯是本案的亮点和难点,整体采用了钢结构、实木板、不锈钢和玻璃等多种材质,复杂的工艺使美观与实用达到了平衡。


我们把原来现浇的L型楼梯敲除改成U型,使楼梯显得更加轻薄,悬空的设计让整个空间更为通透。所有踏步都是45度角拼接,与墙无缝衔接,钛合金的包边,使玻璃护栏和原木踏步更加精致。

为了让楼梯区域通透却不空旷,楼梯下面做了分割和黑色不锈钢勾边,并用马来漆刷成灰色。对于细节的精心处理,使居住者更安心更舒适。

楼梯上方设计天窗,透明玻璃把自然天光引入室内,为轻薄精致的楼梯带来别具一格的美感。

敲掉次卧靠近入户门的一面墙,使整个空间都联络起来,彼此之间有了互动。当母亲在西厨烘焙西点,父亲可以在餐厅工作,孩子在联动的空间里自由玩耍,家人之间的互动自然流露,整个家暖意融融。


浅木色的护墙板与灰色硬包拼接,柔和的色调让人宁静又安心。无床头的设计,只做了床箱,保留极简的设计风格,整个卧室毫无繁杂。


儿童房以海洋蓝为主色调,活力十足又不觉幼稚,定制的机器人壁纸,充满童趣。没有固定的家具,留出足够的空间来跟随孩子年龄的成长灵活调整。一整面蓝色黑板漆既可以让孩子发挥想象进行涂鸦,也可以用来辅导孩子功课。从旧家搬过来的储物柜可以装下孩子所有的玩具,极大的分担了客厅的收纳。

卡通可爱的小桌椅用来培养孩子阅读的习惯,旧家的布艺沙发方便父母陪伴孩子学习玩耍,增加了亲子之间的亲密互动。

借用部分西厨空间打造了淋浴房,并将女主人喜欢的梳妆台空间挪到了主卫,方便日常使用,也保证了卧室的整洁与极简。

楼梯上来是连接衣帽间和家庭活动室的走廊,我们在一侧打造了阅读角,亮黄色的沙发椅柔软舒适,随手从书柜上取下喜欢的书,便可享受美妙的阅读时刻。黑色的玻璃移门既是书柜门也是房门,推到右侧就可以进入衣帽间,十分方便。

落地玻璃墙明亮通透,引景入室,带来轻松舒适的空间氛围,成为不错的家庭休闲区。这个空间放置的都是屋之前的旧家具,我们还利用精装房拆下来的地板做了天花板,旧物利用其实也是设计中一个非常重要的部分,环保又实用。

我们用钢结构和木板打造遮阳篷,来解决顶层玻璃房的隔热问题。休闲的藤椅茶几,大型的绿色植物,仿佛把大自然的美景搬到家里,带来放松惬意的度假感受

露台没有做复杂的花园,满铺防滑砖,给孩子安全舒适的活动空间。用防腐木做梁柱包裹中间的排气井,使空间美观整洁。
没有豪华的装饰,也没有繁琐的堆砌,我们用简洁流畅的线条和最纯粹的色调打造出这个精致的家,容纳着屋主一家三口的温馨日常,酝酿出专属于他们的幸福生活,家人之间的陪伴与爱,在开阔通透的空间里缓缓流动。
100w(设计费7w+施工28w+硬装45w+软装20w)

