访问APP
客厅
餐厅
卧室
厨房
卫生间
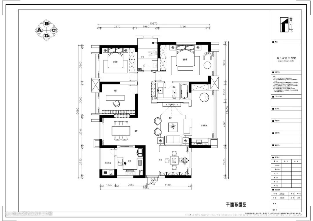
户型图
开放式茶室
插播两个实景中没表现...

成都文艺范儿夫妻打造150m²新中式,每1m²都是向往的样子

成都青丘设计工作室
关注
户型
四居
风格
新中式风
面积
150㎡
位置
成都市
预算
30万
前言介绍

“先生爱藏酒,夫人爱诗画”,是形容本案业主夫妻俩的。所以你能猜到,他们的新家会装满各自喜欢的事。私下里,设计师经常称呼女主人是“文艺姐姐”,姐姐爱书法,爱品茶,所以重点设计了茶室,同时将整屋的基调,打造成了非常符合男女主人气质的新中式风格,“淡观山水闲看月,只念诗书不念愁”。

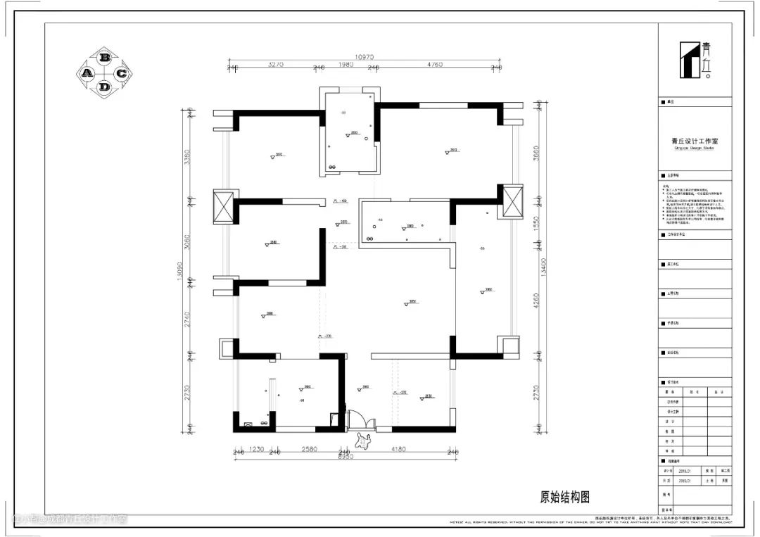
户型图

[楼盘]:成都锦江区·塔子山壹号

[面积]:150 m²

[户型]:四室两厅一厨两卫

​[风格]:新中式

[家庭成员]:业主夫妻两人,女儿国外留学

开放式茶室

■一面是日光,一面是茶香,茶室的设计大概是女主人最喜欢的部分之一了。中式气质的隔断、拿铁色木地板、开放式储物柜,于有形无形中创造出一份静谧而轻松的空间。

■开放式的茶室,既满足兴趣归属,又保证家人情感交流畅通无阻。沙发、茶几和地毯一定是整个客厅强调主题的存在,稳重,个性,同时又很符合居住者使用习惯。

客厅

■电视背景墙用灰色棉麻布料进行硬包,黑色哑光钛金线条收口,呼应地面的水泥灰色地砖,考虑到电视墙作为客厅的视觉中心,故以此奠定基调。同时利用拿铁色木饰面板点缀,提炼主题色,此处一个小心机——由两侧木饰板包裹着的是灰镜,设计师利用这种能产生光影感又不晃眼的玻璃材质,为空间增添小生趣。

■凭着超好的采光,用了不少屋主喜欢的深色系主材和家具,和整体风格十分贴合,同时也呈现了“设计须尊重空间持有者的体验以及彰显居住者个性”的原则。外阳台用生态木吊顶,来保持空间的延展性。位于我们视线对角的,是为女主人特别设置的清洗茶具的水吧台。

■亮色的橙色单人椅,作为提亮单品,同时加持空间的高级感。宽敞的过道空间并没有浪费,为了强化储物,过道右侧打造了一面收纳柜。

餐厅

■因为要安装中央空调,所以客餐厅都做了吊顶。四人餐桌摆于餐厅正中心,桌椅纹理细腻,双面阳台的窗帘均使用精选的进口材质,手感非常舒服,选色上也继续保持内敛和活力兼并。

■嵌入式酒柜的设计,是向旁边卧室借了一部分空间,凿了一半的墙。这里就是为男主人打造的特别空间,酒柜内部根据男主人需要定制了个性化储藏方式,加装灯带,同时玻璃柜门一通到顶,定制要求非常严格,好在完美呈现出了理想状态。拍摄时,确实看到了不少好酒,酒柜值得!

厨房

■厨房内部是经典的U字型结构,因为生活阳台入口在进门右手边,所以冰箱放在了进门左侧,洗手池设置在光线较好的一面,最终贯彻洗切炒装盘的动线,减少下厨时的不便。

卧室

■依然延续主题色调,主卧进门左手边靠墙定制一墙通顶衣柜,满足收纳需求。背景墙依然是客厅电视背景墙的使用元素,床中和了柜体和背景墙的色调,选择温和的奶咖色,手感细腻,三分之一人生长度的睡眠时间,不可将就。

■卧室飘窗简单布置,呈现一处不可或缺又不会喧宾夺主的小光景。

■为出国留学的女儿准备的卧室,呈现了和主卧不一样的视感,背景墙是用清新的绿色墙布整贴,窗帘也选了同色调的绿,来达成呼应。

卫生间

■其实在早期勘测现场时就发现整屋的地面都有明显的倾斜,所以在整体空间水平线确定过后,将次卫生间马桶位置抬高了几公分,把原先靠近门口的马桶内移。原本布局十分不合理,马桶太靠门口,留给浴室柜的空间非常小。为减少安全隐患,少留卫生死角,设置了干湿三分离式,将淋浴、马桶、洗漱台各划分成不同区域。

插播两个实景中没表现的点

■①主卫生间的主排水位置比较尴尬,空间的浪费率较高,同时卫生间的功能分布不明确,所以将走廊右侧墙体内推至排水管包管位置,用墙排马桶改变马桶的位置,让使用动线更合理。

②前期考察周边环境,有建筑工地且紧邻主干道,人声车声嘈杂,所以封掉了生活阳台、客厅生活阳台,同时更换其他空间窗户(之前用于出租,窗户有损坏),均更改为断桥铝窗户,隔音效果很好,保证室内宁静。



项目总结

[设备]:中央净水、中央空调

[室内设计]:青丘设计

[施工单位]:青丘施工

[软装实施]:青丘家居

[主材使用]:罗马利奥地砖、瑞士卢森地板、精工定制木门、科勒洁具、富兰克浴室柜、楷模定制柜体

[Designer]:青丘设计·王昱

■新家装完,设计师和项目经理同业主夫妻俩,从并肩作战的队友,变成餐桌上共享佳肴美酒的好友,希望这段特殊又美好的旅程,我们永远记住彼此,同时也非常感谢业主夫妻的信任和配合,唯愿我们的短暂参与,能让你们未来的日子越过越茂盛。

费用清单

[基装+主材]:30万

[全屋定制]:10万