十二分定制打造 · 旭日凤凰城 | 简单时光,点缀“新”空间
- 项目地址:旭日凤凰城
- 项目面积:260㎡
- 项目风格:现代北欧
- 硬装设计:十二分空间设计中心-郑 越
- 软装设计:十二分陈设设计中心-张 超
- 带有“目的性”的“量身定做”的设计会更符合空间主人的特性。在整体空间设计上,设计师们尽量选择简洁的空间造型和形态语言,努力为业主一家创造纯粹的、温和的、与自然融入,有利于小孩老人的生活空间,拉近空间与使用者之间的距离。

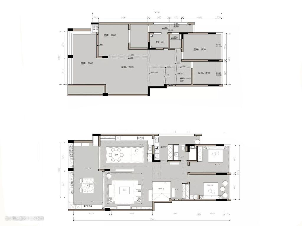
一楼原始结构图&一楼平面布置图
- 原户型属于二手房全屋翻新,声音嘈杂、外墙潮湿、卫生间厨房狭小采光很差,空间没有合理利用等等,这些问题是第一次去现场发现的,经过反复的推敲,将通过设计上的改造,将其难题一一攻克。

二楼原始结构图&二楼平面布置图
- 入户修改了楼梯的位置,使得客餐厅公共区域变得更加方正,也增加了二楼儿童房的面积。一二楼次卫借用打飘窗的面积增加了宽大的淋浴房,满壁镜柜暗藏灯带解决采光与储物的缺陷。

带有“目的性”的“量身定做”的设计会更符合空间主人的特性。在整体空间设计上,设计师们尽量选择简洁的空间造型和形态语言,努力为业主一家创造纯粹的、温和的、与自然融入,有利于小孩老人的生活空间,拉近空间与使用者之间的距离。



古巴沙色皮沙发搭配灰色系休闲椅、地毯,营造自然舒适的人文气息。设计了一面半高的电视墙,温润的木纹肌理转化为空间基底的延伸感,更好的划分客餐厅,既有交流也互不干扰。

吊顶通过木饰面装点原本扩大客厅后遗留的梁,与餐厅不同的造型来做区分,原色的木材又与电视墙、岛台相呼应。

梦寐以求的开放式大厨房加中岛台配和六人位餐桌,强大的储物功能,良好的采光,让烹饪行云流水就餐津津有味。



大面积的亮白包笼着整个空间,选了同茶几系列的餐桌,带来视觉冲击,又与客厅互动。

大阳台的光线很好,全部采用强隔音双层玻璃落地滑门,室外的大面积植物借景阳台外的大树隔音吸尘。 定制了小型攀岩墙,大女儿基本每天都要攀爬两次,是她最开心的运动时光。业主开玩笑说,以后还能给弟弟玩。

二楼楼梯过道整齐的照片墙安静有序,等待家庭二宝长大后全家幸福的流光时刻。

休闲厅是家人最舒服的地方,可以在这里到处随意坐观电影,不说话也觉得温暖。背后增加了储物与书房功能,保证储物的同时,也更好的利用了空间。


主卧背后是外墙,原本老小区防水没有做好,内外重新做了防水后通过石材加以隔绝。床旁边放置了烟熏色梳妆台,通过不对称的设计找到视觉的平衡。



一单沙、一书桌、一台灯简单的放置在休闲区,业主喜欢在这里摆弄喜欢的拼图。

女儿房增加了衣帽间,床靠墙是为了给小朋友更多的安全感和活动空间。彩虹地毯和小沙发让整个空间更饱满、更具活力,可爱的软装配饰方便后期更换。


灰蓝色和铁艺是儿子房主旋律,酷炫的工业风充满了深邃且神秘的气质,搭配竖条纹的床品更具时尚格调。别致的床头灯,泛黄的灯光让漫长的夜晚充满了情调。


父母房于安稳、平和之中蕴含着岁月的包容。在高级灰为主调的色彩系统中,搭配线条感极佳的软包床和抽象画,使整个空间完美的结合,和谐而统一。



主卫

次卫借用打飘窗的面积增加了宽大的淋浴房,满壁镜柜暗藏灯带解决采光与储物的缺陷。



