本LOFT案例中,设计师在空间塑造中,采用了带有浓厚海洋气息的地中海风格,在一个内陆省会塑造出了一个带有浓厚休闲气息的装饰风格。设计师采用了清新舒适的色调,以迎合年轻居住者、特别是女性喜好。大面积的白色和蓝色,不仅很好的体现出原户型宽敞的面积,也突出了地中海风格浓厚的休闲氛围。
打破原有以直线条为主的空间格局,在装修造型及家具选择上,采用了很多柔和的曲线设计。这些柔和的曲线给人舒适、放松的感觉,打破了现代住宅给人生硬、冰冷的印象。



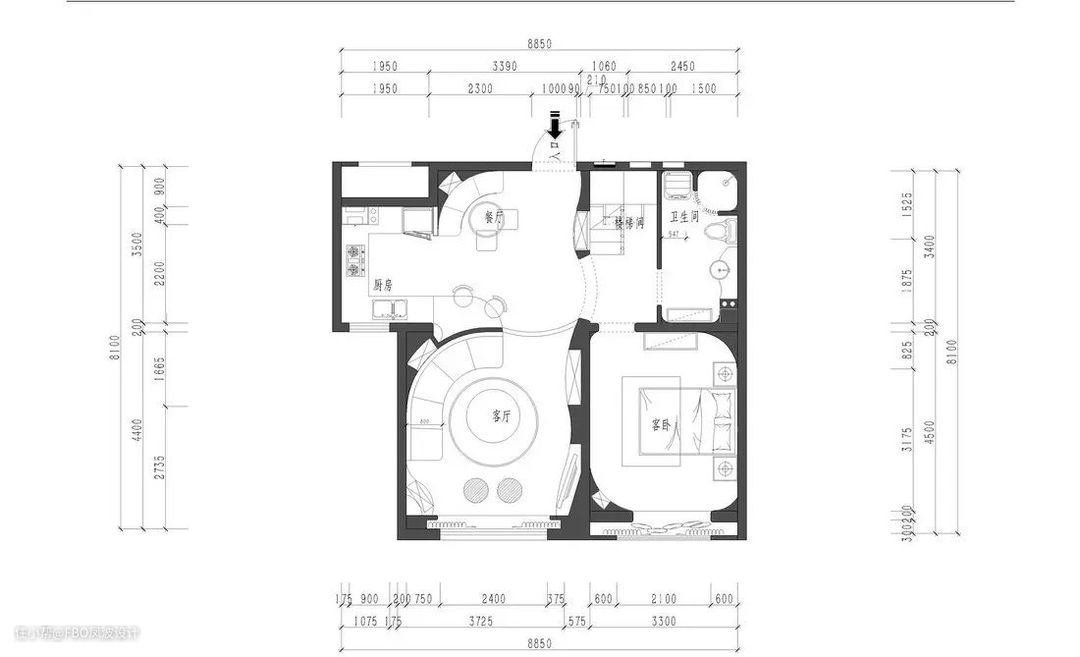
设计师把样板间的一层规划成为一个公共区域,除了带有大幅落地窗的客厅区域之外,还有餐厅、厨房和一个公共卫生间。设计师把餐厨区域合为一体,让空间显得更加通透。单独的早餐吧设计,更加丰富了空间的使用功能。




设计师把样板间的一层规划成为一个公共区域,除了带有大幅落地窗的客厅区域之外,还有餐厅、厨房和一个公共卫生间。设计师把餐厨区域合为一体,让空间显得更加通透。单独的早餐吧设计,更加丰富了空间的使用功能。



设计师在主卧室与楼梯相邻的墙面上,特别设置了一扇弧形的大窗。让原本封闭的卧室与整个二层形成“互动”,让空间的趣味性和空间层次感进一步加强。


通过一道漂亮的楼梯,参观者们可以到达样板间的二层。LOFT样板间的二层,则是业主家庭的专属区域,设计师在这里安排了主卧室、儿童房和一个客卧,以及一个家庭活动区域。在二层空间的处理上,设计师加入了一些温暖的黄色调,使整个空间看起来更加温馨和舒适。






浓重的海洋气息,也同样洋溢在卫生间里。水滴形状的镜子,是设计师精心挑选的。而白色的浴缸配以马赛克的墙地面,恰似一条小船停靠在海边的沙滩上。


所有空间配饰均为线下实体店面淘购,软装布艺是由本设计公司全部定制。

