与常规地中海蓝白清凉的风格不同的是,意大利的房子设计更钟情阳光的味道。阳光的午后和朋友们在自家的花园里饮茶,是多么写意的时光。可以舒服地感受意式慵懒。跟其他地中海风格一样,它的最大魅力,来自其纯美的色彩的组合,意大利的向日葵花田流淌在阳光下的金黄,具有一种别有情调的色彩组合,是自然的美感,漂亮花砖镶嵌、拼贴、木艺的装饰又带有细致华丽的美妙。

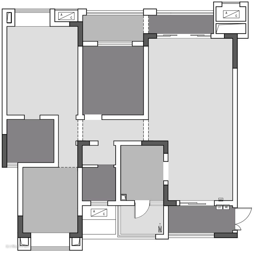
原始户型图

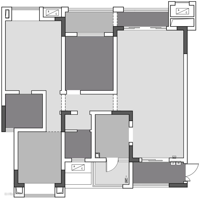
平面设计图

#入户玄关 #意式地中海
应屋主要求,将门厅隔断墙拆除,放置入户柜,作鞋子收纳和装饰物摆置,遗留的窗洞透过餐客厅,看向阳台,光线跳跃,明媚柔和。

#客厅 #意式地中海
门与半拱门、马蹄状的门窗是意式地中海的特点。拱顶的高度和跨度不受限制,可以让空间又大又高,设计师将阳台原装门拆除,以拱门风格赋予其新生,南意大利地中海的线条强调垂直的线条感,可以将空间衬托得高耸峻峭,屋顶的木梁与复古家具采用意式风格传统的原木色,有种哥特式教堂的内部空间高旷、单纯、统一感。

#客厅 #意式地中海

#客厅 #意式地中海

#客厅 #意式地中海


#客厅 #意式地中海

#餐厅 #意式地中海
餐厅的灵感来源于托斯卡纳的田园牧歌,暖色餐桌椅搭配植物作为装饰,贴近自然,墙上的挂画与餐桌上的鲜花相映成趣,让整个空间沐浴于自然之中,让餐厅区有一种乡村风格的舒适感。

#餐厅 #意式地中海

#餐厅 #意式地中海

#餐厅 #意式地中海

#餐厅 #意式地中海

#厨房 #意式地中海
生活需要个人的私密空间,但也需要沟通交流,尤其是下厨的时候,半开放式的厨房不仅仅承载传统的烹饪作用,同时也方便家庭间沟通交流。设计师将生活阳台纳入厨房空间,让下厨空间游刃有余,半墙的设计拓宽视野,推拉木门既能做木质装饰也能隔绝油烟,是一举两得的设计巧思。

#厨房 #意式地中海

#厨房 #意式地中海

#卧室 #意式地中海
意式地中海和后现代极简风格,两者看似截然不同,但当他们碰撞在一起,展现出的空间新颖而别致。纯色调的空间将复杂的装饰进行隐藏,细节之处尽显奢华与精致。复古的雕花木床,曲线优美的同色床头柜,意式风格明显的暖色床头背景,搭配后现代极简风格的墙面设计将混搭浪漫进行具象化,给空间增添几分艺术气息。

#卧室 #意式地中海

#卧室 #意式地中海

#卧室 #意式地中海

#卧室 #意式地中海

#卧室 #意式地中海


#卧室 #意式地中海

#卧室 #意式地中海

#卧室 #意式地中海

#卧室 #意式地中海
次卧的空间略小,设计师选用合适的家具尺寸,便于空间动线的流畅自由,同色系的衣柜与床体交相呼应,让人能够在这个空间里有效地释放出睡眠因子,能够得到良好的休息。简单的线条装饰,让墙面干净漂亮又免于单调匮乏。

#卧室 #意式地中海

#卧室 #意式地中海

#卧室 #意式地中海