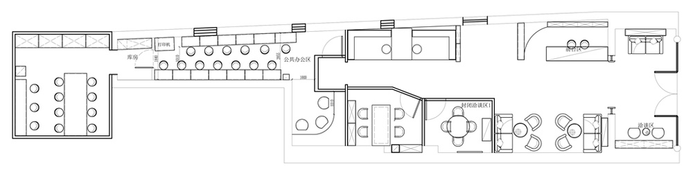
研筑国际室内设计事务所位于国贸、华贸往东800米的通惠河畔文创园,初见此楼就被它的位置深深吸,此建筑外观也是传统中式结构,但是是一个独栋配楼、面南朝北,南面是园区公园面对一大片生机盎然的绿色。紧挨着主楼,相比主楼的恢宏气势此楼确实是以小巧取胜,事务所大门口形成一个L型封闭聚气的吉口。此楼因年久失修视觉上失宠忧伤,陈旧的感觉,进入空间环顾四周,空间结构及形状较为奇特,进深大、动线很长,面宽有可拓展空间,也正是于此才正真打破传统办公场所的四方一览无余的老套刻板形象。正是这样的空间可以打造错落有致,和在客人洽谈时有隐私的感觉,另外办公区可以放在楼的最北端,便于设计师们探讨方案而不会打扰到客人。“拉进现实与艺术的距离” ,打造规划出一种现代主义、轻松、有格调的工作氛围环境。


由于整栋建筑较为传统,原始门头低矮、空间局促,low风扑面!在外观改造时果断采用大开大合的方法,3米5高的通透大玻璃,镶钛色不锈钢边框。让室内空间延伸到室外,室内室外浑然一体。门头和影背墙的发光字体简洁、明显又和协调,宛如一体。



门厅区域,简单的沙发、茶几、绿植来做搭配,让休闲家居感更为凸显,放松,营造零距离的视觉,改变并打破传统模式的接待服务。

一杯咖啡一本杂志,零距离聊天,彰显生活的气息,给人一种家的感觉,轻松而自在,话说工作室乃员工的第二个家。

前台LOGO墙采用弧形墙面的造型设计,正式这个巧妙的改造,让空间的呆板的形象全无,在区分功能时又能变得灵动活泼,让过往的客人能够一眼就看到。纯净白与经典黑的结合,彰显整个空间的干净整洁,又能让整个LOGO呼之欲出。



洽谈区域以卡座的形式呈现,试图营造一种咖啡吧的体验,喝着美味的咖啡,吃着悠闲的零食,倾听着设计师讲解设计方案,让客人沉浸在零距离聊天氛围之中。

整个空间以中轴为动线两边划分布局,来整合整体设计风格,贯穿全局点线面的连贯性,同时在VIP洽谈区采用大面积玻璃隔断,让空间通透之余又若隐若现。


书是艺术和文化的载体,此洽谈区就是要打造设计文化的氛围,让客人在书的气息中、在咖啡香气中、在轻松的氛围中,倾听着设计师讲解设计方案,让客人沉浸在空间美好构思中。

洽谈桌上的灯光饰品与大理石桌面镜面反光结合让空间简洁而悠远。让客人在倾听之余,赏心悦目美妙至极。

较为是私密性的洽谈区域,由于面积有限,又不想过于压抑,因此设计上采用大面积的通上通下的玻璃来做空间的新建墙体,视觉上内外关联,若隐若现,最大化拉近距离贯穿整个空间的设计。




施工工艺展示区,在地台上构建左右对称的工艺展示和材料展示,中间岛台居中,让客人了解工艺知识的情况下又能坐下来喝杯咖啡,静静听工程师细心讲解答疑解惑。搭配上还是统一沿用整个格调采用黑色线条的搭配大面积留白,面材采用大面积的玻璃来区隔,保持统一。正中是业主给我们满满的鼓励旌旗,让我们更加坚信我们的付出有意义。

洽谈区与办公区空间划分处的禅意小景,让设计师小伙伴们定下心来,静静构思,灵感顿现。
研筑国际的办公、洽谈区的改造项目融入了我们设计团队对设计语言的理解和对设计的热爱,在空间规划上实用而又富有灵动、合与分既不疏远又不亲密。在设计细节上通透之余若隐若现,在客人保护隐私和服务上真切细腻。 我们办公、洽谈空间的精心设计体现我们团队在设计上的用心和匠心,让空间自己说话,让设计来美化我们的生活,以设计为核心,做个有灵魂的设计匠人,是我们的最求。
