本案女主人从事美容行业,在25岁这年拥有了自己的一家工作室。比起大多数有着稳定朝九晚五工作的同龄人来说,优越的物质生活背后是看不见的辛苦付出与牺牲掉自己的私人生活。当她凭着自己的能力买下这套100㎡小套二时,她委托我们去帮她打造一个“有故事”的家。经过深入沟通我们从她喜欢的书、看过的电影中汲取灵感《天使爱美丽》由此诞生。在优雅与知性中带着些许俏皮、跳脱,我们希望在这个空间生活的她无论在25岁亦或25岁后的人生都能永远保持一颗童心,继续追求美好,热爱生活。
原始硬装基本没有做过任何改动,仅在厨房部分拆掉了生活阳台门厨房门改为玻璃推拉门,软装部分我们选择了金+绿+蓝,布艺方面选择了布艺+金属+木制。

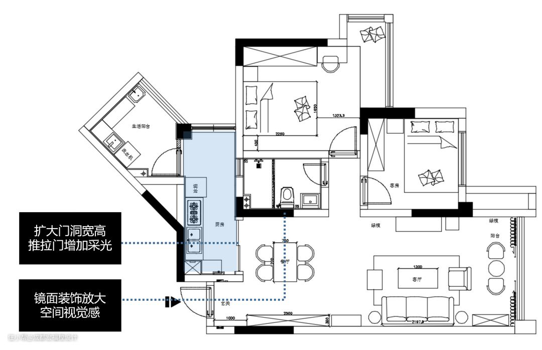
原户型图改动:
1.拆除部分厨房隔墙和门
2.扩大厨房门洞

改造解决方案:
1.厨房连通窗户,空间使用加大
2.厨房门改为玻璃推拉门,视觉更开阔

我们一直认为家的设计必须要有居住着的气质。根据对屋主个性生活方式的研究和色彩分析结果,我们选择了黑、蓝、绿、金为主配色,高级灰为基础色调。#客厅 #配色

我们抓取了女主人偏个人爱好的元素,比如:手感柔软的绒面、质感出众的黄铜、包裹感极强的单人躺椅等纳入到客厅空间。#客厅 #沙发 #茶几 #地毯

让整体氛围既有着博物馆一样的感官体验,同时又不乏带有生活气息的烟火味。#客厅 #沙发 #茶几 #地毯

客厅顶部选择了法式雕花造型搭配黄铜灯,成为客厅中不可忽略的一抹亮色。#客厅 #沙发 #茶几 #地毯

#客厅 #电视柜

蓝绿黄作为经典配色,无论采用何种材质配搭,也总能碰撞出不同火花。#客厅 #茶几 #沙发

粉色、甜品是所有女生的理想生活的标配,我们为她在客厅生活阳台一隅预留了专属她的“仪式感”。#阳台 #椅子 #植物

这个空间既是她的居心地又能成为朋友聚会的“秀场”拍照打卡自不在话下。#客厅#沙发#五斗柜 #地毯 #灯具 #植物

我们用顶部边顶造型划分客餐厅区域,彼此独立又相连。左侧客厅休闲区,右侧餐厅厨房区。#客厅 #餐厅 #石膏线 #吊顶 #五斗柜

在陈设部分,采用了由高到低的排列逻辑,指引视线聚焦到舒适的沙发本身。#客厅 #餐厅 #石膏线

从休闲阳台向玄关望去,浅灰色基调拉伸空间视觉层高。#客厅#沙发#五斗柜 #地毯 #灯具 #植物

进门后从玄关一眼望去视野开阔,哪怕不开光的白天也有充足采光。#厨房 #餐桌 #灯具 #定制柜

原户型餐厅面积较小使用起来较为局促,但是由于结构原因无法拆改于是我们采用和背后厨房推拉门款式一致的一整面十字格镜面,折射效果让餐厅视觉效果得以放大。#厨房 #餐桌 #灯具 #定制柜

餐桌后采用极窄边框玻璃推拉门,并且扩大的门洞,让客餐厅与厨房采光连通。哪怕不开灯的白天,也能和客厅一样亮堂。#厨房 #橱柜 #烟机灶具

#卧室 #定制鬼 #床 #床头柜

主卧的色彩相对浓烈,对称镜像让私密空间更具协调性。无主灯设计+床头吊灯设计营造出更容易安眠的氛围。#卧室 #定制鬼 #床 #床头柜

如果说衣帽间是每个女生的奢侈品,那么梳妆台就是每个女生的日用品。#卧室 #梳妆台 #地板 #定制柜

每天早起的仪式感就在这张小化妆桌延展开~#卧室 #梳妆台 #地板 #定制柜

梳妆台侧面为L型飘窗台,一个人时光可以在这里翻翻书看看电影,当然,还可以充当脏衣收纳区。妈妈再也不用担心我把衣服甩的客厅到处都是了。#卧室 #飘窗

次卧作为客房,除了偶尔接待客人很少使用。#卧室 #床 #床上用品

但视觉上为了保持与主卧风格一致,衣柜和吊柜弥补日常储物不足的问题。#卧室 #床 #床上用品

精心挑选的《戴珍珠耳环的少女》#卧室 #床 #床上用品

卫生间选择了质感出众的黄铜材质,在最容易被忽略的细节处也能感受到仪式感的存在。#卫生间 #黄铜元素 #镜子

为了风格一致性,包括地面在内的六角形瓷砖也选择了大理石元素,空间整体干净整洁。#卫生间 #浴室柜 #马桶 #淋浴隔断 #瓷砖

《天使爱美丽》 软装品牌 | EVITA、BESTWEST、FLENSTED MOBLIES、集木、涵客,如果要链接的记得给我留言哟 #软装清单

《天使爱美丽》软装品牌 | EVITA、BESTWEST、FLENSTED MOBLIES、集木、涵客,如果要链接的记得给我留言哟 #软装清单
