这是一个四口两猫之家,业主为了2个宝贝女儿上学,把家搬到了这个学区房。他们对于新家的期望很高,这个是一套朝向很好的小2房,有大大的南向阳台,在冬日里特别的温暖。设计的难点在于小户型如何满足一家人的生活起居,还有2个宝贝的日常生活学习,我们把空间重新整理,按照他们的生活习惯,收纳需求,重新规划设计,用灰粉和灰蓝,为他们打造了一个舒心的阳光暖家。

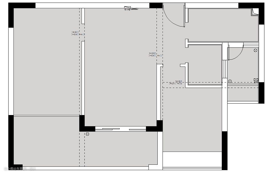
原户型是规矩的小2房结构,户型痛点在于:
1,大门直冲卧室房门
2,卫生间对于这个家庭太小了
3,餐厅及客厅空间狭小

户型优化:
1,把卫生间改成2分离,洗漱区外放,更有2个台盆,以满足这个4口之家的日常生活需求
2,外放的洗漱区背面形成玄关区域,空间感更好,避免大门直冲卧室房门
3,重新规划阳台区域,一部分纳入到客厅形成阳光学习区
4,把主卧重新调整设计,增加衣帽间增加储物空间
5,女儿房,利用飘窗区域,形成2个睡眠区域

玄关背面就是洗漱区,长虹玻璃的设计增加玄关区域的采光,也让空间更有光感。

玄关区域看向餐厅客厅,地面材质利用洗漱区的长度形成分界线,玄关用砖,客厅餐厅用橡木地板。


玄关侧面就是厨房区域了,通铺的灰白花砖连成一体,橱柜延续整体风格,用灰蓝加白色搭配

冰箱侧面是满满的这个家的美好

蓝白色系的厨房空间,简洁清爽

大门侧面玄关区是换鞋凳及鞋柜,跟着是餐边柜及餐厅,一体式设计的蓝色加白色柜体连同餐厅的卡座区,视觉整体感更好。

餐厅设计了卡座满足储物需求的同时,充分利用角落空间。

餐厅全景,餐厅侧面即是鞋柜及换鞋凳

餐厅及客厅区域,鱼骨拼橡木地板连着的是塞满暖阳的读书区

从洗漱区看向餐厅

客厅 餐厅 全景,通铺的鱼骨拼橡木地板很吸睛,脚感也非常棒


装饰画是家里的2只超可爱猫咪,是业主女儿亲手绘制


利用原有大阳台封闭做成了阳光读书区


客厅侧面用长虹玻璃间隔,后面就是2分离卫生间的洗漱区

洗漱区延伸整体的蓝白设计色系,双台盆设计,以满足这个4口之家同时使用的方便

卫生间区域设计的淋浴间及马桶区


灰粉的背景搭配原木,合着充满冬日阳光的阳台,感受着春夏秋冬的美好



哈哈,一定要给家猫一个镜头。太美了

踏一步即是洒满阳光的休闲阳台。撸猫

衣帽间定制化妆镜灯,满足这个空间化妆的特定灯光要求

衣柜的设计跟进宜家的产品(拉篮)特定设计,宜家的衣柜配件还是很好用的

2个女儿的房间是此次设计的重点,在有限的空间里充分出2姐妹的独享空间,利用飘窗区域,把床架高,形成足够的储物空间。同时满足读书空间及玩具收纳区。



整个屋子最好的景观阳台,在冬日塞满阳光的午后,或撸猫,或看一本书,享受着岁月静好



结语:
一个家,从设计到最终落地,经历了半年到一年的时间,遇见太多不可预见。
唯有坚持初心,才能最终落地,感恩业主的全程配合。
极力推荐的好物,我想肯定是整体空间的鱼骨拼橡木地板了---
颜值高,脚感好~~
