
业主给婧哥沟通她心中所想之后,当时非常惊讶业主如此独特的想法,在深入沟通后,为业主的大胆点赞,也许一种不一样的生活方式,为平凡枯燥的生活,揭开不一样的面纱!好!真是好… 那么这一次不一样的挑战即将开始~ 我们先不说是什么风格,看完知真相… 特别说一下在前期的沟通和后期的方案落地实现 业主方给了设计师足够的发展空间,以及绝对的信任 让这样一个全案得以完整呈现 再此要特别感谢业主的信任和支持:也许这是你曾无数想起的画面,也许从此刻开始,你从这样非比寻常的家里,会看到让你同样为之心动的角落…生活就是从每一个不一样的细节,开始发生令人心动的变化

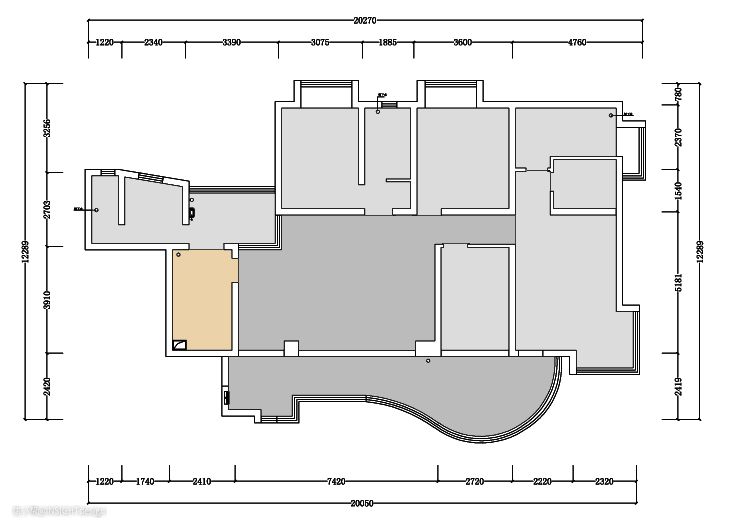
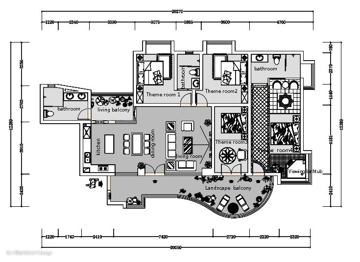
原户型来说,相对方正,浪费的空间不多。首先需要处理优惠客厅空间,电视背景墙,处理安排好餐厅的布局。其次,公共卫生间的异形处理,让空间得到合理利用。最后就是保留利用好房源地理位置带来的视觉享受。

根据业主的意思,此房源仅作为休闲房使用,因此接下来进行的功能空间布置,有大胆,有保守,首先业主要求保留住完整的观景效果,因此阳台不允许封闭做其他功能,仅希望运用为观景阳台,其次不改变户型原始结构,那么设计师结合业主的想法,并且物尽所需,在保留了四房以及三个卫生间的功能需求的基础上,做了空间优化,客厅的改动主要是厨房,偏小不利于餐厅的布置,因此做了开放式处理,从而又能达到空间更宽敞的视觉。链接客厅的两个卧室仅是扩大了每一个房间的基本空间,把其中一个房间的门洞改了位置,让出过道放给了从阳台进入的小房间,作为休闲以及客房所用,主卧最大的房间做了一个突破的尝试,加入了靠窗浴缸,作为最大的惊喜🔲

先上几张装修前的户型照片


现在从客厅开始:客厅是做了偏港式的搭配定位,主要是色系,软装,陈列都有特意往这个方向靠拢。 这里说一下地面的情况,因为考虑港式效果,特意选了偏复古一系的地砖,因为造价的原因不能选择实木拼花木地板,强化木地板隐患比较多,一般水泥师傅的手艺不保证强化木地板的平整度,会有空壳的位置,后期热胀冷缩会引起返工,因此选用了砖面,值得高兴的是,现在能满足画面效果的材质都越来越好了,基本都能满足我们设计需求,所以用砖也是相当不错的考虑方向。避免麻烦。


关于墙面的造型,是现场定制的,是婧哥为过度两道房间门的存在而设计的,重点是将劣势转换为优势!是整个客厅最有小心机的两个地方。关上门就如同背景墙一样主要是,为客厅做点缀加彩。

客厅的墙面做了上下墙拼接,为了过度的更自然,特意选了有相同元素的花纹腰线做衔接。颜色是用的现场造型家具一样的色彩漆,相维和又不张扬。

进客厅就能看到陈列背景展示,从捷克人肉带回的香槟红酒杯,深圳展会寻觅的装饰品,自己设计做的家具,木制品。实际操作复古原味,用港式作为灵感引子,牵引出整个色调和所有的内置搭配,其中还用到了茶色的长虹玻璃,这个看不到后面的图,可以大家去发现一下



一半厨房一半餐厅,做饭与看电视,做饭与家人互动,相互不耽误,有爱的生活常态










亮点介绍:餐厅旁的胡桃木百叶,为了迎接阳台进入到家里而准备的。拒绝阳光我一直以来就觉得很可惜,充分利用一进门的餐厅玻璃墙即是背景造型,又保留采光的优点


小白砖,上下拼➕定制腰线=独树一帜的混搭风格


公共卫生间,做了三种拼接手法,质感漆,纯色砖和仿石材咖色砖







【布达佩斯大饭店】:看了这个电影,截图了我整个作品适合的元素和配色,作为灵感所用。

特别喜欢这个截图里面配色以及造型的搭配。

上下墙的拼接,是让婧哥特别倾倒的惊喜点。



用到这个颜色搭配的时候,设计师婧哥是被电影【布达佩斯大饭店】里的火车内饰以及一些房间色彩洗了脑,因此找了点喜欢的元素搭配,那一整面的绿色,是在选材时发现的,元素有点像玛瑙花纹的,直接达到一个让人诧异的视觉,为了搭配效果,选了黄色搭配视觉冲击,其实怎么选择都不重要,通常被广大群众看不懂的,我们都可以用艺术来形容🙋🏼♀️ 主色;【深褐色】 提亮:【绿色+姜黄色】



一个让人欲搭配红酒论故事的风格,做了和主客餐厅搭配的风格调子,让整个空间不会混乱,与之前发的两个房间的风格完全不同~对于重色的混搭。 主色;【纯黑加+深褐色】 提亮:【绿色+黄棕色】 比较稳重又不失掉独特。












在业主的需求上加入了婧哥的扩展,为了实现摩洛哥式体验感!单从地理环境分析来了解,摩洛哥位于非洲西北端,东接阿尔及利亚,南部为撒哈拉沙漠,这么一看来,捻取了一小部分,从沙漠这个点散发,结合天气-部分地域,走了橘色的调子,再用同色系软装及其主材的为其主题做搭配,恰巧空间小,特别能把小情怀的调性体现出来。开门即面朝南滨路的夜景。












回味两分钟,在主材的选料真是焦够了,坎坷的心路历程。在有限的主材情况下、去挖掘适合的主材的更多的可塑性!烧脑随时进行着~最终在各种困难下,保全!延续!高仿—摩洛哥风情的另一面,置身于大自然的鬼斧神工之地。植物➕迷你游泳池的两大特色,为整个房间创造了超乎想象的惊喜。并且此定位两大主要色系,绿色➕白色作为贯穿整个空间的主体灵魂。很符合摩洛哥那万人为此倾倒的风格,池边就是南滨路的大夜景,视觉冲击力还是比较强。














拥有一个大的景观阳台在加上搭了一个吊椅。


因为时间问题没有来得及拍夜景,但是白天的景色已经足以让人想象夜晚的精彩了




独坐窗旁,看夕阳荡漾水中,散发出金色的光芒给到你放松很慵懒的状态,温馨又从容你是会全身心的去投入然后享受这样的景色它带给你温暖
