和我们高妈妈认识真是一段妙趣的过程,19年6月我们去市中心另外一个双学区房市政府宿舍小区测量房屋,高妈妈也在家里,原来她家还租住在市政府小区即将搬走,经过市政府宿舍小区房主董总的介绍引荐认识了,并互加了微信。一个星期后高妈妈联系了我们,也就有了我们这段美好遇见和愉快的设计落地过程。
创作建议:基础装修部分7万+主材7万+软装家具6万,总投入20万。

本案是市中心的一套学区房,也是老破小区,两室两厅一厨一卫86平房,好在整体结构是框架结构,有部分的墙体可拆除。来看看当时去现场量房的照片。

本案户型的层高只有2.615米,且客厅和过道这两个大梁下来有51公分,去量房的时候过道的顶和梁是触手可及,很压抑,这个也是本案设计的难点。

这个是原始的两个卧室。老小区的集中供暖管道和水管都是铁管。

卫生间和阳台的原始照片。接下来我们先看下平面布置图。

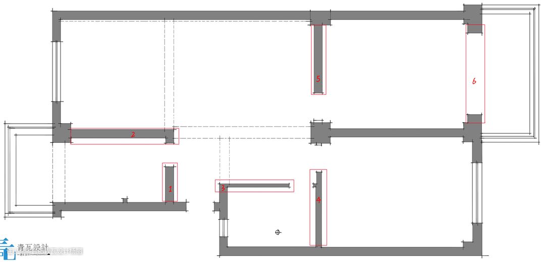
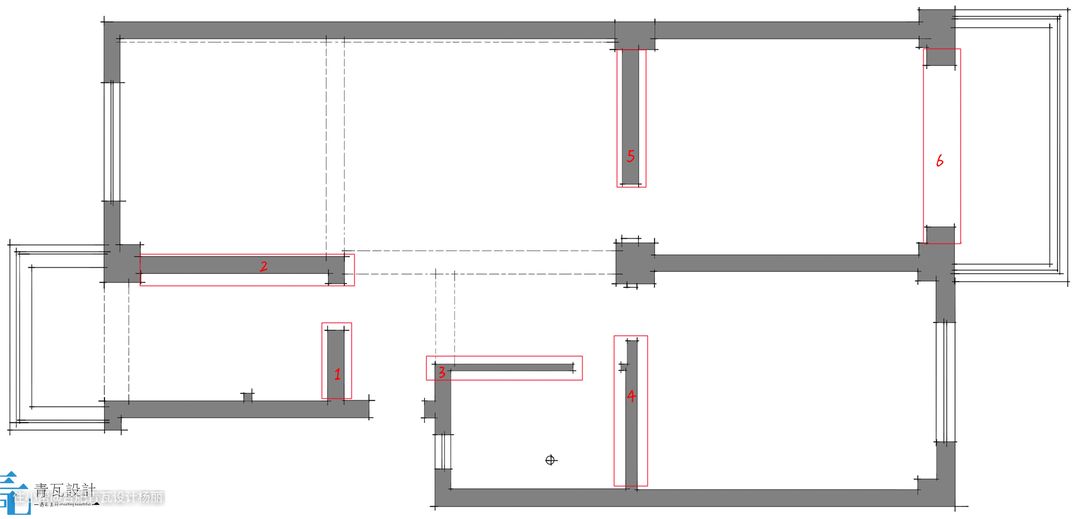
平面解说
人口结构和要求:金主家是一家四口,两个宝宝,一男孩一女孩,要求是每个宝宝有独立的学习和休息的空间,尽可能多的收纳空间,温馨舒适。
对照原始图做了以下的结构改动。
1、进门左手边的墙体拆除,利用空间做成了进门的鞋柜,把厨房门做成单扇吊轨门,内推到鞋柜和冰箱中间。橱柜灶台区与洗菜备菜区落差10公分设计。
2、厨房跟小孩房相邻的墙体拆除,用小孩房的一体的衣柜和书桌书架代替隔墙,背面与柱子拉平。利用了墙体空间增加了收纳空间。
3、餐厅很小,没有收纳空间,把卫生间的淋浴区的空间让出一部分,既给餐厅留出来个餐边柜空间,又不影响卫生间使用。
4、原始的卫生间使用顺序颠倒,极不方便,空间又小,把女孩房跟卫生间隔墙往后退了30公分,把为卫生间做了干湿分离,既让卫生间的使用更方便,又增加了餐厅和过道的面积。
5、客厅和男孩房的分割用了四扇移门,保证了客厅的采光和通风。把客厅和主卧室的隔墙拆除后跟主卧室做了背靠背的柜子,省去了隔墙的空间。
6、阳台门框,原始的很宽,占用了阳台很大面积,拆除后用轻薄的移门代替,使阳台面积扩大,多了更多收纳空间。接下来我们看看实景效果。

原木色元素充满着整个家,地面是整体实木多层鱼骨拼原木色地板,家里所有柜子是我们施工坊师傅现场打制的,柜门和敞开区贴面用的是科定木皮。 沙发墙后的L型线灯是利用原来的大梁凸出墙面8公分的层次加上木饰面边框做成的。 有了灯光让沙发墙变得更生动。

我们看下本文开始说的大梁的处理,客厅的大横梁,底部用木皮包两边多出檐口,放置灯条,用灯光和木饰面弱化整个梁,过道顶做了斜顶的处理,跟大梁的衔接处留下15公分反光灯槽。让过道顶面更多了层次感,拉伸层高。

客厅没有电视墙和电视,在大梁上预留了投影幕布,平时,沙发区域就是个小的阅读区,沙发旁边的柜子是个书柜,因为女主要求家里显得整洁和好打理,书柜都做了门,预留一个中间的区域放置常用书籍。一家人在这里看书聊天,孩子们说说学校发生的事情,周末一家人窝在沙发看个电影,这个场景想想都很温馨了。


给沙发一个近景,原木色给人感觉温馨、舒服。

这个角度能看到男孩房的四扇移门,玻璃用的是长虹玻璃,边框是三公分窄边框,厨房门跟男孩房的移门保持一致。



餐厅内嵌餐边柜很好的解决了餐厅收纳问题,预留插座手机充电或者吃顿火锅都没问题。每个柜体有内嵌了灯条。

主卧室衣柜现场打制,科定木皮贴面,铰链选择全盖的,柜门离地面一公分,门关上之后看不到任何边框,拉手也是选择黑色极简风,看着就是舒服。床头颜色选择了朱砂红,这个有点复古有点抢眼的红色,效果有点惊艳。


朱砂红背景配这个复古的玻璃小吊灯,如果搭配一款复古点的铁艺床,可能效果会更好。每个作品中总会有点遗憾。




女孩房整体墙面是石灰白的颜色,淡淡的温暖的感觉,靠窗边的长条书桌,两三人一起看书学习也没问题。

卫生间干区也延用了主卧床头的调色,给这个采光不足的干区卫生间增加点活泼氛围。干区用了黑白灰六角砖跟地板衔接自然。

墙面哑光灰色搭配地面的花砖,橱柜是整体定制的。


阳台,一边是浣洗区,一边是收纳柜。 实景照片分享完了,我们来点过程中的花絮。








好了这次设计分享就到这告一段落了,愿一直支持合肥青瓦设计的朋友们善友吉祥如意!
