项目类型:二手楼梯房
项目造价:硬装27万,软装5万,定制柜体8万
项目地点:广州市越秀区水荫直街
设计单位:广州市诺壹空间设计有限公司
常住人口:3人
业主职业:女:花艺师,男:船航业 ,小孩:男6岁
业主述求:二手房,需要重新打拆成毛胚再设计,整个房屋主要是女业主对接我,对房屋有较为明确的要求:
1/空间干净;
2/有足够多的收纳空间来放杂物;
3/满足丈夫偶尔在家办公的情况;
4/厨房需要足够大;
5/卫生间因为建筑原因无法做2个,需要再原有的卫生间基础上改成三分离;
6/不需要电视,希望家庭互动更多一些。不需要太多的装饰性摆件,能满足基本风格表达以及收纳要求;
7/进门需要有遮挡,不能一望无际看到客厅餐厅全景(女业主对玄学上有这么一点要求)。

↑▲↑ 原建筑平面图存在较多问题需要优化:
1/客厅餐厅占总面积比例失调,只靠餐厅位置的小阳台有光线,采光较差,白天不开灯,基本上是非常暗的;
2/房间1的功能性较单一,其次也影响客厅采光;
3/厨房使用面积较低;
4/相对三房户型而言,单个卫生间对于使用上也是非常不便;
5/房间3的阳台作用不大,也影响了房间的采光率。

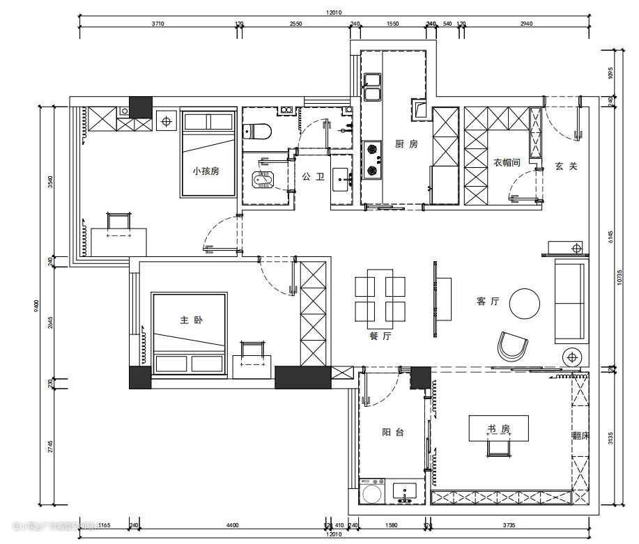
↑▲↑ 业主达成共识的最终平面图:
1/进门的区域,增加了玄关的换鞋区,以便进门更换鞋物的地方。
2/进门正对的造景位置是满足业主的需求,形成玄关与客厅之间的过渡空间,为了尽量不影响空间尺度,没有做太多的造型,利用半通透的卷帘作为隔断,可收可开。通过单头吊灯和花艺形成进门的一个造景,也是可以平常进门放钥匙的位置。
3/为了节省空间,鞋柜后没有砌墙,利用柜体在后方设置了“衣帽间”区域,增加了足够的收纳性来满足日常不常用的衣物/行李箱/杂物等等。
4/客厅与餐厅之间没有摆放电视,也没有传统的电视背景墙,利用半通透的屏风作为分隔,以及摆放五斗柜可以作为平常摆放小朋友玩具的地方,不会搞得到处都是乱七八糟的。
5/把原来的房间1改成了开放式的书房,墙体拆了,做成通透的玻璃推拉门,这样就可以把原来的光线,引到客餐厅,解决了原来采光差的问题,更重要的一点是,在忙碌的生活中,家庭的相处时间只有短短的3-4小时,能让书房与客餐厅产生更多的互动,哪怕不说话,哪怕一个眼神,能看到对方,也会对家庭关系起到重要的作用,也就是我们题目所说到的“爱升华”,这个问题不仅仅呈现在这个位置,基本上能做通透的位置,我们都不会做墙。而这个书房还有一个作用是卧室,我们在墙上做满了收纳柜,其中有一个是翻床,可以满足长辈周末或偶尔过来可以有地方睡。而原有的推拉窗我们增加了窗帘,可以解决书房变卧室时私密性的问题。
6/把原有的生活阳台打通,直接做成厨房,增加了足够多的厨房操作空间与收纳空间。
7/卫生间改成了三分离,可以满足多人同时使用的状态;除了三分离,还增加了一个蹲厕的功能,这样可以满足女业主不喜欢外人使用她的座便器的“洁癖”要求。
8/小孩房选择了采光较好的位置,在尽量满足有更多的活动与收纳空间的同时,我们把房间门也改成了磨砂玻璃的,希望可以让光线也引导公共空间当中。
9/主卧增加了足够的衣柜,其余位置均放空放轻松,松紧有致。

↑▲↑ 换鞋区位置,鞋柜底部镂空,以便更换拖鞋。而造景位置上摆放女业主设计的花艺花瓶,也可以放钥匙放小物件之用,左侧墙体增加了挂钩,可以进门就挂一些不洗的衣物或围巾。
#玄关 #鞋柜 #挂钩 #日式 #原木 #壁灯






↑▲↑ 改造后客厅空间表达非常干净,因为女业主是花艺师,而业主倾向于日式的风格,所以整体以日式+莫兰迪点缀的色系作为主题,呈现一种宁静而富有内容的环境,客厅没有多余的物品。而书房的收纳柜,足够满足家庭的杂物收纳。而书房墙体拆掉以后,客厅的光线及空间感比原有的好多多多多很多了。
书房灵活性很高,既可以通透,也可以通过窗帘开合保证私密性。
客厅和餐厅之间,通过柔纱屏风来分隔,既满足空间分隔,但不会影响到光线和空间感;五斗柜用来放小孩的玩具。

↑▲↑ 客厅和餐厅之间,通过柔纱屏风来分隔,既满足空间分隔,但不会影响到光线和空间感。





↑▲↑ 主卧,还是表达宁静干净的感觉为主,除了一个画,没有任何多余的装饰物。但足以表达主题和统一整体色调
衣柜藏与墙体,统一白色,像一面隐形的“墙体”
墙身安挂可以放书的收纳架。



↑▲↑ 小孩房空间图,希望通过局部的跳色点缀,能活跃小朋友的思维。
升降书桌满足小孩长大的过程的高低使用变化



↑▲↑ 书房墙身均为收纳柜,而靠翻床侧做了玻璃柜,满足男业主摆放书籍的需求,空调挂机藏于柜体内,不影响日常使用。



↑▲↑ 卫生间改造前现场图片。

↑▲↑ 改造后卫生间浴室柜位置,增加足够的收纳空间,整体都是以白色为主。


↑▲↑ 改造后淋浴间位置,整体都是以白色为主。













↑▲↑ 书房柜体

↑▲↑ 书房柜体

↑▲↑ 鞋柜柜体

↑▲↑ 衣帽间柜体

↑▲↑ 厨房柜体

↑▲↑ 主卧柜体

↑▲↑ 儿童房柜体
Q:装修过程花了多长时间?
A:软装1个月,硬装4个月,
Q:说说是什么给了你灵感,打造出现在这个作品的?
A:女业主的职业以及对风格的理解。
Q:你对这套作品最满意的地方在哪里,为什么?
A:满足了业主的收纳性以及墙体打拆以后产生的空间的互动性。
Q:对平面布局做了哪些优化改动,为什么?
A:做了非常多的优化,再平面图上已详细留言表达。
Q:在整个装修设计期间遇到最大的挑战是什么?
A:80年代的房屋结构复杂,顶层出现漏水渗水,楼梯房导致很多成本的增加。
Q:回头再看这套房子,设计当中有什么遗憾的地方吗?
A:在造价有限的情况下设计没太大遗憾。只是软装摆场后简单的用手机拍照,没有用相机很好的拍照,非常遗憾。
Q:为了满足客户的个性化需求,你在设计过程中做了哪些事情?
A:增加了玄关屏风的过渡空间,其他没了,非常感谢业主给予设计师的权力空间,才能很好的把控项目落地。
