
「阳光-生活」
如今大多数人的家不似法国宫廷,没有那么多仆人可以使唤,也没有大宅门里的那份威严气派,更没有意大利绅士极简的断舍离精神。咱们的生活不过是在温饱之外拥有点点情怀。
业主对储物空间要求比较高,色调希望是简洁温馨的。平常三口之家,父母偶尔会过来,对材质对环保和品质有很大的要求,所以在选材上都非常严谨。
喜欢小猫,所以在地下室最佳的温室里有两只可爱的小动物,这也是他们的家。


负一层对比图


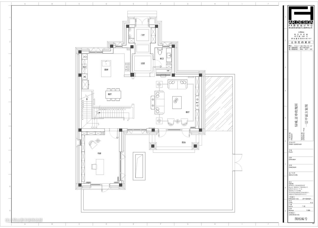
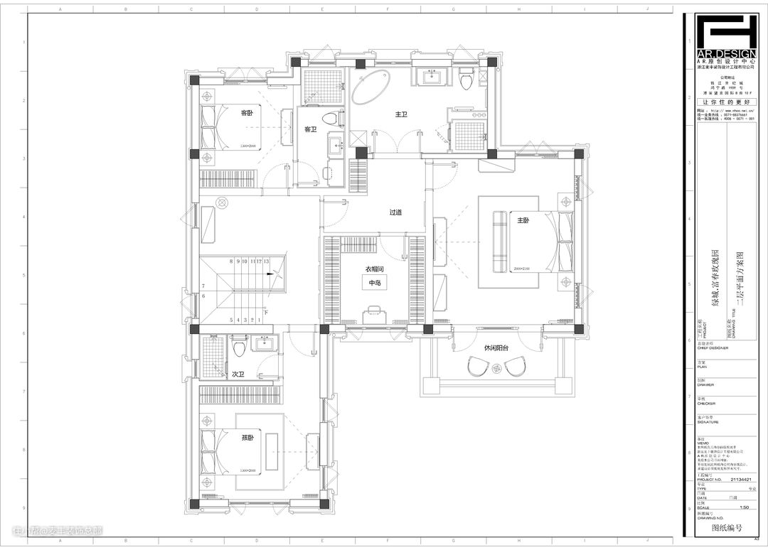
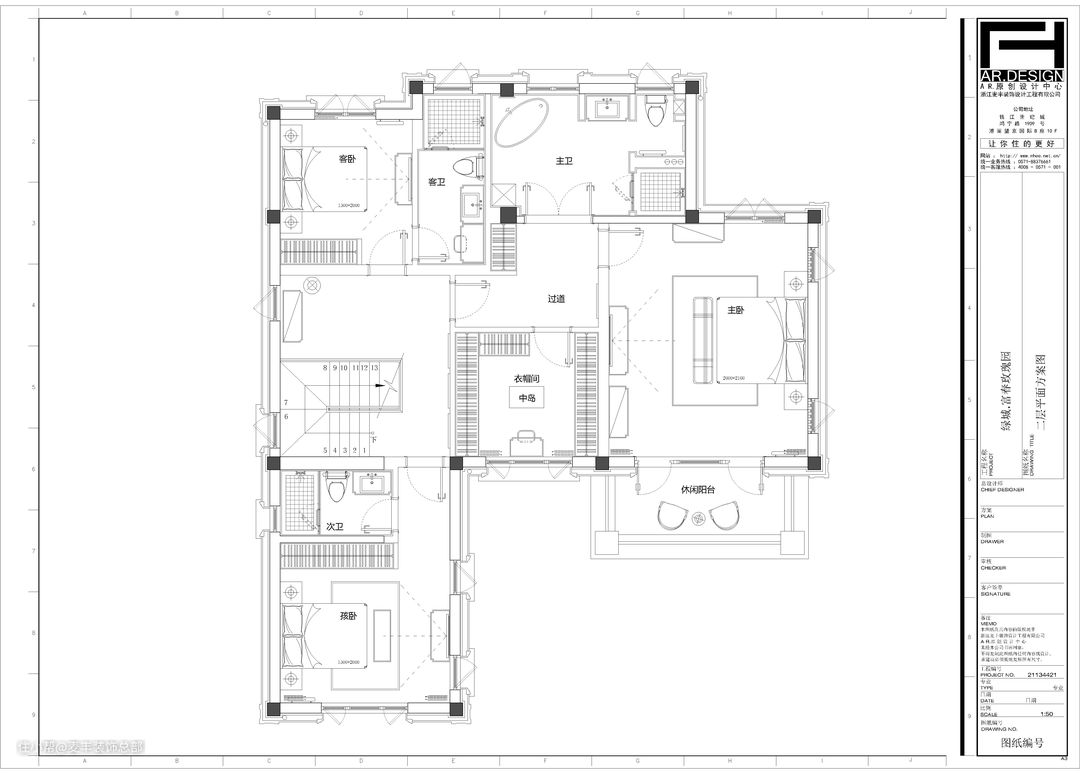
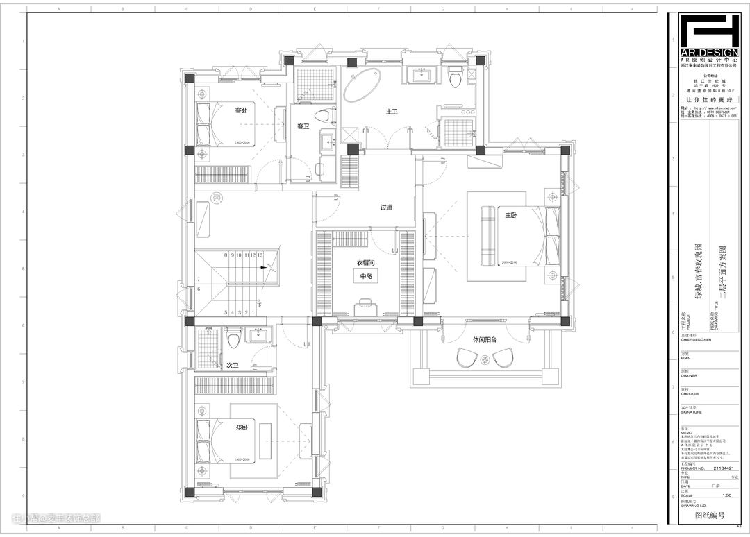
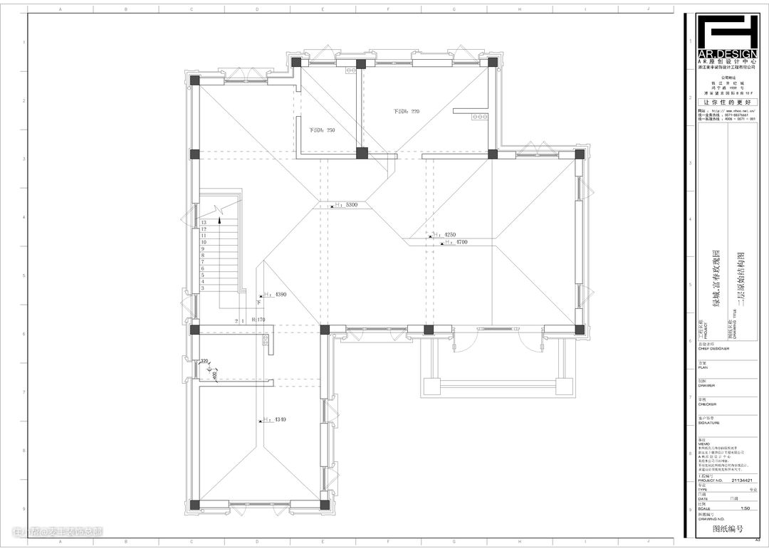
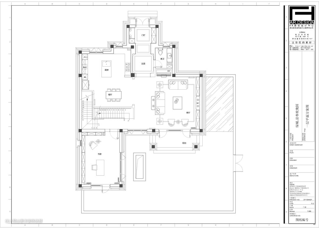
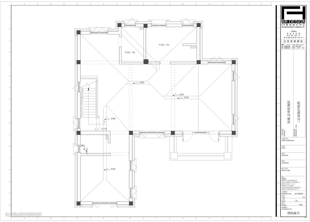
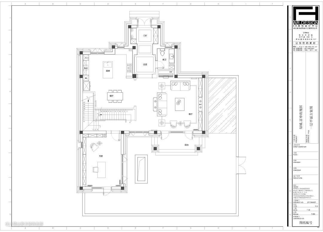
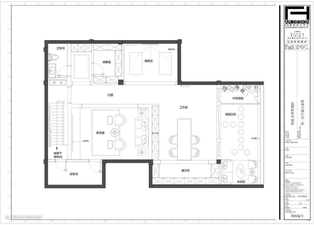
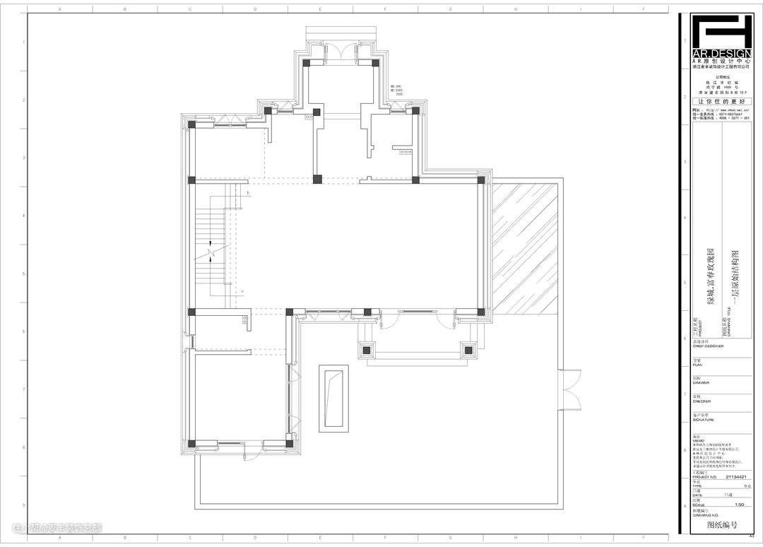
一层对比图


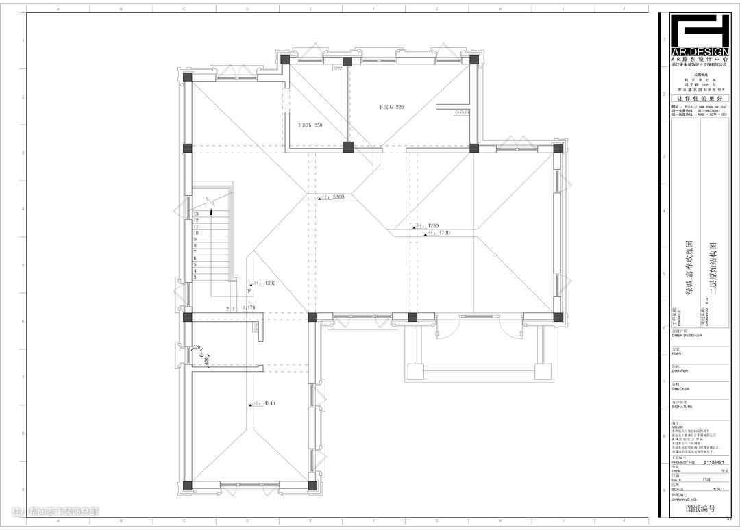
二层对比图
在一楼生活区做了特别大的改造,做到了每个区域之间的相对独立,但又不封闭,中西厨的合并和餐厅的便捷性及方便性,上下楼梯与各空间之间的合理衔接,但又不影响每个空间。
美式家具就是让人感觉岁月宁静安好。对比下来,中式太板,法式太重,北欧太轻,意式太净,而家是个放松的地方,家具为我所用,自然不需要太多束缚才好。
将原有的天井做成了阳光房,即满足了地下室的大部分采光,又保证了最大量的自然通风效果。因是主要的休闲区域,故设置了敞开式的影视厅,健身区,手工区及温室花园。

茶室与阳光房以禅意的原木家具装饰,与整体美式风格可以兼容。开放的设计将假日温暖融入房间的每个角落,让宠物在阳光下自由呼吸。

在整个美式门厅的打造过程中运用了大面积的浅色搭配,使其简洁大气。
独立、高贵、自由,如主人对自己的生活诉求一般,玄关的存在仿佛将我们的生活带领向一个更加富有生命内涵的层面。

在客厅创作中,设计师糅合了古典与现代的元素,完整展现了怀旧文化,自由不羁,高贵大气,充满了浓郁的经典美式情怀。

客厅设置了壁炉和钢琴,没有设置电视机,半围合的沙发摆放营造了一个即稳重又休闲的起居式客厅。

严格苛刻的选材标准让居住环境更加安全环保。精选橡木背景墙柜,用特殊工艺让木纹自然的保留。将理想的颜色通过多次的擦拭,使之嵌入纹理当中。

每一件器具都包含着对历史眷恋的怀旧情感。摒弃奢华的表达,家具都采用传统式样,风格简约大气,温馨优雅。

客餐厅交界处采用简欧式门框。吊顶、橱柜、墙地面协调统一,开放式的设计让两个不同的空间有了更好的情感交流。

厨房空间用明亮跳跃的色彩给主人营造愉悦的料理氛围,中西厨的合并让功能更加完善。

一楼的美式书房以简单实用为主,无过多华丽的装饰,用最天然的原料配合整体木作,给人营造沉浸式的阅读氛围。

设计师对原本的楼梯进行重新规划,使上下楼梯与各空间合理衔接,但又不影响每个空间。
顺着顶面原有的坡度。以木饰面制作人字吊顶,丰富空间层次感,也不会让人感到压迫。


主卧设计以实木为主,经典简约的线条造型强调美式家具的质朴与舒适。
空间开阔,采光良好,顶面延续原有的结构加以斜坡式吊顶,使空间长宽高更为和谐。

为营造复古雅致的睡眠环境,深墨绿色的背景墙在整个空间中起到了很大的作用,使整个空间更沉稳,不漂浮。

纱窗微垂,斜阳入室,奶咖色的巧妙搭配让空气中漂浮的光都暖到了极致。安静聆听,是生活在浅浅低吟。

双开门设计令起居生活充满仪式感,主卫砖墙延续了主卧背景色系,使两个空间相呼应。独立式浴缸很好的规避了传统内嵌式的厚重感,让整个空间更为灵动。

项目地点:富阳.富春玫瑰园
项目性质:全包
项目面积:600平方
项目风格:美式风格
设计师:麦丰国际设计 曹登峰
主要用材:整体木作,墙布,木饰面,壁画,PU线条,大理石,进口涂料等
装修总投入:硬装180万、软装60万、设备30万(丹麦进口富乐阁乳胶漆,本杰明进口涂料,意大利进口蜜蜂砖,原木实木,HARBORHOUSE家具)
