本案位于上海浦东新区,是去年交房的最大型的毛坯小区之一。 本案建筑面积为190平,虽然面积不小,但是户型并不是特别方正。设计不仅改善了整体的布局,而且特别在色彩的搭配方案上花了非常多的心思,既活泼又不落俗套,清新又不做作。
业主家是个典型的2娃家庭,常住人口五人,家中物件较多,也喜欢囤货,偏爱简洁明亮的风格,同时要满足两个孩子有足够的活动空间,功能性上需求较高。

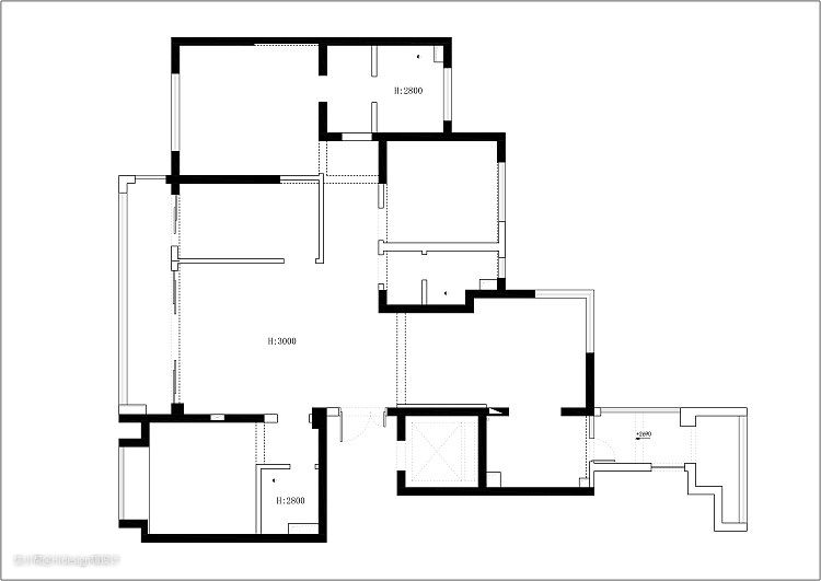
原始户型的面积并不小,但是存在几个明显的缺点:
1.玄关+过道的面积占用较大;
2.厨房面积比较小,无法满足家人需求;
3.原始户型规划的储物空间不够多;
4.客厅+书房+阳台的区域分隔较多,和家人使用习惯不符

根据上述的户型缺陷,设计团队做了如下的调整:
1.利用原本比较鸡肋的玄关和过道的区域,设计了电视柜(归属客厅)+双储物间(衣帽间+储物间)+西餐岛台(归属餐厅),实现了多种功能需求;
2.工作阳台部分并入厨房,扩大厨房的可用空间;
3.拆除书房的隔墙,同时将阳台并入客厅,沙发横向设置,最大化客厅的视觉效果,满足一家人尽可能在一个空间下生活相处的功能需求;
4.因为衣帽间功能部分外移至玄关区域,腾出额外的空间给了主卫,因此原本不够大的主卫,可以同时满足浴缸和淋浴的双重功能,宽敞舒适

玄关区域整洁干净,隐藏了鞋柜,鞋柜背后就是外移出来的衣帽间,放置比较常用的日常衣物。

玄关右侧区域则是额外的一个储物间,放置日常使用的杂物,容积超大,进深也足够,而且开启方便。

拆除了书房隔墙和阳台移门的客厅,看上去比原本的格局要宽敞大气,光线也好了很多。

在原本阳台的位置,有一根支柱属于承重结构需要保留,因此利用这根柱子,做了悬空的装饰置物架,避免了柱子比较突兀的不平衡感。层板在设计和施工的过程中进行了反复的测量和定位,选用了高强度的五金件,对安装的工艺要求相当高。

沙发后方还设置了一排低柜,避免了沙发置中悬空的格局,还兼顾了储物功能,低柜还能方便小孩子拿取常用的物品。

左侧的电视机柜和背景墙因为该处原本没有墙体,完全是依靠板材构建起来的,对施工工艺和构件要求较高,在各方的通力协作下,成品完美的实现了功能需求。

客厅宽敞明亮的最大好处就是方便了家中小朋友的玩耍,整个客厅都是小家伙们的游乐场,自由自在,好不惬意~

晚上灯光下的色彩又有自己的一番滋味。

和这面墙体连接在一起的就是一个餐厅料理台,方便家人备餐和做一些简单的清洁工作。

餐桌设置在L型的窗边,明亮通透,在对角的位置选用了轻巧的角柜,兼顾了美感和体量上的平衡感。

这个角度上就能看到餐厅的明亮度,如果将百叶帘开启,窗外的风光直接可以一览无余~

厨房区域连通了原来部分的工作阳台,轻松容纳大量的厨房电器。

因为收纳空间足够,平常不使用的时候,台面可以保持整洁如新。

本案大部分空间都是选用了简单干净的纯色饰面,但是在主卧这个区域,选用了稍微丰富一点的颜色搭配,因为此处的阳光实在是非常棒,阳光洒进来的感觉相当的舒适,配合这个背景,有那么一点在热带度假的感觉。

在正对着床头的电视墙区域,则依旧是遵循简洁干净的风格,对睡眠有很好的帮助。


隐形门内侧就是卫生间

卫生间区域因为衣帽间的外移,拓展出了足够的室内空间,干区+浴缸+淋浴的结构,做到了另外一种的三分离。

浴缸设置在了光线最好的区域,墙面选用的是比较少见的琉璃砖,铺贴上对工人的手艺有很高的要求,为了美观,在美缝剂上也是选用了半透明材质的美缝,以最大限度的突出砖体本身的质感。

另一侧就是独立的淋浴空间,配合兼顾造型感的毛巾架,自有一番味道。

儿童房就是两个小朋友的天下了,给两个小家伙添置了一个帐篷,供她们用来私人会谈~

儿童床放在窗边光线最好的位置,看看这两个小家伙,是不是很自在啊~

另一侧则设置了大量的储物空间,放置小朋友们的衣物和玩具,再多也不怕啊~

次卧的配色上考虑到老人家的喜好,灰色+大地色的配色让空间沉稳又不失活力。

同样在这里设置了大量的储物空间,让每个家人都有自己的一片储物天地。






