本套房产是由父亲送给儿子的婚房,而小吴自己也从事相关工程设计工作,因此在选择装修公司时,除了设计方案,他还在意装修公司的沟通、施工和质控能力。 在签订装修公司前,业主父子二人对格局改造已经开展过多次讨论,后面再加上设计师锦上添花的改动,才让我们看到了一个成熟科学的案例。
28万


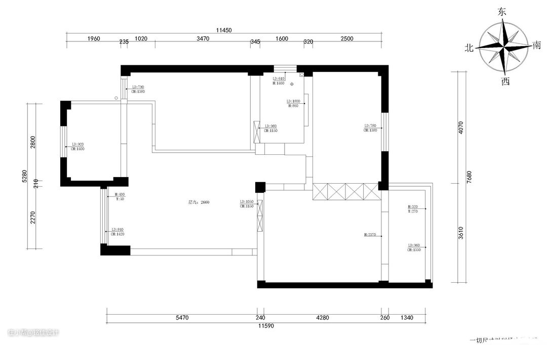
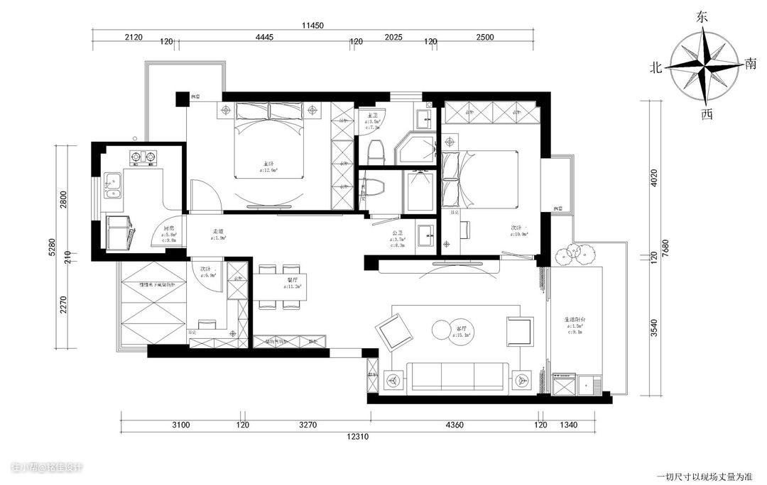
虽然房子面积不是很大,但是由于经过设计师的巧妙空间设计,将主卧改成客厅,结果却让每个生活起居空间都拥有了充足的光线。并且原本只有一个卫生间,使用起来非常不方便,而现在有了独立的两个卫生间,空间利用更加合理。格局已经定案,设计师就把主要精力放在了装修风格上。主要包括风格定位、硬装色彩搭配以及细节处理。
最初,父子的表达让设计师误以为他们想要的是新中式风格,但在深层次沟通之后,设计师将他们的想法定位为现代北欧风。现代风是为了满足儿子沉稳内敛的性格,而北欧风则是为即将入住的女主人着想,给平淡的生活增添一份清新活泼之趣。




家具和整个基础装修风格搭配的很紧密,具有现代质感。胡桃色的白橡木实木沙发,配置一个石材桌面的沉重茶几,再用一面同色调的电视背景墙,两者互相呼应,连为一体。现代风的干练简洁在这里很好的显露出来。简洁挂画配上黑色的外框,很好的将北欧风和现代风华融合起来,也提升了整个空间的色彩,让人有轻松活泼之感。客厅的尽头是一个带有长长飘窗的阳台。一旦关上玻璃门和窗帘,家里和外面就是两个不同的世界了。

进门左手边即是餐厅和厨房,短短的过道很好的将油烟和餐厅隔离开来。饭菜直接从厨房里拿到餐桌上,不需要多余的备餐台,因此餐边柜分格并不多,放些日常生活用品即可,这大大满足了男主不喜欢家里杂乱的需求。

U字型的厨房干净利落,整面窗户让这里阳光极好。站在这里做饭时,你只要轻轻转过身,就能随手拿到想要的东西,烹饪也就变得简单轻松起来。


主卧清爽明了。床头的一侧原本是老式窗户,为了让空间显得更大,增加采光,我们将原始的老旧窗户改成拐角飘窗。床头的另一侧墙壁上安置了几块简单的木板,用来放些未来女主人的心头好,也很好的和衣柜相呼应,使整个空间联系更加紧密。


次卧延续了主卧的简明利落。因为还没有结婚,也就还没有过多考虑到孩子的问题。等到以后再添置一张儿童床,这里就充满了欢快活泼的气息。

书房自然要充满文化气息。设计师将整面墙设计成书柜,再将书柜和书桌连成一体,不仅满足了储藏需求,同时也满足了阅读时可随手取书的便利。榻榻米是分格设计的,不仅可以当床铺使用,还能储些杂物,物尽其用。

为了避免户型上主卫和厨房的门两两相对的缺陷,我们将盥洗室安置在卫生间外面,并将卫生间设计成干湿分离,这样很好的解决了风水问题,卫生间使用起来也不会局促。

阳台力求整洁,整体石材洗衣池及上下叠放的洗衣烘干一体机已经足够满足所有日常功能。原来横向的两条固定晾衣杆上如果晒满衣服,就会影响采光。衣服也常常被大风吹挤到一起,影响晾干。所以我们把它改成竖向,当衣服都集中在阳台的一侧,从客厅看出去,整个画面清爽利落。
在这次家访和吴先生的聊天中,一字一句让我们很容易感受到他对这套房子的装修质量、空间布局及细节都非常满意。再想象着未来这里的美好生活画面,我们发现吴先生望向新房的每一寸目光里都写满了幸福和喜悦。阳光洒进新房里,在每一个空间里肆意的流淌,一阵花香飘来,仿佛置身于野外,让人流连忘返。吴哥也深深地体会到,只要设计思路对了,任何鸡肋格局都会变成诗和远方。
