
很多人装修房子对于很多事情都会不明确,比如什么风格?哪些材料?怎么去改?在这些问题都不明确的情况下,如何开展装修设计?那么请一个专业的设计师就很有必要了,本案就是这样一个大背景,在各方面不明确的情况下,设计师帮助业主解决了审美,功能以及预算的问题,很好的提升了业主的生活品质。
案例名称:子墨森语
户型面积:66m²
设计风格:北欧


•原始图

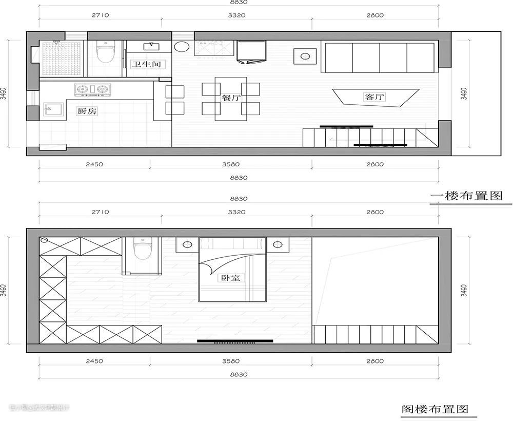
•设计平面图




基本改动信息:
1、改变厨房的台面使用空间,扩大使用面积,增加吧台,满足日常就餐和聚会。
2、将原有卫生间重新设计,变成了干湿分离,增加功能性。
3、利用地面,顶面错层三层修复,使每一层空间高度更为合理(男业主身高较高,实际装修好的层高每一层在2.3左右,客厅区域为挑高)
4、 顶面利用隔热棉及二次防水修复顶面漏水以及解决原始顶楼严重燥热问题;
5、改动了原来的楼梯走向,让楼下客厅面积更大,整体动线更合理;
6、 软装主要以墨绿色为主要基调色,白色为辅助色全新打造北欧宜家风。


入户是一个玄关柜+穿衣镜,在功能上满足整体的需求,入户的左手边是一个开放式厨房和吧台的空间。



客餐厅与厨房顶面的错层设计使进屋后的整体动线更为清晰合理,改动过楼梯后方向后的客厅让这个小家更温馨,楼梯后方自然形成了一个玄关背景墙,在功能上楼梯下面形成了一个很好的储物空间,在楼梯下面的柜子是一个可折叠的餐桌,可供8人聚餐使用。

客厅顶面局部挑空,增加了楼下最重要空间的整体高度,对比原来的老破旧小客厅看上去非常大气而不压抑。整体色调以墨绿和白色为主,简约的空间没有太多色彩,简约且舒适。



本屋居住的是一对小夫妻,所以平时常住在家的人口比较少,一般这个吧台可以满足两人就餐,在厨房区域,以白色为主,增加了用鱼骨纹黑白釉面砖,让白色整体橱柜看上去没有那么单调。


整个卫生间空间要满足淋浴、马桶、台盆以及洗衣机等多功能需求。空间虽小,设计师却能够通过分区来进行动线规划,并且非常合理实用。



楼上主要是业主的私密空间,主卧加套卫的改动后设计,在错层位置做了衣帽间加马桶的一体空间,由于是半开放式卫生间,没有太大的湿气,所以采用了局部六角砖做点缀,上方的双层玻璃让顶楼的采光和隔热防噪音问题,都得到了很好的解决处理。
