女主人:irish,年龄25,IT行业,会加班,工作日晚上九点半之后回家,回家后希望撸个猫泡个澡敷个面膜、看看剧、练会钢琴。周末会烹饪,偶尔会邀请朋友一同吃饭,一起看电影、玩桌游,喜欢舒服的靠着晒太阳或者听雨,喜欢收藏小型手办,基本不在家办公。最重要的一点:希望生活有仪式感。
男主人:tin,年龄25,IT行业,会加班,工作日晚上九点半之后在家,喜欢宅在家看直播或者玩游戏。期望当tin在打游戏的时候,irish可以在旁边悠闲的躺着看剧,或者玩游戏,会一起跳舞/玩游戏。
两只猫:两只小猫常年在家,存在掉毛问题,喜欢去高的地方玩耍(希望能在墙上修几个踏板,他们可以蹦上去玩),喜欢看窗外。因为健康原因需要经常晒太阳(长期呆在阳台或者可以晒太阳的地方);期望他们有独立玩耍的地方,不过多干预我们的生活(不能进入卧室、厨房、卫生间、生活阳台)。

这不是一个没有灵魂的空间,而是一个充满个性的“自己”。

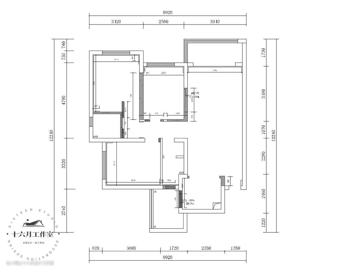
△原始户型图

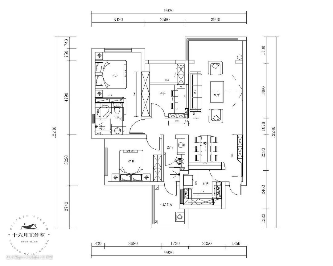
△改造后布局图
改造情况:
①入户左手边墙体打拆,因为要做开放式厨房。
②主卧卫生间墙面向卧室内推,扩大了使用面积。
③主卧到榻榻米书房的墙体全部打拆,主卧做的嵌入式衣柜,占用了一部分榻榻米的空间。
④客厅到阳台之间的隔断进行打拆。
⑤客厅沙发背景墙做了借景,视觉感很强。

打开属于自己的这扇门,紧绷一天的神经终于松懈,一步一步走进悠然的生活空间。

客厅与榻榻米书房之间采用 “ 借景 ” 巧妙的将两个空间融合在一起,拱形门简洁的线条勾勒空间感,赋予空间生命力,带出浅浅的欧式风情。


摒弃传统的电视机,顶部悬挂投影幕布,打开全新视觉体验。

进门就能看到柜中摆放整齐的各种手办,让爱好融入生活,家里给人的感觉必须是充满生机并且自然感十足。

家里的小祖宗是实测是两只贪吃的小馋猫,只需一管猫粮就可以拐走。


随意摆放几本杂志,舒服的窝在沙发里,坐和半躺各种姿势都舒适自然。
有书,有光,有生活,每一天都是人生的最美时刻。




客厅、餐厅、厨房都在一个开放式的空间里,动线流畅更方便,让家显得温馨又惬意。





厨房打通部分冰冷的墙壁,增加了家庭的日常互动,小吧台成为了日常生活的点睛之笔,让家里情调瞬间提升,呈现出无隔断一体化的独特魅力。



包对女人来说是对待生活态度的一种体现,也不要问女人为什么喜欢买包,因为我们的衣柜里总是缺那么一款心仪的包。

目光所及的门洞设计,惊艳了时光,惊艳了你。


打破空间的固有局限,以特有的形式串联每个空间,营造出彼此独立又贯通的感觉,让空间获得横向延伸的同时,多了一份通透和开阔。



我们对化妆品的需求永无止境,把它整整齐齐收纳起来,也是家中的一道风景。



营造婚后生活的甜蜜,搭配舒适独立的大衣柜和独立卫生间,兼顾自己生活的便利和隐私,保留彼此私隐的同时,还能保持一个适当距离,让家人间的相处变得亲密、无负担。




次卧也是用的拱形门,瞬间抓住了我的眼球,线条流畅,不禁让人生出 “ 放慢时光 ” 的错觉。

以火烈鸟为原型衍生出的一幅画,象征着忠贞和爱情。


书房选择绿+白的搭配,非常清爽,同时也将空间作用发挥到了最大化。




尊重不同于自己的价值观和生活方式,就是进步的表现。
Respect for values and lifestyles that are different from your own is a sign of progress.
越清楚自己要什么,才能越靠近自己想要的生活。
The more you know what you want, the closer you will be to the life you want.
